EasyManua.ls Logo

Philips L04L - Features & Connectivities

Philips L04L
94 pages
Print Icon
To Next Page IconTo Next Page
To Next Page IconTo Next Page
To Previous Page IconTo Previous Page
To Previous Page IconTo Previous Page
Loading...
50L04L AA 7.
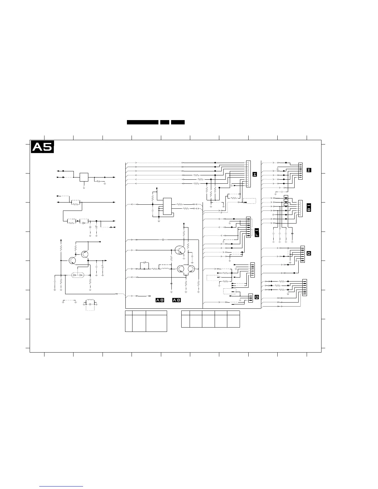
Circuit Diagrams and PWB Layouts
Mono Carrier: Features & Connectivities
A4
A8
LTI/CTI INTERFACE PANEL
SIDE AV PANEL
for ITV only
COM
OUTIN
7
To 1219 of
E
Stdby-con
Power On
LT1/CT1 INTERFACE PANEL
C
D
E
F
G
A
B
C
D
E
F
G
1204 B9
1206 A9
1207 D9
1212 A7
1213 E9
1219 C8
1220 E8
1221 F8
1240 F4
1241 F7
1242 E6
1243 F7
1245 C7
2601 C4
A4
-
Tx
A4
A4
To 1462 of
GND
3 ITV CLOCK
-
C
Rx
123456789
123456789
A
B
USB
4
5V
A4
A4
A4
2611 B2
2613 B9
2614 D5
2615 E4
2617 D6
2620 C2
2621 C2
2622 E5
2623 E2
2624 E2
2625 E1
2626 D8
2627 D9
2628 D9
2629 D9
2630 F2
2631 E4
3601 B4
3603 B7
3604 C5
3605 C5
3606 D1
3607 E1
3608 D2
3609 E2
3610 C1
To 1212 of
I2SDI1
OF
-
Power On
To 1252 of
MTV
A4
A4
A4
A4
3614 E4
3616 B6
3617 B6
3618 B6
3619 B6
3620 B6
3621 B6
3622 E7
3623 E7
3625 E9
3626 E9
3628 E9
3631 E6
3634 E5
3635 D5
3636 D5
3637 D5
3639 C2
4601 E7
4602 B6
A4
ITV DATA OUT/SDA
A4
A4
Bus Request
A4
(FOR SCART)
A7
A4
A4
A2
Only
FOR ITV ONLY
I2SWS
4604 B1
4605 D7
4606 D7
4607 E7
4609 D9
4610 C1
4611 B1
4612 C2
4630 F2
5601 F2
5602 E5
6602 E1
6610 C2
7601 B5
7602 D5
7603 A2
7604 D2
7605 D2
GND
C
PCMCIA
ITV SCL
Tx
To 1206 of
Power On
TO 1138
A4
7606 E5
7607 E6
9235 E5
9280 F7
9603 F1
9604 B7
9605 C3
9607 D7
9612 E7
9639 B2
F210 A1
F211 B1
F212 C2
F213 D2
F214 C4
F215 C4
F216 B6
F217 B6
F218 B6
F219 C7
F220 D7
F221 C7
F222 D7
D
DVD
I2S
5
A4
FEATURES & CONNECTIVITIES
-
1213
6
To 1331 of
Light sensor
F223 D7
F224 A6
F225 A6
F226 A6
F227 E7
F228 E9
F229 E9
F230 A9
F232 E9
F233 B9
F237 B9
F238 B9
F239 A9
F240 B9
F241 B9
F242 C9
F243 C9
F244 C9
F245 C9
F247 D9
F248 E9
OF
TO 1763 & 1764
(FOR CINCH)
Power On
ITV
CRT PANEL
3V3
RES
A
AK
K
0V5
ITV POR 1
B
A4
A4
FOR ITV
/
Rx
F249 E9
F250 B7
F251 E8
I223 D5
I227 D1
I229 E8
I230 B3
I231 E8
I232 C3
I233 E5
I234 E2
I240 C2
I241 D1
1206
RES
3V2
PCF85116
1
5V
Bus Request
A4
5V4
for ITV only
I2SCLK
RES
for EMC
7V
3V3
6V
A4
iDTV
Bus Request
A4
A4
2
A4
A4
A4
A
A4
ITV DATAIN
Tx
A4
A4
A4
Bus Request
A4
A4
A4
Rx
A4
Stdby-con
For ITV
-
A4
RES
A4
A4
A4
A4
A4
Only
For ITV
For ITV
RES
-
RES
EEPROM
A4
Only
A4
A4
27p
2
3
4
5
6
7
2629
1213
1
F220
F242
F249
1245
I241
3
4
5
6
7
8
9
1212
1
10
11
12
2
100R
3618
2614
4u7
3604
100R
1240
F227
9235
33p
2622
PDTC124ET
7602
F233
3610
100R
9612
100n
2613
3631
22K
47u
2611
3639
22R
16V
9639
4611
100n
2617
I227
1243
BC327-25
7605
I230
F215
9607
4602
4604
F232
F250
100n
2623
1
2
3
4
5
6
7
8
9
1219
2630
1n0
F248
GND_1
GND_1
F229
10R
I223
BAV99
3626
6602
27K
3608
GND_1
I233
GND_1
GND_1
3603
100R
F226
47K
F240
3635
F244
9605
F212
2601
1n0
1242
F228
F218
5
6
7
BC847B
7604
1204
1
2
3
4
3606
150K
3
4
5
6
7
8
GND_1
7601
1
2
9280
BAS316
6610
3634
1K0
4609
27p
2628
F210
I231
F239
10V
I234
2621
100u
100R
3617
4u7
I232
1
2
3
2615
1221
F243
F225
4610
3601
4K7
5601
3620
75R
9604
4612
F222
F214
GND_1
100K
3622
3619
75R
3625
10R
F221
F224 F230
22u 50V
F245
F217
2631
F238
GND_1
F216
I229
2625
2u2
GND_1
F223
4601
47R
3637
2620
100n
2627
27p
4607
4
5
6
7
9603
1206
1
2
3
100u
2624
10V
BC847B
F237
7607
GND_1
F213
4
5
6
7
F247
1207
1
2
3
3628
10R
F241
6
GND3
3605
100R
1
2
3
4
5
1220
4606
F211
100R
3616
3607
27K
GND_1
100K3623
2626
27p
1241
7603
GND
2
IN
1
OUT
3
L78L33ACZ
4605
F219
I240
3609
470R
4u7
5602
7606
BC847B
3614
100R
4630
F251
3621
75R
B
A
SEL_SC2_INTF
+9VA
+9VA_1
3636
68K
INTF_U_OUT
+9V
INTF_V_OUT
+3.3V
+6VS
INTF_CVBS_IN
INTF_L_IN
VD
HD_PIP
ITV_V1OUT
SANDCASTLE
SIDE_CHROMA_IN
Gout
Bout
Iblack
SVM
ROT
E
D
C
SW_SC2_CVBS
INTF_CVBS_IN
SC2_CVBS_OUT
SEL_SC2_INTF
Vbuffer
I2SCLK
Reset_+5V
+9V
MUTING
+9V
+9VA_1
Rout
INTF_R_IN
INTF_Y_OUT
INTF_FBL
Stdby_Con
LIGHT_SENSOR
C
INTF_CVBS_OUT
+6V
+5V
+8V
Vbuffer
Stdby_Con
+6VS
+6V
+5V
I2SD|1
WRITE_PROTECT
SCL
SDA
SIDE_L_IN
INTF_Y|GREEN_IN
+3.3V
INTF_Pr|RED_IN
VT_Supply
+6V
INTF_Pb|BLUE_IN
+3.3V
SIDE_Y|CVBS_IN
+3V
I2SD|1
I2SWS
SIDE_R_IN
E_14480_010.eps
270204
3139 123 5673.1

Related product manuals