EasyManua.ls Logo

Philips TE3.1E CA - Page 34

Philips TE3.1E CA
43 pages
Print Icon
To Next Page IconTo Next Page
To Next Page IconTo Next Page
To Previous Page IconTo Previous Page
To Previous Page IconTo Previous Page
Loading...
Circuit Description and Abbreviation List
EN 34 TE3.1E CA9.
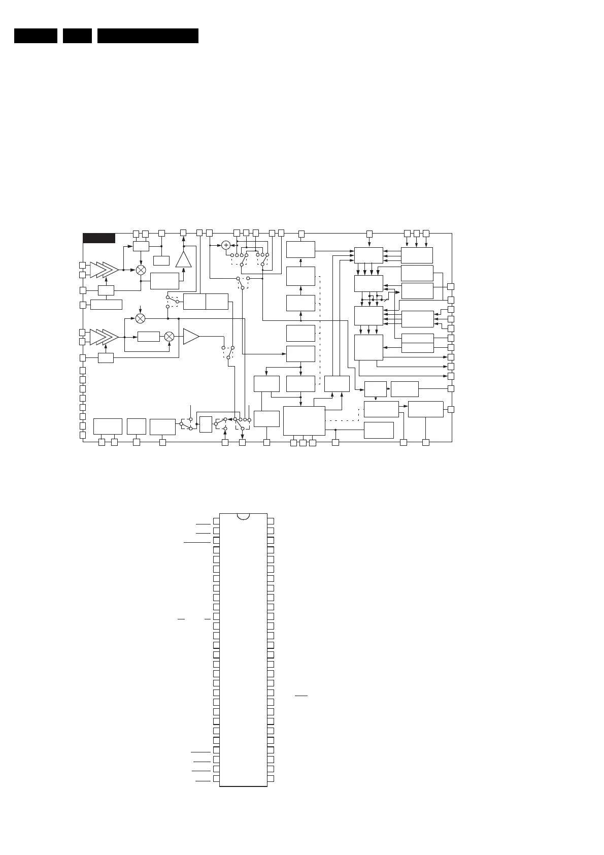
9.4 IC Data Sheets
In this paragraph, the internal block diagrams and pinning are
given of ICs that are drawn as a 'black box' in the electrical
diagrams (with the exception of 'memory' and 'logic' ICs).
9.4.1 STV224X
Figure 9-1 Internal block diagram and pin configuration
H
8
42
2VTS
RP
A
FAS/LCB
BGR
TSARTNOC
.THGIRB
EVIRD
GGOTUC
G
NIKNALB
LDAMUL
GNIK
A
EP
GNIROC&
C
CA&CCA
DAOLREVO
SSAPDNA
B
RETLIF
Sound Subcarrier
T
O
P
SB/W
RE
T
REVNI
ecnerefeRLLP
r
e
i
r
ra
C
XTAL3/BTUN
DSOR
CH/
D
SOBF
DS
O
G
DSOB
FAS/LCB
I
H
T
A
C
T
U
OR
TUOG
TUOB
TREV
TUOH
3
LFB/SSC
SLPF
X1/VAMP/CHROUT
CLPF
XTAL1
XTAL2
AM/FMOUT/SC
EXTAUDIOIN
AUDIOOUT
KC
A
LB
HCTERTS
AMORHC
PART
RETLIF
GNINUT
LLEB
GNINUT
TNOC/.TAS
XIRTAM
VUY
HCTIWS
.PMEED
FM Mono
MA
ono
M
94
e
t
u
M
P
BD
NUOS
DOMED
M
F
CGA
C
G
A
CGARENUT
L
L
P
CFA
LATNOZIROH
P
O
O
L
d
n
2
LATNOZIROH
POOLts1
.TNEDIOTUA
R
ELLIK
C
S
TN
/
MA
C
ES/
L
AP
RO
T
ALUDOMED
LACITREV
GNINNACS
.
CN
YS
P
ES
AMORH
C
LD
CDPMAV
L
O
R
T
N
O
C
SU
B
C²
I
REDOCED
O
ID
U
A
F
E
R
4
V
REF
SCL
SDA
15
25
35
V
DCC
45
DDNG
V
FI
C
C
01
D
N
G
FI
21
54
V
1CC
34
1D
NG
V
2CC
91
2
D
N
G
71
65
FMCAP
32
CHR
22
Y/CVBSIN3
02
CVBSIN2
81
CVBSIN1
44
CVBSOUT2
3
1
INTCVBSOUT
92
NTBC/CVBSOUT1
51
PIFLC1
61
PIFLC2
7
2
NIFIP
6
1
N
I
FIP
F
L
A
H
T
SA
R
TNOC
E
M
ULOV
12
BS
82
FBEXT
72
REXT/Cr
62
GEXT/Y
52
BEXT/Cb
IFPLL
9
1
1
NIFI
S
2
2NIFIS
5
PA
C
FI
P
CGA
8
T
UO
C
G
A
R
E
NUT
3
PACF
I
S
C
G
A
BGR
VU
YO
T
RE
T
IMIL
I
HTAC
ESNES
L
VA
73
63
53
43
42
RPA
6
4
33
23
13
0
3
74
8
4
05
e
tuM
24
1404
9
3
83114155
LLEB
RETLIF
BGR
HCTIWS
Block Diagram
Pin Configuration
F_15160_047.eps
070705
SIFIN1
SIFIN2
AGCSIFCAP
V
REFIF
AGCPIFCAP
PIFIN1
PIFIN2
TUNERAGCOUT
IFPLL
GND
IF
AM/FMOUT/SC
V
CCIF
INTCVBSOUT
EXTAUDIOIN
PIFLC1
PIFLC2
V
CC2
CVBSIN1
GND2
CVBSIN2
BS
Y/CVBSIN3
CHR
APR
BEXT/Cb
GEXT/Y
REXT/Cr
FBEXT
FMCAP
AUDIOOUT
GNDD
V
CCD
SDA
SCL
SLPF
LFB/SSC
HOUT
VERT
BCL/SAF
V
CC1
CVBSOUT2
GND1
X1/VAMP/CHROUT
CLPF
XTAL1
XTAL2
XTAL3/BTUN
ROSD
GOSD
BOSD
I
CATH
ROUT
GOUT
BOUT
NTBC/CVBSOUT1
FBOSD/HC
1
2
3
4
5
6
7
8
9
10
11
12
13
14
15
16
17
18
19
20
21
22
23
24
25
26
27
28
56
55
54
53
52
51
50
49
48
47
46
45
44
43
42
41
40
39
38
37
36
35
34
33
32
31
30
29

Related product manuals