EasyManua.ls Logo

Ponast KP 21 - Fig.n. 18 Wiring - Option for Supply: 3+PE+N, 50 Hz, 400;230 V, TN-CS

Default Icon
59 pages
Print Icon
To Next Page IconTo Next Page
To Next Page IconTo Next Page
To Previous Page IconTo Previous Page
To Previous Page IconTo Previous Page
Loading...
Automatic boiler for wood pellets
Instructions for installation and operation
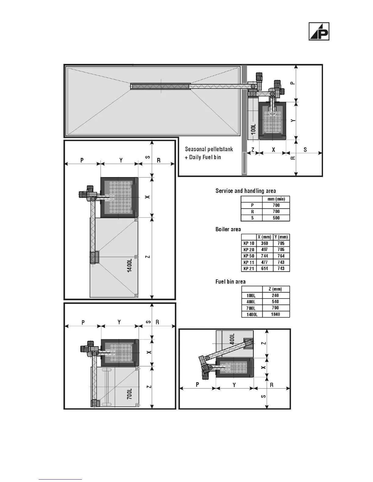
Figure number 17 – Examples of fuel bins, placement of products
and requirement on dimensions
41

Table of Contents

Other manuals for Ponast KP 21

Related product manuals