EasyManua.ls Logo

Prestige APS 685 - Page 8

Default Icon
20 pages
Print Icon
To Next Page IconTo Next Page
To Next Page IconTo Next Page
To Previous Page IconTo Previous Page
To Previous Page IconTo Previous Page
Loading...
128-5861A
8 of 20
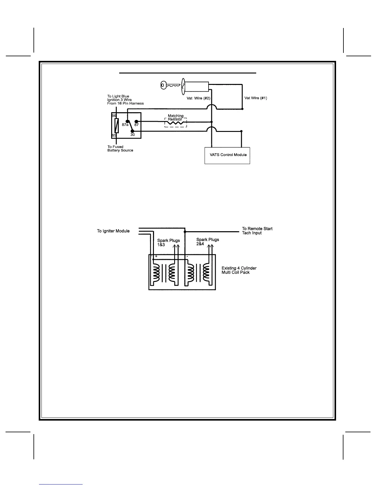
General Motors VATS By-Pass Diagram
DARK GREEN/ORANGE Wire: Tach Sensor Input
This wire will continually monitor the engine tach rate while the unit is under power of the Remote Start
module. This wire will be routed to the vehicle ECM tach input or through the firewall into the engine
compartment and connect to the negative side of the ignition coil. This Remote Start unit learns the tach
rate of the vehicle and in most cases will operate properly from one multi coil pack regardless of the number
of cylinders. If the vehicle has a single coil unit for each cylinder, it may be necessary to connect this wire to
more than one cylinder for proper tach reference. See multi coil wiring detail shown later in this manual for
additional information.
3 Pin Door Lock/Unlock Harness: (White Connector)
The Red & Green, Door Lock/Unlock output wires provide either a pulsed ground or pulsed + 12 volts to
control the vehicle door lock / unlock circuits. The Red/Black 2nd Unlock output wire provides only a
pulsed ground, and when used, must be wired as shown later on in this manual. The output of these wires
has a maximum switching capability of 300mA. Many vehicles today have factory door lock relays which
can be connected directly to these outputs. However, always confirm that the factory relays in your par-
ticular vehicle do not exceed the rated 300mA output of the units door lock/unlock/unlock 2 circuits. Plug
the three pin connector of the door lock/unlock harness into the mating connector shell of the control
module. Determine the door lock circuit of the vehicle you are working on and wire according to the
diagrams shown.
3 Wire Ground Switched Door Lock Circuits:
In this application, the Red wire of the door lock harness provides a ground pulse during locking or pulsed
ground lock output. Connect the Red wire to the low current ground signal wire from the factory door lock
switch to the factory door lock relay.
The Green wire of the door lock harness provides a ground pulse during the unlocking sequence, or
pulsed ground unlock output. Connect the Green wire to the low current ground signal wire from the
factory door unlock switch to the factory door unlock relay. See Below For Wiring Detail.
8

Other manuals for Prestige APS 685

Related product manuals