EasyManua.ls Logo

Primus RF6 - Instructions for Replacing the Electronic Board and Keypad

Primus RF6
136 pages
Print Icon
To Next Page IconTo Next Page
To Next Page IconTo Next Page
To Previous Page IconTo Previous Page
To Previous Page IconTo Previous Page
Loading...
100962 G PUBLICATION DATE 24 JUN 2008.DOC PROGRAMMING MANUAL 127
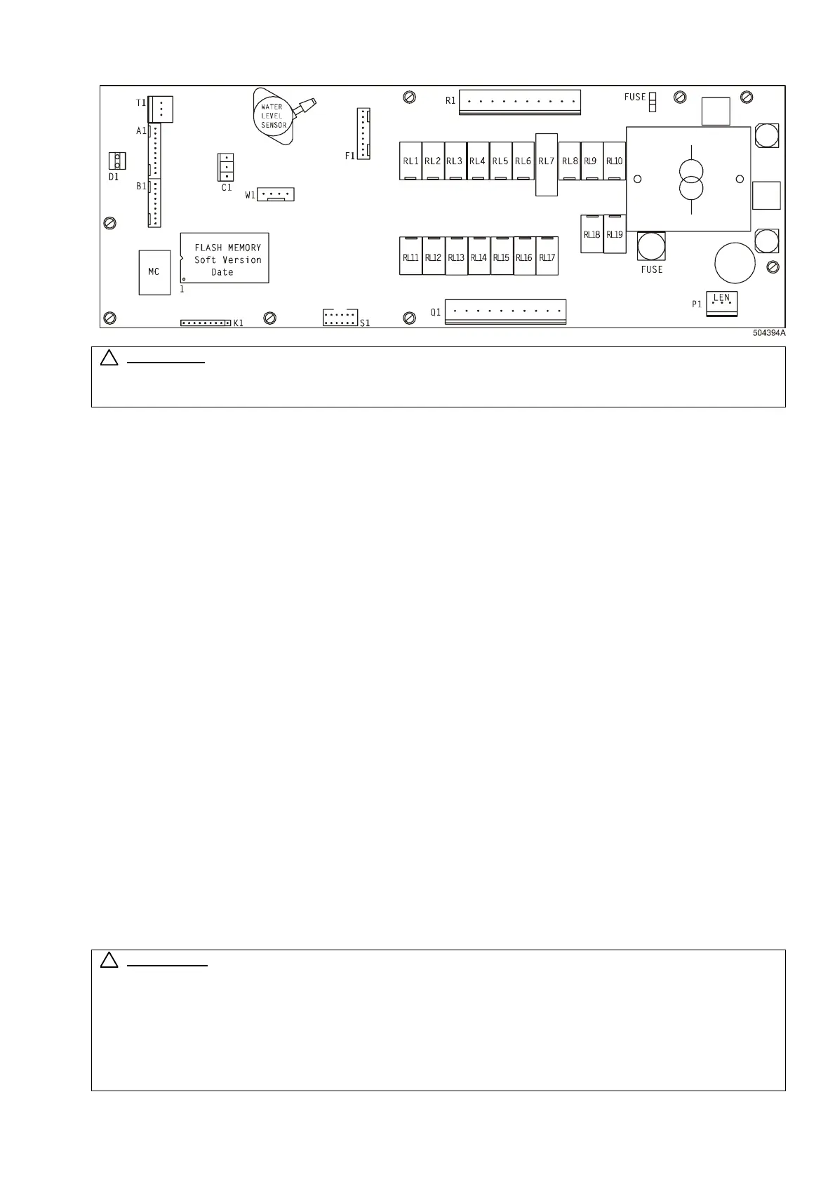
9.3. PROGRAMMER ELECTRONIC BOARD
WARNING !
CONNECTION TO THE WRONG VOLTAGE SUPPLY MAY CAUSE SERIOUS BODILY INJURY AS
WELL AS DAMAGE TO THE ELECTRONIC PARTS AND TO THE WASHING MACHINE ITSELF.
- Voltage : 200-240 Vac, 50/60 Hz
- Power : max 16 VA
- Memory : EPROM (contains the software)
EEPROM (contains the customised programs)
- Outputs : 19 relays
- Serial interface : RS485 (2 wire) networking between wash computer and
external device (PC Computer)
- Display : LCD display
9.4. INSTRUCTIONS FOR REPLACING THE ELECTRONIC BOARD AND
KEYPAD
T Switch off the main power supply.
T Open the cover plate of the washing machine.
T Remove the connectors from the electronic board and remove the little hose from the level sensor.
T Remove the pin that is holding the electronic board at the middle of the fascia panel
(if implemented).
T Remove the combination keyboard - electronic timer by the front side of the fascia panel.
Remove the two screws and pull the keypad carefully by the front side.
T Put the new combination keyboard – electronic timer into the machine and tighten the two screws.
T Put the pin back at it‘s original position.
T Reconnect all the connectors and put the little hose back on the level sensor.
T Close the cover plate of the washing machine.
T Now you can Switch On the power supply.
T The display should illuminate.
ATTENTION
!!!
MAKE SURE THAT THE LITTLE HOSE OF THE LEVEL SENSOR IS WELL TIGHTEND WITH A
FASTENER. IF THE HOSE IS NOT AIR TIGHT THEN THE LEVEL SENSOR WILL NOT MAKE A
CORRECT MEASUREMENT
MAKE SURE THAT YOU DON’T DAMAGE THE FLEX CABLE OF THE KEYPAD WHEN YOU PUT
THE FULL CONTROL WASH COMPUTER BACK INTO THE MACHINE.
!
!

Table of Contents

Related product manuals