EasyManua.ls Logo

ProMinent Beta BT5b - Page 47

ProMinent Beta BT5b
81 pages
Print Icon
To Next Page IconTo Next Page
To Next Page IconTo Next Page
To Previous Page IconTo Previous Page
To Previous Page IconTo Previous Page
Loading...
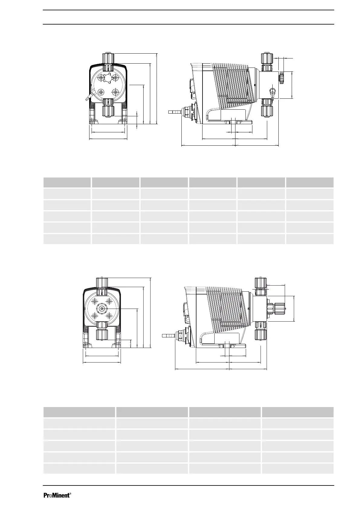
Fig. 14: Dimensional drawing of Beta
®
BT4b/BT5b, NP material version - dimensions in mm
1000 - 1604 0708 - 0220 2504 1008 - 0420 0232
E 19 7.2 24.5 14 3.2
F 172 183 178.5 188 199
K 77 77.5 77 74 76
L 105 105.5 105 102 104.5
M Ø 70 Ø 90 Ø 70 Ø 90 Ø 110
Fig. 15: Dimensional drawing of Beta
®
BT4b/BT5b, PP and NP material versions with self-bleeding dosing
head SEK - dimensions in mm
1604 0708 - 0220 1008 - 0232
E 19 7.5 13.5
F 170.5 182.5 188.5
K 77 74 74
L 92 105.5 89
M Ø 70 Ø 90 Ø 90
Dimensional drawing of Beta
®
b, NP
material version
Dimensional drawing of Beta
®
b, PP
and NP SEK material version
Appendix
47

Table of Contents