EasyManua.ls Logo

PTI VP - Page 12

PTI VP
46 pages
Print Icon
To Next Page IconTo Next Page
To Next Page IconTo Next Page
To Previous Page IconTo Previous Page
To Previous Page IconTo Previous Page
Loading...
VP Keypad Access Device
8
114A3868.E rev. 7-2017
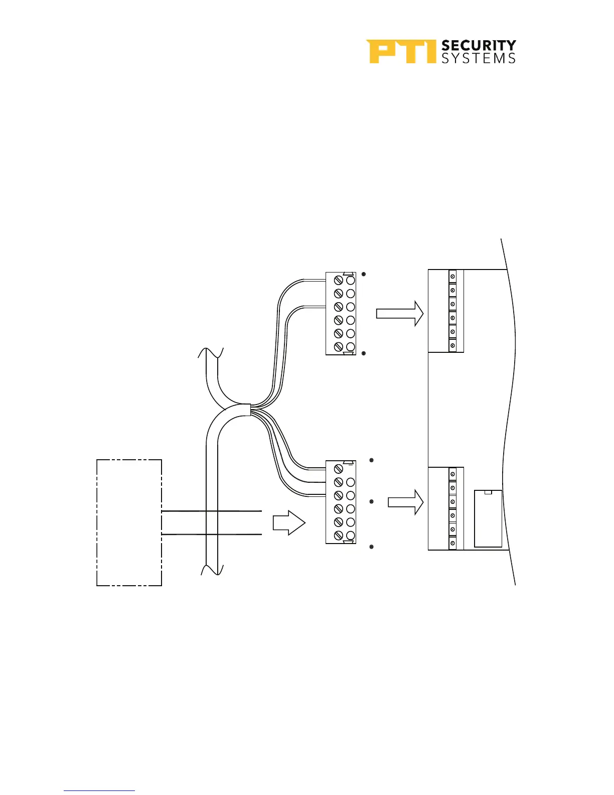
FROM
CONTROLLER
DATA
GATE
OPERATOR/
DOOR STRIKE
POWER
(DC POWER
CONNECTION
SHOWN)
RELAY
Refer to gate operator or door strike
manufacturer installation instructions
for proper wiring to keypad relay
Power & data from
power supply and
controller
Power & data to
other AI devices
GRN
WHT
SHLD
4 65321
RED
BLK
65321 4
P1
K1
P2
AC/
DC+
D+
NC
COM
NO
GND
D–
AC
GND
GND
DC–
DC–
Drawing 5: Wiring for VP
keypad