EasyManua.ls Logo

Quadra-Fire PELLET INSERT CB1200I - Clearances to Combustibles as a Built-In, UL and ULC

Quadra-Fire PELLET INSERT CB1200I
52 pages
Print Icon
To Next Page IconTo Next Page
To Next Page IconTo Next Page
To Previous Page IconTo Previous Page
To Previous Page IconTo Previous Page
Loading...
R
R
R
February 3, 2010
7014-188B
Page 9
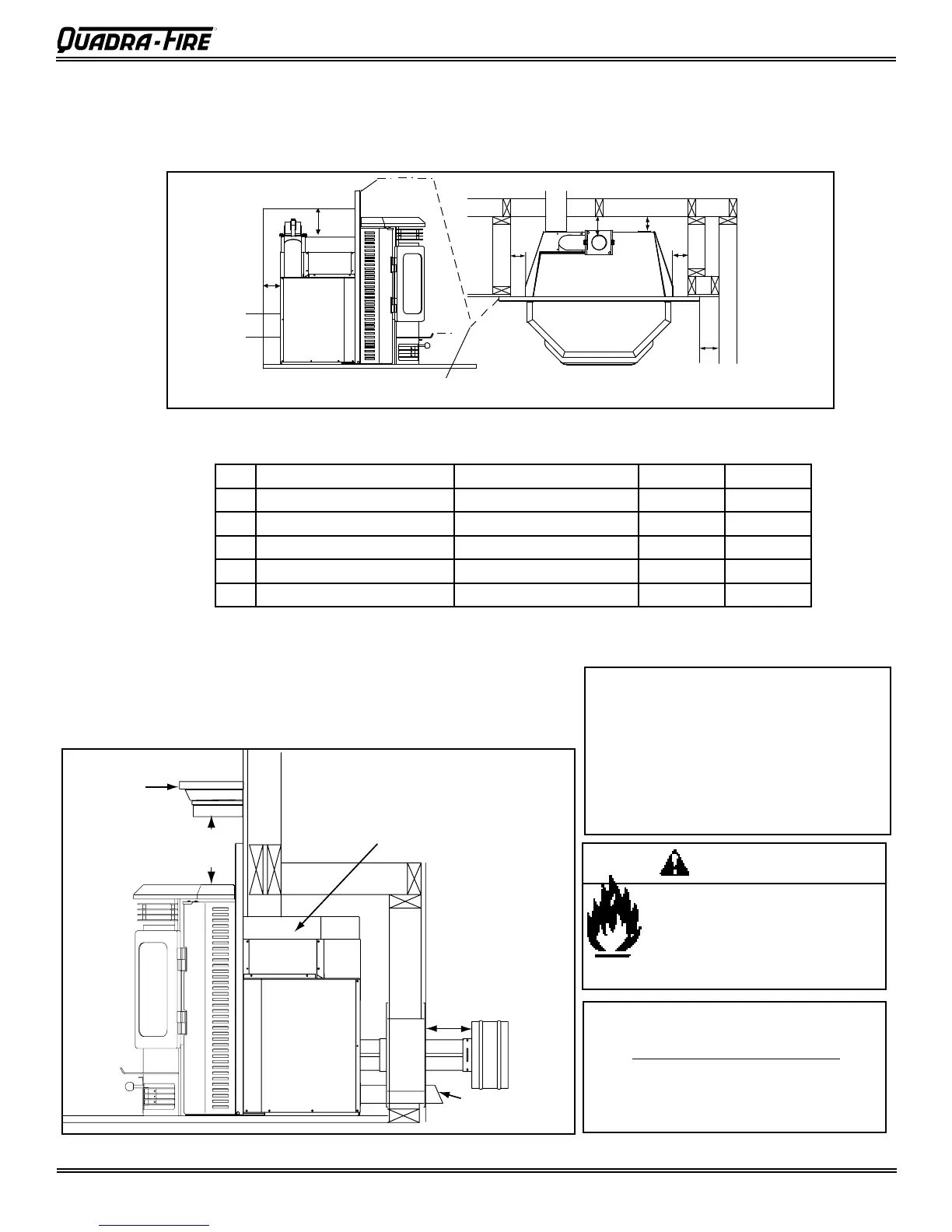
CB1200-I Pellet Insert
NOTE:
Illustrations reect typical installations and
are FOR DESIGN PURPOSES ONLY.
Illustrations/diagrams are not drawn to
scale.
Actual installation may vary due to
individual design preference.
B. Clearance To Combustibles, UL and ULC
12 in.
(305mm)
Rear Shroud
6 in.
(152mm)
Shown with Hopper Extended
Optional Outside
Air
Combustible
Mantel
INSTALLED AS A BUILT-IN UNIT
Shown with Rear Vent and Optional Outside Air
Figure 9.1
Figure 9.2
AS A BUILT-IN
B
D
C
E
B
C
A
0 INCH (0mm) CLEARANCE TO EXPOSED SECTION AND FACE TRIM
Rear Shroud Kit is Required for Built-In Installation
A Top of Shroud Top Vent 3.0 76
Rear Vent 0 0
B Sides of Inside Shroud Top or Rear Vent 0 0
C Back of Inside Shroud Top Vent 2.5 64
Rear Vent 0 0
D Vent Pipe to Combustible Top or Rear Vent 3.0 76
Fire Risk.
WARNING
Failure to comply may cause house re.
Comply with all minimum clear-
ances to combustibles as specied.
NOTICE:
Please note that while the minimum clear-
ance for the termination cap is 6 inches
(152mm) there is the possibly of soot
buildup around the termination area. If this
occurs we suggest to move the termination
further away from the house to prevent it.

Table of Contents

Related product manuals