EasyManua.ls Logo

Radian RM-111 - Page 77

Radian RM-111
97 pages
Print Icon
To Next Page IconTo Next Page
To Next Page IconTo Next Page
To Previous Page IconTo Previous Page
To Previous Page IconTo Previous Page
Loading...
RM-111 Operations Manual
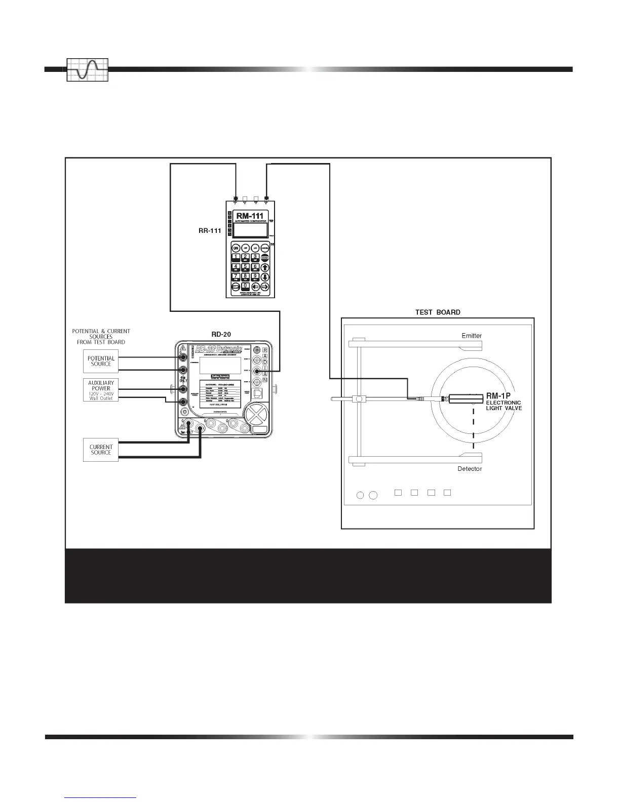
Figure 15.0 Testing the Accuracy of a Test Board
(RM-1P Light Valve Option)
Application 10
Application 10
76

Table of Contents

Related product manuals