EasyManua.ls Logo

Rapido ga110 e - 15 Schaltplan

Rapido ga110 e
Print Icon
To Next Page IconTo Next Page
To Next Page IconTo Next Page
To Previous Page IconTo Previous Page
To Previous Page IconTo Previous Page
Loading...
17
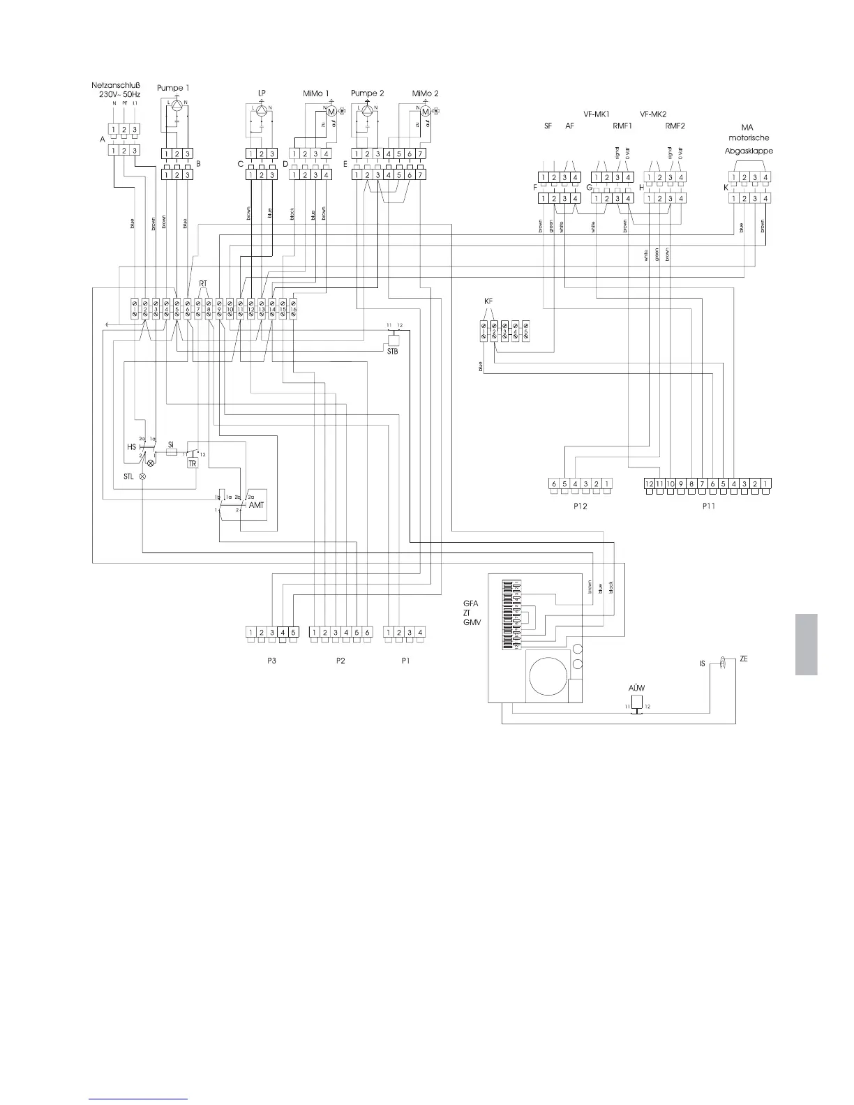
15 Schaltplan
Deutsch
A,B,C,... Kennzeichnung von Kabeln MiMo Mischermotor
a auf N Nullleiter
AF Außenfühler PE Erdung
AMT Schalter auto/man/TÜV P1...P12 Bezeichnung der Regelungsstecker
W Abgasüberwachung RMF Raumfühler, comfortmatic, RFFT
GFA Gasfeuerungsautomat RT Raumthermostat
GMV Gasmagnetventil SF Speicherfühler
HS Hauptschalter Si Sicherung 6,3A träge
IS Ionisationselektrode STB Sicherheitstemperaturbegrenzer
KF Kesselfühler STL Störlampe
L Phase 230V, 50Hz TR Temperaturregler
LP Ladepumpe VF-MK Vorlauffühler Mischerkreis
L1 Netzphase 230V, 50Hz z zu
M Motor ZE Zündelektrode
MA motorische Abgasklappe oder Raumthermostat (nur ZT Zündtrafo
bei Anlagen ohne Speicherregelung rapidomatic
®
TS)
Abb. 11
AA
BB
motorische
Abgasklappe

Table of Contents

Related product manuals