EasyManua.ls Logo

Raypak HD401 - Page 15

Raypak HD401
52 pages
Print Icon
To Next Page IconTo Next Page
To Next Page IconTo Next Page
To Previous Page IconTo Previous Page
To Previous Page IconTo Previous Page
Loading...
15
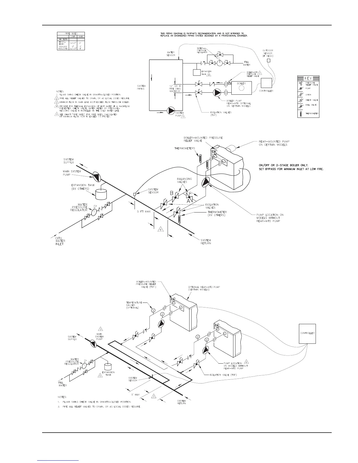
Fig. 11: Single Boiler Low-Temperature Application (Heat Pump) Primary/Secondary Piping
Fig. 12: Dual Boiler—Primary/Secondary Piping
*Maximum 4 times the pipe diameter or 12”, Max.
*Maximum 4 times the pipe diameter or 12”, Max.
Fig. 10: Single Boiler Primary/Secondary Piping

Table of Contents

Related product manuals