EasyManua.ls Logo

Raytheon Beech Baron E55 - Page 789

Raytheon Beech Baron E55
903 pages
Print Icon
To Next Page IconTo Next Page
To Next Page IconTo Next Page
To Previous Page IconTo Previous Page
To Previous Page IconTo Previous Page
Loading...
r-----------------
COMBUSTION
I
couivrriox
AIR
BLOWER
I
Xt--
I
I
a
OVERHEAT
SWITCH
IwirC*
CIRCUIT
(AurOmATle
IESrTI
BREAKER
i
101-16
101-1
H5A12
HPAI1
1
PVM
AIR
VALVE
DVCTFUEL
Hlonl?,
1
1~103-16
i
SWITCH
2
H5B12
THERMOSTAT
H10B12-(
I
I
104´•16
1
I
IGNITION
UNIT
BLOWERI
L----~------
HIJAIZ
---Y
3
)C----101-16
I
~Utl
O
1"1
rI
ISOLtNOID
OFF
H5C12
HEATER
I%al2
IL
~nl*1211
1
sOl-lb-7_-C
~01-16
Y[HI
H~*TER
IT
~LOWI.
BLOWER
DOWN
H7A12
6
106-16
SWITCH
I
LANDING
GEAR
DOWN
LIMIT
SWITCH
L--
_
-_
__
_
-_
_
_j
HEATER
ASSEMBLY
TC-1723
TE-991
TH-497
AND
AFTER
IS
MANUAL
RESET
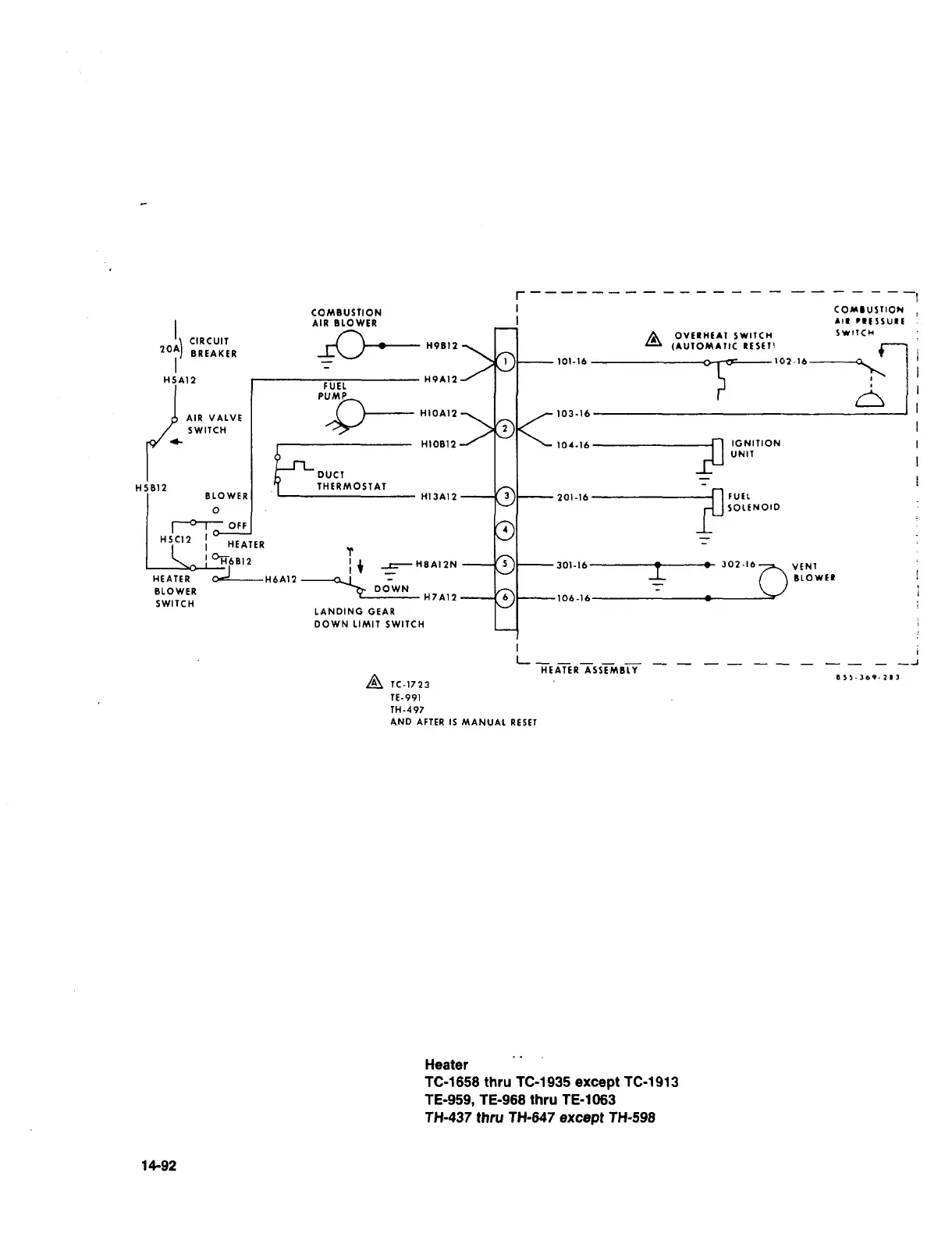
Heater
TC-1658
thru
TC-1935
except
TC-1913
TE-959,
TE-988
thru
TE-1083
TH-437
thru
TH-647
except
TH-598
14-92

Table of Contents

Related product manuals