EasyManua.ls Logo

Raytheon Beech Baron E55 - Page 812

Raytheon Beech Baron E55
903 pages
Print Icon
To Next Page IconTo Next Page
To Next Page IconTo Next Page
To Previous Page IconTo Previous Page
To Previous Page IconTo Previous Page
Loading...
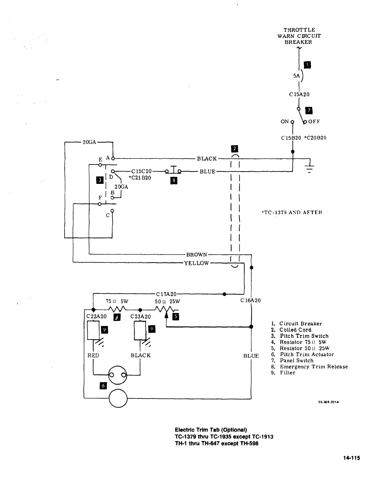
THROTTLE
WARN
CIRCUIT
BREAKER
C15AZO
OFF
C15B20
’C20D29
20GA
I
E
Ar
BLACK
C15C20
~TC
BLUE
C21820
P
20GA
.I
~-1
’TC-1379
A~D
XTTER
BROWN
YELLOW
C17A20
75n
5W
50
n
25W
c
16P
20
C22A20
C23A20
1
5I
I.
Circuit
Breaker
1~
2.
Coi~edCord
L
L
3.
Pitch
Trim
Switch
i:
4.
Resistor
75!~
5W
5.
Resistor
50!r
25M:
RED
BLAC
K
BLUE
5.
Pitch
Trint
Actuator
7.
PanelSwitch
8.
Emergency
Trim
Release
9.
Filter
El
ss3ssm~n
Electric
Trim
Tab
(Optlonal)
TC-1379
thru
TC-1935
except
TC-1913
TH-1
thru
TH-647
except
TK598
tetis

Table of Contents

Related product manuals