EasyManua.ls Logo

Regal 3550 - Page 172

Default Icon
184 pages
Print Icon
To Next Page IconTo Next Page
To Next Page IconTo Next Page
To Previous Page IconTo Previous Page
To Previous Page IconTo Previous Page
Loading...
4
Chapter 12
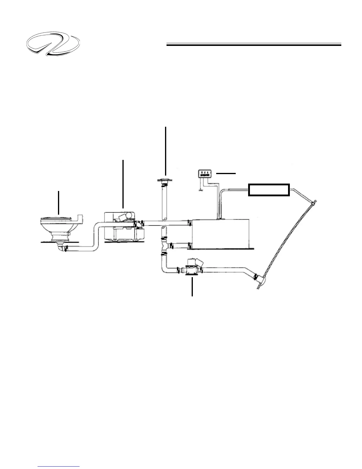
TYPICAL VACUFLUSH PLUMBING LAYOUT
VACUUM TOILET
VACUUM GENERATOR
PUMP OUT DECK FITTING
WATER/WASTE MONITOR
WASTE HOLDING
TANK
OPTIONAL OVERBOARD DISCHARGE PUMP
(MACERATOR)
VENT FILTER

Table of Contents

Related product manuals