EasyManua.ls Logo

Regency F5100 - Fan Installation

Regency F5100
36 pages
Print Icon
To Next Page IconTo Next Page
To Next Page IconTo Next Page
To Previous Page IconTo Previous Page
To Previous Page IconTo Previous Page
Loading...
20
F5100 Regency Freestanding Woodstove
INSTALLATION
)$1,167$//$7,21
9)$1
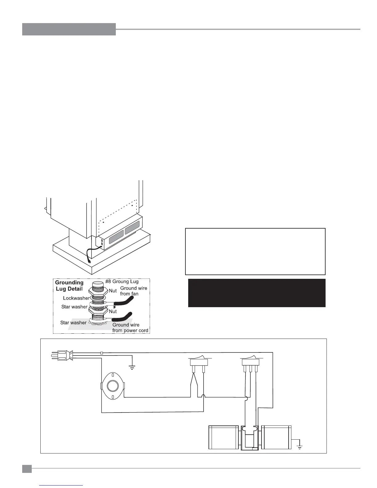
 5HPRYHWKHWZRVFUHZVIURPWKHWRSRIWKHIDQKRXVLQJ
 6OLGHWKHIDQXSLQWRWKHUHDUKHDWVKLHOG
 $IWHUDOLJQLQJKROHVVHFXUHWKHIDQWRWKHUHDUKHDWVKLHOGXVLQJ
WKHWZRVFUHZVUHPRYHGHDUOLHU
1RWH 7KHFRQQHFWLRQFRUGVKRXOGQRWEHLQFRQWDFWZLWKDQ\
KRWVXUIDFHV
:$51,1*)$1$66(0%/<0867%(',6&211(&7(')520
7+(6285&(2)(/(&75,&$/6833/<%()25(
$77(037,1*7+(,167$//$7,21
)$123(5$7,21
$8720$7,&
7RRSHUDWHWKHIDQDXWRPDWLFDOO\SXVKWKHERWWRPVZLWFKRQWKHVLGH
RIWKHIDQKRXVLQJWR$872DQGWKHWRSVZLWFKWRHLWKHU+,*+RU
/2:IRUIDQVSHHG
7KLVZLOODOORZWKHIDQWRWXUQRQDVWKHVWRYHKDVFRPHXSWRRSHUDW
LQJWHPSHUDWXUH,WZLOODOVRVKXWWKHIDQV\VWHPRIIDIWHUWKH¿UHKDV
JRQHRXWDQGWKHXQLWFRROHGWREHORZDXVHIXOKHDWRXWSXWUDQJH
,IWKHIDQF\FOHVRQDQGRIIFRQWLQXRXVO\WKHWKHUPRVZLWFKVHQVRULV
QRWPDNLQJFRQWDFWZLWKWKHVWRYHERG\5HPRYHWKHIDQEHQGWKH
EUDFNHWFORVHUWRWKHVWRYHDQGUHLQVWDOOWKHIDQ
0$18$/
7RPDQXDOO\RSHUDWHWKHIDQV\VWHPSXVKWKHERWWRPVZLWFKWR0$1
DQGWKHWRSVZLWFKWRHLWKHU+,*+RU/2:7KLVZLOOE\SDVVWKH
VHQVLQJGHYLFHDQGDOORZIXOOFRQWURORIWKHIDQ
6ZLWFKLQJIURP$872WR0$1RU+,*+WR/2:PD\EHGRQH
DQ\WLPH
&$87,21/DEHODOOZLUHVSULRUWRGLVFRQQHF
WLRQ ZKHQ VHUYLFLQJ FRQWUROV :LULQJ HUURUV
FDQFDXVHLPSURSHUDQGGDQJHURXVRSHUDWLRQ
:$51,1*(OHFWULFDO*URXQGLQJ,QVWUXFWLRQV
7KLV DSSOLDQFH LV HTXLSSHG ZLWK D WKUHH SURQJHG
JURXQGLQJSOXJIRU\RXUSURWHFWLRQDJDLQVWVKRFN
KD]DUGDQGVKRXOGEHSOXJJHGGLUHFWO\LQWRDSURS
HUO\JURXQGHGWKUHHSURQJUHFHSWDFOH'RQRWFXWRU
UHPRYHWKHJURXQGLQJSURQJIURPWKLVSOXJ
:LULQJ'LDJUDP
Ground
Fan Fan
Ground
Green
Neutral
Live
White
Fan
Switch
Manual/
Auto
Switch
Black Black
High (Black)
Low (Red)
Black
Fan Thermodisc
(normally open)
120V AC
60 Hz
Fan assembly for use only with the room heater marked to indicate such use.
FAN INSTALLATION

Related product manuals