EasyManua.ls Logo

Regency P121-NG - Exterior Flue Termination Locations

Regency P121-NG
39 pages
Print Icon
To Next Page IconTo Next Page
To Next Page IconTo Next Page
To Previous Page IconTo Previous Page
To Previous Page IconTo Previous Page
Loading...
Regency
®
P121/P121LC/P121RC/P131 Zero Clearance Room Sealed Gas Fireplace
12
INSTALLATION
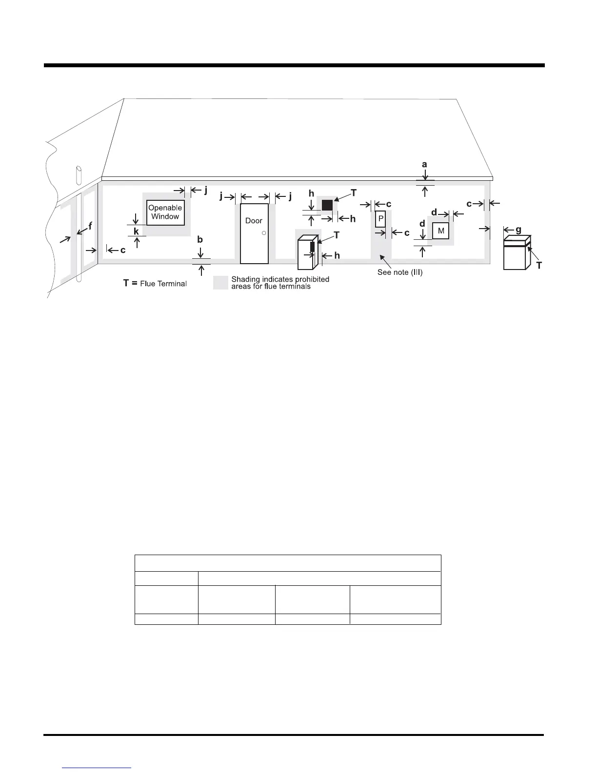
EXTERIOR FLUE TERMINATION LOCATIONS
Minimum clearances required for balanced ue terminals or
the ue terminals of outdoor appliances
according to AG 5601-2004 (AGA gas installation code) or NZS 5261 (New Zealand)
Minimum
Clearance (mm)
a Below eaves, balconies or other projections:
- Appliances up to 50 MJ/h input 300
- Appliances over 50 MJ/h input 500
b From the ground or above a balcony 300
c From a return wall or external corner 500
d From a gas meter (M) 1000
e From an electricity meter or fuse box (P) 500
f From a drain or soil pipe 150
g Horizontal from any building structure (unless appliance is approved
for closer installation) or obstruction facing a terminal 500
h From any other ue terminal, cowl or combustion air intake 500
j Horizontally from an openable window, door, or non-mechanical air inlet, or
any other opening into a building, with the exception of sub- oor ventilation
(see also Note (I)):
- Appliances up to 150 MJ/h input 500
- Appliances over 150 MJ/h input 1500
k Vertically below an openable window, door, or non-mechanical air inlet,
or any other opening into a building, with the exception of sub- oor ventilation
(see also Note (I)): see table below
Clearance 'k' in mm
Space Heaters All Other Appliances
Up to 50 MJ/h Up to 50 MJ/h input Over 50 MJ/h input Over 150 MJ/h input
input to 150 MJ/h input
150 500 1000 1500
NOTES:
(I) For mechanical air inlets, including spa blowers, the clearance 'j' and 'k' shall be 1500 mm in all cases.
(II) All distances shall be measured vertically or horizontally along the wall to a point in line with the nearest par to of the terminal.
(III) Prohibited area below electricity meter or fuse box extends to ground level.
(IV) A ue terminal of this type shall not be located under a roofed area unless the roofed area is fully open on at least two sides and
a free ow of air at the appliance is achieved.

Table of Contents

Related product manuals