EasyManua.ls Logo

RHOSS DIVA Series - Technical Characteristics

RHOSS DIVA Series
76 pages
Print Icon
To Next Page IconTo Next Page
To Next Page IconTo Next Page
To Previous Page IconTo Previous Page
To Previous Page IconTo Previous Page
Loading...
20
SMALTIMENTO
Le parti di consumo e quelle sosti-
tuite vanno smaltite nel rispetto del-
la sicurezza e in conformità con le
norme di protezione ambientale.
WASTE DISPOSAL
Consumables and replaced parts
should be disposed of safely and
in accordance with environmental
protection legislation.
CARATTERISTICHE
TECNICHE
TECHNICAL CHA-
RACTERISTIC
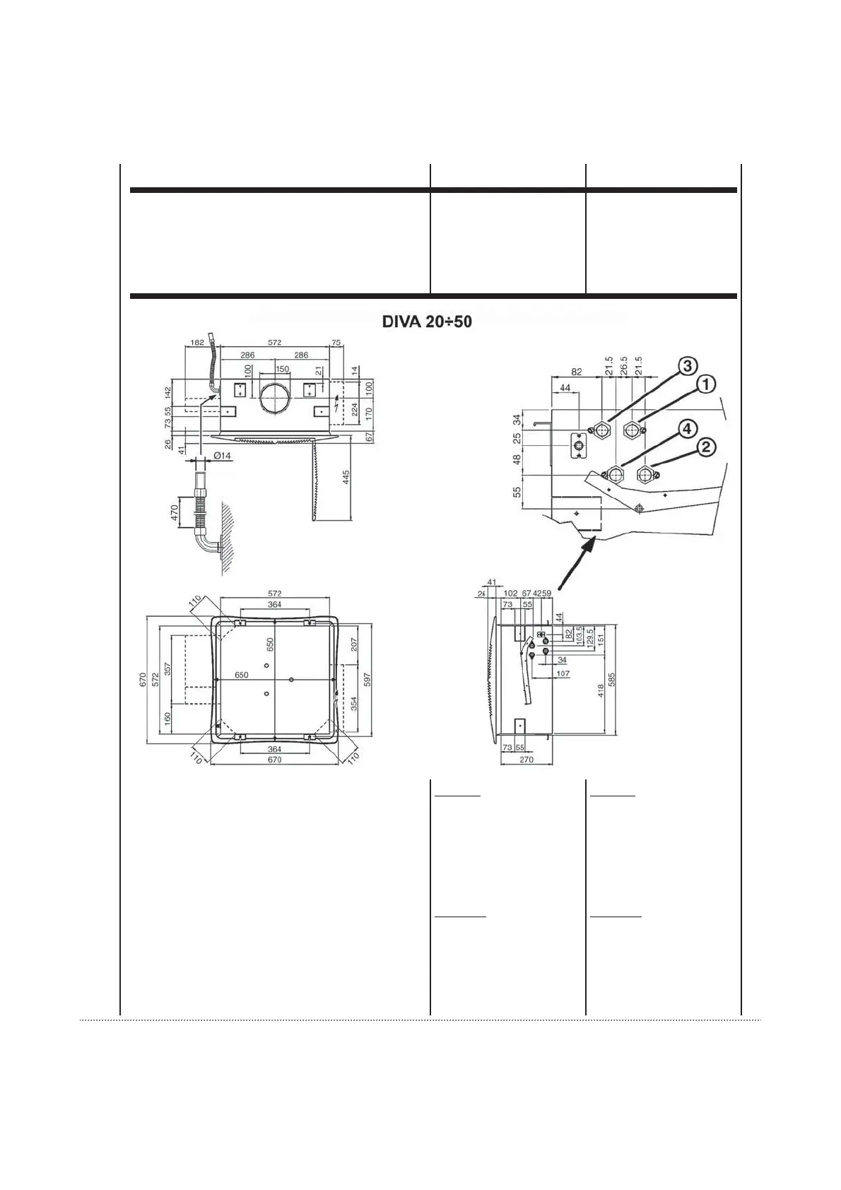
DIVA 20÷50
)MPIANTOTUBI
3 - Entrata acqua calda/fredda 1/2”
4 - Uscita acqua calda/fredda 1/2”
)MPIANTOTUBI
1 - Entrata acqua calda 1/2”
2 - Uscita acqua calda 1/2”
3 - Entrata acqua fredda 1/2”
4 - Uscita acqua fredda 1/2”
DIVA 60÷110
)MPIANTOTUBI
3 - Entrata acqua calda/fredda 3/4”
4 - Uscita acqua calda/fredda 3/4”
)MPIANTOTUBI
1 - Entrata acqua calda 1/2”
2 - Uscita acqua calda 1/2”
3 - Entrata acqua fredda 3/4”
4 - Uscita acqua fredda 3/4”
DIVA 20÷50
2 pipe units
3 - Flow, heating/cooling 1/2”
4 - Return, heating/cooling 1/2”
4 pipe units
1 - Flow, heating 1/2”
2 - Return, heating 1/2”
3 - Flow, cooling 1/2”
4 - Return, cooling 1/2”
DIVA 60÷110
2 pipe units
3 - Flow, heating/cooling 3/4”
4 - Return, heating/cooling 3/4”
4 pipe units
1 - Flow, heating 1/2”
2 - Return, heating 1/2”
3 - Flow, cooling 3/4”
4 - Return, cooling 3/4”

Table of Contents

Related product manuals