EasyManua.ls Logo

RHOSS DIVA Series - Installation with Installer-Provided Valves; Critical Valve Installation Warnings

RHOSS DIVA Series
76 pages
Print Icon
To Next Page IconTo Next Page
To Next Page IconTo Next Page
To Previous Page IconTo Previous Page
To Previous Page IconTo Previous Page
Loading...
60
INSTALLAZIONE CON
VALVOLE
FORNITE DALL’IN-
STALLATORE
s
Per l’installazione delle valvole se-
guire le istruzioni del costruttore;
per realizzare i collegamenti al
Cassette fare riferimento ai disegni.
s0EREVITARECHENEGLIIMPIANTIAD
acqua fredda la condensa vada a
gocciolare sul soffitto, isolare bene
le tubazioni, le valvole e gli attac-
chi della batteria.
Schemi elettrici
DICOLLEGAMENTOVALVOLE
s
Per il collegamento del comando
scelto seguirele istruzioni allegate
allo stesso.
ATTENZIONE:
s
I cavi devono passare attraverso
gli appositi passacavi e parastrappi.
s
Le valvole devono essere collega-
te seguendo gli schemi elettrici
suggeriti.
s,E VALVOLE DA UTILIZZARE DEVONO
bloccare l’ingresso acqua quando
è assente la tensione di alimen-
tazione.
s
Se non si rispettano i collegamenti
proposti, si correrà il pericolo di
avere la tracimazione dell’acqua
dalla vaschetta raccogli condensa.
s
È fondamentale che le valvole ac-
qua si chiudano nel momento stes-
so in cui il contatto interno della
scheda tra i morsetti 2 e 3 si apre.
s)LCONTATTOTRAILPOLOEILPOLO
rimane chiuso finchè il livello della
condensa all’interno della vaschet-
ta non raggiunge il massimo livel-
lo consentito.
sµFONDAMENTALECHELEVALVOLESI
aprano solo nel momento in cui il
ventilatore funziona ad una delle
tre velocità.
s
Controllare la tenuta nei punti più
critici dell’impianto quando lo si
riempie di liquido per la prima volta.
s
Il costruttore declina ogni responsa-
bilità nel caso di malfunzionamento
o danni causati dal gocciolamento
di gruppi di valvole acquistati ester-
namente dall’installatore.
Nel caso l’installatore decidesse di uti-
lizzare delle valvole solenoidi acqua di
zona anzichè singole valvole acqua
montate su ciascun apparecchio, oc-
correrà collegare elettricamente la val-
vola in maniera tale che vada in chiu-
sura nel caso che uno qualsiasi degli
apparecchi si fermi a causa del proprio
sistema di sicurezza; per l’esecuzione
dell’impianto suggeriamo di utilizzare
lo schema a lato riportato.
INSTALLATION WITH
VALVES
PROVIDED BY THE
INSTALLER
s&ORTHEINSTALLATIONOFTHEVALVES
follow the instruction of the producer;
to make the connection to the Cassette,
please make reference to the drawings.
s
In cold water installation, to avoid
that the condensate drops on the
ceiling, it is necessary to insulate
the piping, the valves, and the coil’s
connections.
Valves
ELECTRICWIRINGDIAGRAMS
s
For the connection of the selected
control, follow the instructions included
with the control itself.
ATTENTION:
s
The cables must pass through the
apposite fairleads and flexible couplings.
s4HE VALVES MUST BE CONNECTED
according to the suggested electric
wiring diagrams.
s4HEVALVESUSED MUST STOP THE
entering of the water when there
is no electrical feeding.
s)FTHEPROPOSEDCONNECTIONSARE
not respected, there will be the
risk that the water overflows from
the condensate collection tray.
s
It is necessary that the water valves
close at the same time when the
internal contact of the card between
terminals 2 and 3 opens.
s4HECONTACTBETWEENTHEPOLE
and the pole 3 remains closed until
the level of the condensate inside
the tray reaches the maximum
allowed level.
s
It is important that the valves open
only when the fan is working at
one of the three speeds.
s
Check the seal in the most critical
points of the plant when it is filled
of liquid for the first time.
s
The manufacturer cannot be consider
responsible in case of bad working
or damages due to the drop of valves
sets purchased directly by the installer
from other suppliers.
Should the installer decide to use
some “zone” magnetic water valve
instead of single water valves mounted
on each unit, it will be necessary to
connect electrically the valve so that
it closes in case that one of the units
stops because of its safety system;
for the execution of the installation
we suggest to use the below diagram.
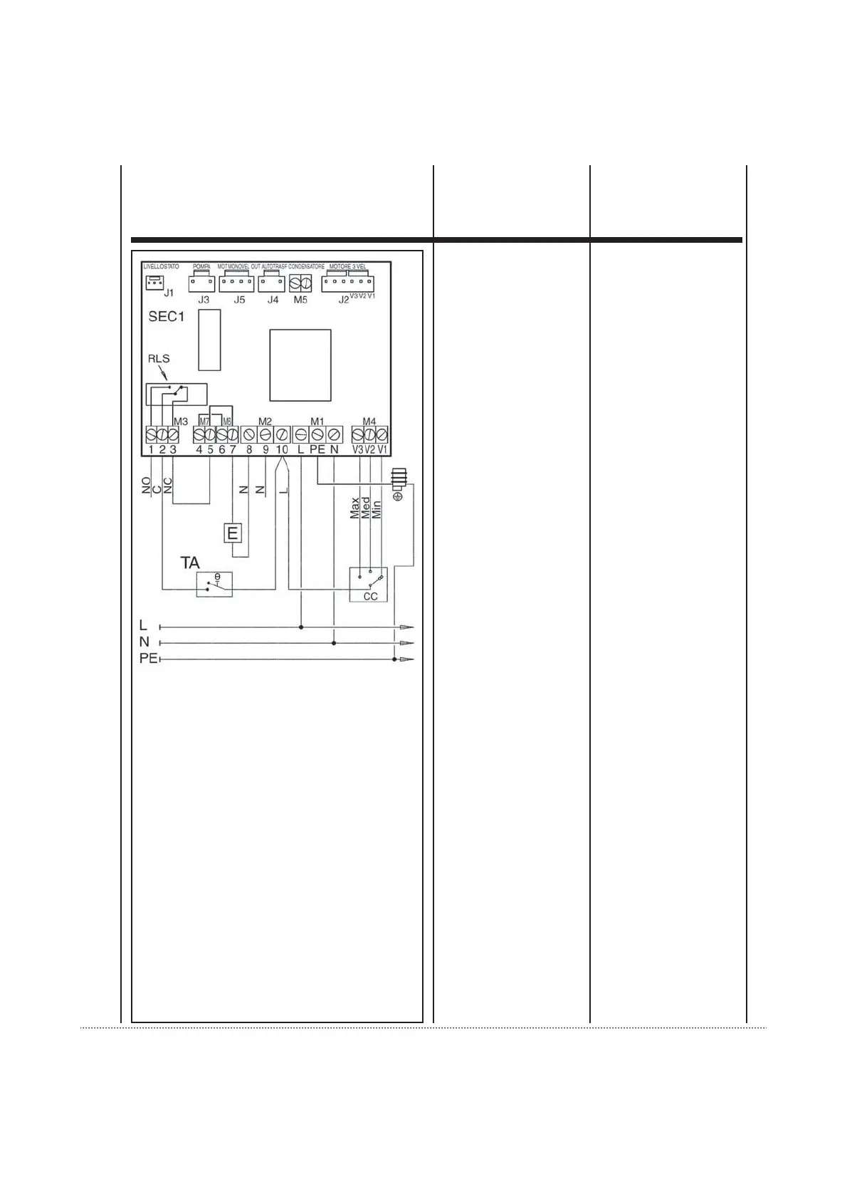
TA = Termostato ambiente
Room thermostat
Thermostat d’ambiance
Raumthermostat
Termostato ambiente
Thermostat omgevingstemperatuur

Table of Contents

Related product manuals