EasyManua.ls Logo

RIB AA30014M - Page 41

RIB AA30014M
Print Icon
To Next Page IconTo Next Page
To Next Page IconTo Next Page
To Previous Page IconTo Previous Page
To Previous Page IconTo Previous Page
Loading...
41
D
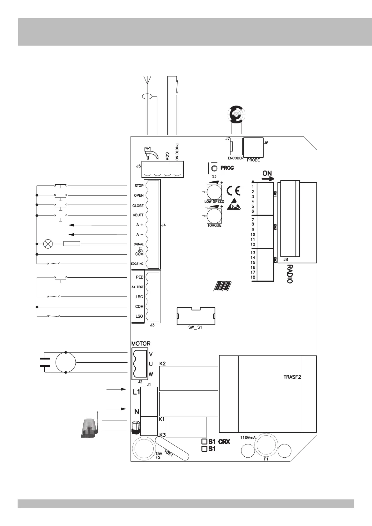
ELEKTROANSCHLÜSSE
S1-CRX Kode AC07097
SCHLIESSE
ÖFFNE
ALLGEMEINE
M
BLINKER
230Vac 40W
SPEISUNG
230Vac 50 Hz
ENDSCHALTER ÖFFNUNG
ENDSCHALTER SCHLIESSUNG
FUSSGÄNGER
ÖFFNE
STOP
SCHLIESSE
SCHRITT BEI SCHRITT
24Vdc 0,4A ± 15%
LED
R=2,2K 1/4W
ALLGEMEINE
RIPPE
ANTENNE
BEFLECHTUNG ANTENNE
ALLGEMEINE
FOTOZELLEN
ENCODER

Related product manuals