EasyManua.ls Logo

RIB AA30014M - Page 53

RIB AA30014M
Print Icon
To Next Page IconTo Next Page
To Next Page IconTo Next Page
To Previous Page IconTo Previous Page
To Previous Page IconTo Previous Page
Loading...
53
S1-CRX còd. AC07097
E
S
A - CONEXIÓN
B - AJUSTES
SW1 SW2 SW3 - MICROINTERRUPTORES PARA PROCEDIMIENTOS
DIP 1 CONTROL DEL SENTIDO DE ROTACIÓN DEL MOTOR (ON) (PUNTO
C)
DIP 2 PROGRAMACIÓN DE LOS TIEMPOS (ON) (PUNTO D)
DIP 1-2 MEMORIZACIÓN/CANCELACIÓN CÓDIGOS DE RADIO MANDO APERTURA
TOTAL (DIP 1 ON seguido de DIP 2 ON) (PUNTO F) SÓLO PARA MODELOS CR
DIP 1-3 MEMORIZACIÓN/CANCELACIÓN CÓDIGOS DE RADIO MANDO APERTURA
PEATONAL (DIP 1 ON seguido de DIP 3 ON) (PUNTO G) SÓLO PARA MODELOS
CRX
DIP 2-1 PROGRAMACIÓN DE LOS TIEMPOS DE APERTURA PEATONAL (DIP 2 ON
seguido por DIP 1 ON) (PUNTO E)
MICROINTERRUPTORES DE GESTIÓN
DIP 3
ON - Habilitación tiempo de espera antes del cierre automático total y peatonal (máx. 5
min.)
OFF - Deshabilitación tiempo de espera antes del cierre automático y peatonal
DIP 4
ON - Mando receptor radio en modalidad Paso Paso
OFF - Mando receptor radio en modalidad Automática
DIP 5
ON - Mando pulsador K BUTT y peatonal en modalidad Paso Paso
OFF - Mando pulsador K BUTT y peatonal en modalidad Automática
DIP 6
ON - Fotocélulas activas sólo durante el cierre
OFF - Fotocélulas siempre activas
DIP 7
ON - Encoder activo para modelos PLUS
OFF - Encoder no activo
DIP 8
ON - Preintermitencia activa
OFF - Preintermitencia no activa
DIP 9
ON - Desaceleración no activa
OFF - Desaceleración activa
DIP 10
ON - Freno electrónico activo
OFF - Freno electrónico no activo
Con K FCM serà necesario activar el freno electrónico - DIP 10 puesto en ON.
DIP 11
ON - Arranque gradual activo
OFF - Arranque gradual no activo
DIP 12
ON - Habilitación TEST monitorización costa
OFF - Deshabilitación TEST monitorización costa
DIP 13
ON - Gestión del funcionamiento de los motores con telerruptores externos a la tarjeta.
Aunque estén habilitados, los siguientes DIP quedan sin funcionamiento:
DIP 7 Encoder
DIP 9 Desaceleración
DIP 10 Freno electrónico
DIP 11 Arranque gradual
Y el trimmer torque (regulador electrónico de la fuerza)
OFF - gestión normal de todas las funciones
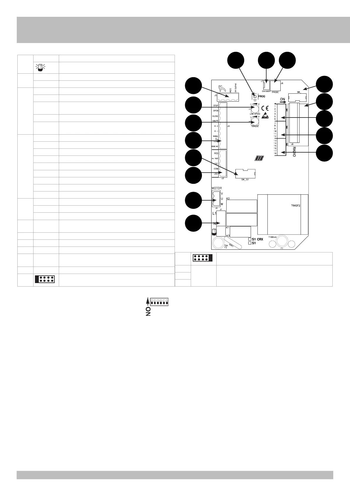
J1 L1 - N ALIMENTACIÓN 230 VAC 50/60 HZ (120V/60HZ BAJO SOLICITUD)
INTERMITENTE (MÁX 40 W)
J2 U CONEXIÓN COMÚN DEL MOTOR
V-W CONEXIÓN INVERSORES Y CONDENSADOR DEL MOTOR
J3 PED. BUTT. CONTACTO MANDO DE APERTURA PEATONAL (NA)
A+ TEST POSITIVO PARA ALIMENTACIÓN AUTOTEST COSTA A 24 VDC
LSC CONTACTO FINAL DE CARRERA QUE DETIENE EL CIERRE DEL
MOTOR
COM COMÚN DE LOS CONTACTOS
LSO CONTACTO FINAL DE CARRERA QUE DETIENE LA APERTURA DEL
MOTOR
J4 STOP CONTACTO DE STOP
OPEN CONTACTO DE APERTURA
CLOSE CONTACTO DE CIERRE
K. BUTT. CONTACTO DE IMPULSO ÚNICO NA
A+ POSITIVO ALIMENTACIÓN ACCESORIOS A 24 VDC
A- NEGATIVO ALIMENTACIÓN ACCESORIOS A 24 VDC
SIGNAL INDICADOR LUMINOSO CANCELA ABIERTA 24 VDC
COM COMÚN DE LOS CONTACTOS
EDGE NC CONTACTO COSTAS EN APERTURA Y CIERRE
J5 AERIAL ANTENA DE RADIO
COM COMÚN DE LOS CONTACTOS
PHOTO NC CONTACTO FOROCÉLULAS
J6 PROBE CONECTOR PARA CONEXIÓN SONDA CALEFACTOR (Cód.
ACG4665)
J7 ENCODER CONECTOR PARA CONEXIÓN ENCODER (SOLO PARA K PLUS)
J8 RADIO CONECTOR PARA RADIO RECEPTOR EXTERNO 24 VDC
S3 PROG. PULSADOR PARA PROGRAMACIÓN
TR1 LOW SPEED REGULADOR ELECRÓNICO DE VELOCIDAD LENTA EN
ACERCAMIENTO A DIP 7 ON (VÉASE TABLA 1)
TR2 TORQUE REGULADOR ELECTRÓNICO DE FUERZA
SW
RADIO
(sólo para los modelos CRX) ¡NO TOCAR EL PUENTE! ¡SI ES
REMOVIDO EL SISTEMA DE RADIO NO FUNCIONA!
SW S1 ¡NO TOCAR EL PUENTE! ¡SI ES REMOVIDO EL OPERADOR NO
FUNCIONA!
SW1 DIP SWICH DE GESTIÓN
SW2
SW3
RADIO
SW
RADIO
J5
TR1
TR2
J4
SW
S1
J3
J2
J1
J7 J6
J8
SW1
SW2
SW3
S3

Related product manuals