EasyManua.ls Logo

RIB K800 Plus - Branchements Électriques

RIB K800 Plus
Print Icon
To Next Page IconTo Next Page
To Next Page IconTo Next Page
To Previous Page IconTo Previous Page
To Previous Page IconTo Previous Page
Loading...
19
F
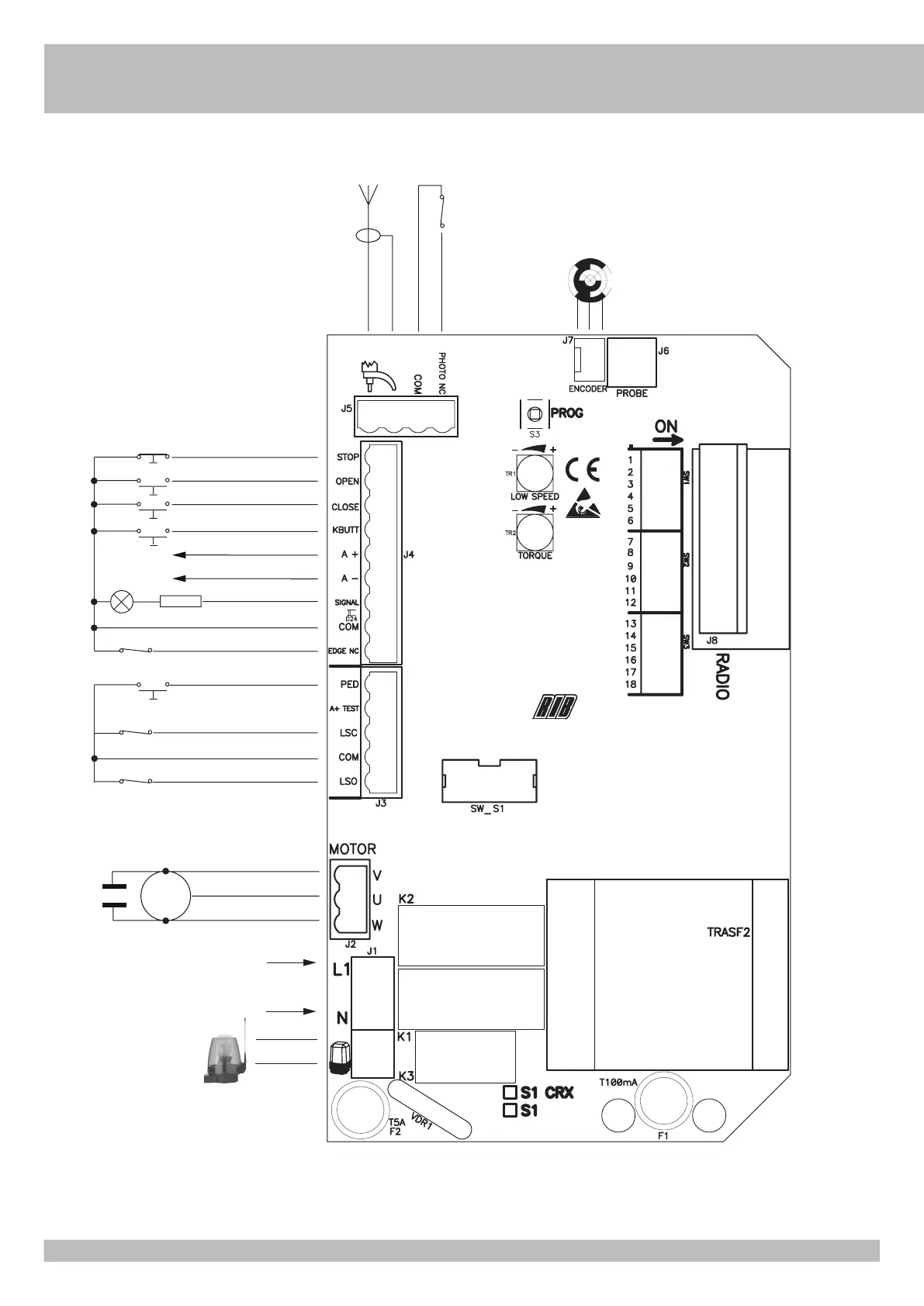
BRANCHEMENTS ÉLECTRIQUES
S1-CRX code AC07097
FERME
OUVRE
COMMUN
M
FEU CLIGNOTANT
230Vac 40W
ALIMENTATION
230Vac 50 Hz
FIN DE COURSE OUVERTURE
FIN DE COURSE FERMETURE
PIETON
OUVRE
STOP
FERME
PAS A PAS
24Vdc 0,4A ± 15%
LED
R=2,2K 1/4W
COMMUN
BARRE PALPEUSE
ANTENNE
ENVELOPPE ANTENNE
COMMUN
PHOTOCELLULES
ENCODER

Other manuals for RIB K800 Plus

Related product manuals