EasyManua.ls Logo

Roca BCH-10 - General Dimensions

Roca BCH-10
48 pages
Print Icon
To Next Page IconTo Next Page
To Next Page IconTo Next Page
To Previous Page IconTo Previous Page
To Previous Page IconTo Previous Page
Loading...
27
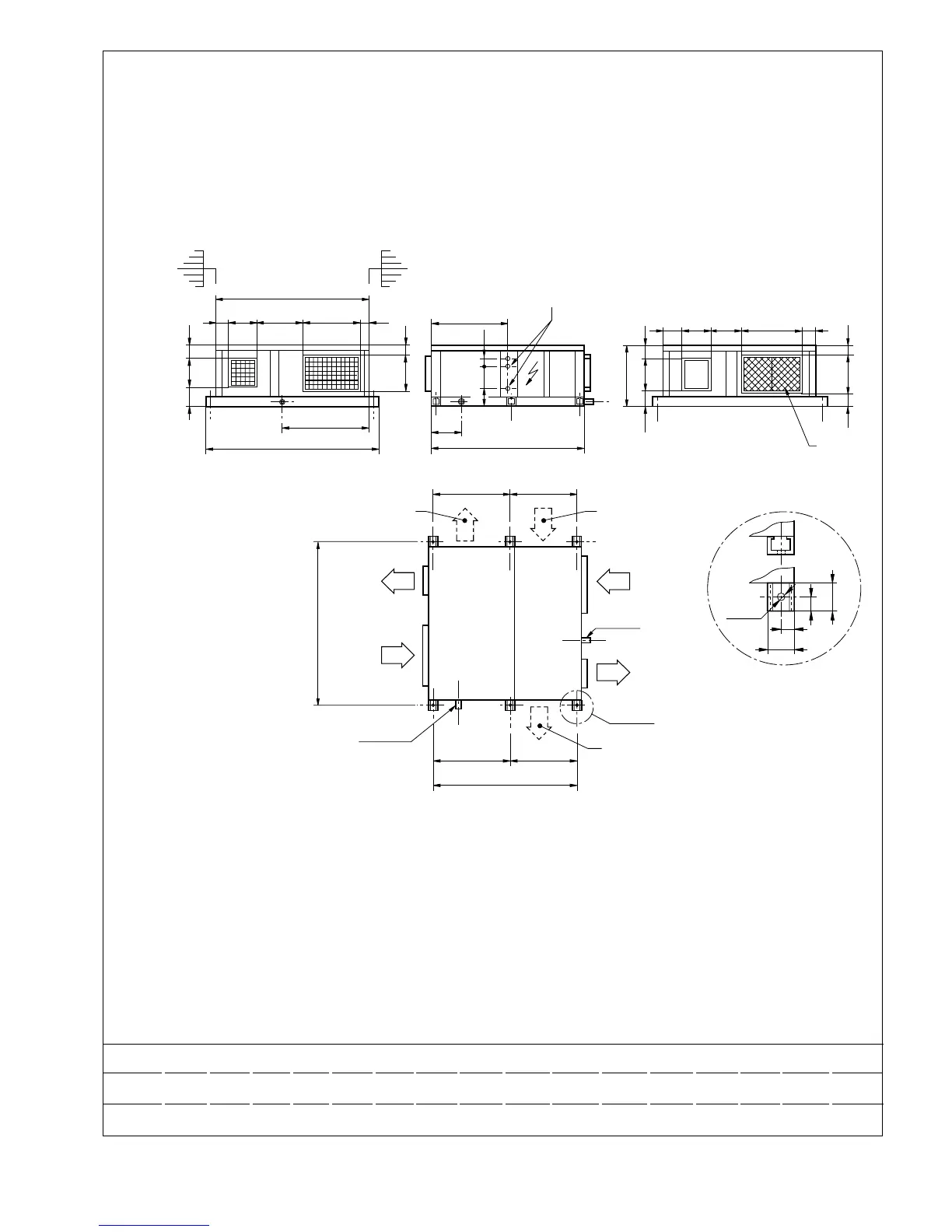
General dimensions mm
BCH - 25 & 30
Note:
1- Always use the six fixing points to assemble to unit.
2- The solid line arrows indicate the standard air inlets and outlets. The
dotted line arrows show inlet and outlet arrangements that can be
performed on the jobsite.
GF
E
M
P
H
K
ELECTRICAL
CONNECTIONS
OPTIONAL INDOOR
AIR OUTLET
OPTIONAL OUTDOOR
AIR INTAKE
B
INDOOR
AIR INTAKE
OUTDOOR
AIR OUTLET
INDOOR
AIR INTAKE
INDOOR
AIR OUTLET
DETAIL "Z"
123 L D 898 C
346
554
346
69
DETAIL "Z"
MINIMUM
CLEARANCE
300
MINIMUM
CLEARANCE
300
820I
J
22 DIAM.
INDOOR
DRAINAGE
AIR FILTER
23
O
A
25
D.12 (6)
30
INDOOR SIDE VIEW
69
640
N
I 820
515 36
883
35
OPTIONAL OUTDOOR
AIR OUTLET
OUTDOOR SIDE VIEW
50
60
225
63
225
22 DIAM.
OUTDOOR
DRAINAGE
210
93
Model A B C D E F G H I J K L M N O P
BCH-25 1 750 1 700 81 233 442 315 133 1 650 870 1 690 1 750 315 667 348 1 145 93
BCH-30 2 150 2 100 130 499 648 400 138 2 050 890 1 710 1 770 400 732 368 1 495 132

Related product manuals