EasyManua.ls Logo

Roca BCH-7 - BCH-12, 15 & 20 Dimensions

Roca BCH-7
48 pages
Print Icon
To Next Page IconTo Next Page
To Next Page IconTo Next Page
To Previous Page IconTo Previous Page
To Previous Page IconTo Previous Page
Loading...
26
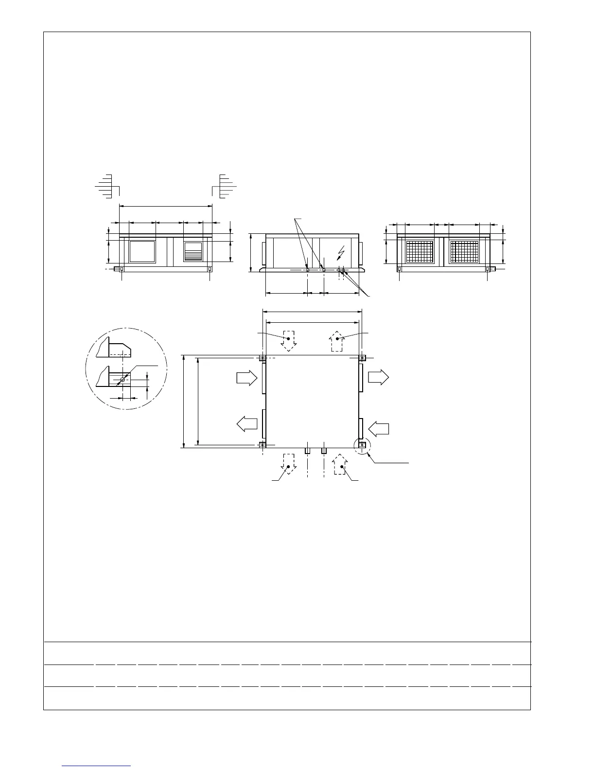
Model A B C D E F G H I J K L M N O P Q S T U V
BCH-12 & 15 555 1440 1384 1492 78 476 412 315 78 430 39 25 345 546 652 324 464 192 430 159 148
BCH-20 727 1440 1384 1492 78 476 412 315 78 430 52 121 345 546 652 324 464 192 596 159 148
General dimensions mm
BCH- 12, 15 & 20
Note:
1- The solid line arrows indicate the standard air inlets and outlets. The
dotted line arrows show inlet and outlet arrangements that can be
performed on the jobsite.
2- If a filter with rack is to be fitted in the air intake, refer to the accessory's
brochure for the dimensions.
EF G HU
B
POQ
22 O.D. DRAIN
CONNECTIONS
OPTIONAL OUTDOOR
AIR INTAKE
OPTIONAL INDOOR
AIR OUTLET
B
D
C
B
INDOOR AIR
OUTLET
INDOOR AIR
INTAKE
OUTDOOR
AIR INTAKE
OUTDOOR
AIR OUTLET
DETAIL "Z"
IF
S
NV
T
K
T
K
J
K
MINIMUM
CLEARANCE
300
MINIMUM
CLEARANCE
500
OPTIONAL
OUTDOOR AIR OUTLET
OPTIONAL
INDOOR AIR INTAKE
OUTDOOR SIDE VIEW
M
L
A
ELECTRICAL
CONNECTIONS
28
D.12 (4)
DETAIL "Z"
20
INDOOR SIDE VIEW

Related product manuals