EasyManua.ls Logo

Rotex RHBH04CB3V - Setting up an Auxiliary Heat Source for Space Heating

Default Icon
104 pages
Print Icon
To Next Page IconTo Next Page
To Next Page IconTo Next Page
To Previous Page IconTo Previous Page
To Previous Page IconTo Previous Page
Loading...
5 Application guidelines
Installer reference guide
16
RRLQ004~008CA + RHBH/X04+08CB
ROTEX HPSU low temperature Bi‑bloc
4P384979-1C – 2017.04
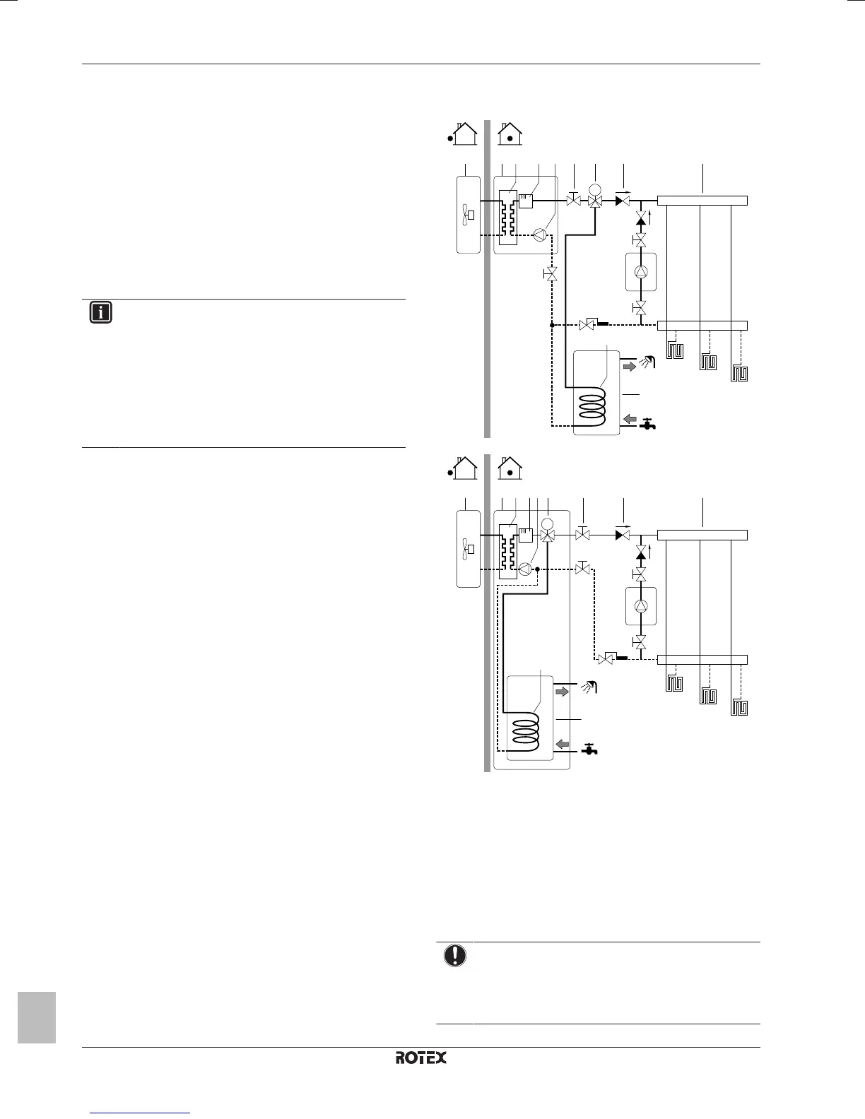
5.3 Setting up an auxiliary heat source
for space heating
Space heating can be done by:
The indoor unit
An auxiliary boiler (field supply) connected to the system
When the room thermostat requests heating, the indoor unit or the
auxiliary boiler starts operating depending on the outdoor
temperature (status of the changeover to external heat source).
When the permission is given to the auxiliary boiler, the space
heating by the indoor unit is turned OFF.
Bivalent operation is only possible for space heating, NOT for
domestic hot water production. Domestic hot water is always
produced by the DHW tank connected to the indoor unit.
INFORMATION
During heating operation of the heat pump, the
heat pump operates to achieve the desired
temperature set via the user interface. When weather-
dependent operation is active, the water temperature is
determined automatically depending on the outdoor
temperature.
During heating operation of the auxiliary boiler, the
auxiliary boiler operates to achieve the desired water
temperature set via the auxiliary boiler controller.
Setup
Integrate the auxiliary boiler as follows:
Only for RHBH/X
a b c d e f g h j
FHL1
FHL2
FHL3
M
h
i
il
k
f
m
n
Only for RHVH/X
a b c d e f
f
g h j
FHL1
FHL2
FHL3
M
h
i
il
k
m
n
a Outdoor unit
b Indoor unit
c Heat exchanger
d Backup heater
e Pump
f Shut-off valve
g Motorised 3‑way valve (delivered with DHW tank)
h Non-return valve (field supply)
i Shut-off valve (field supply)
j Collector (field supply)
k Auxiliary boiler (field supply)
l Aquastat valve (field supply)
m DHW tank (RHBH/X: option)
n Heat exchanger coil
FHL1...3 Underfloor heating
NOTICE
Make sure the auxiliary boiler and its integration in the
system complies with applicable legislation.
ROTEX is NOT responsible for incorrect or unsafe
situations in the auxiliary boiler system.

Table of Contents

Related product manuals