EasyManua.ls Logo

Salicru SLC CUBE 3+ - Page 11

Salicru SLC CUBE 3+
72 pages
Print Icon
To Next Page IconTo Next Page
To Next Page IconTo Next Page
To Previous Page IconTo Previous Page
To Previous Page IconTo Previous Page
Loading...
11
(00)
(PR)
(CL)
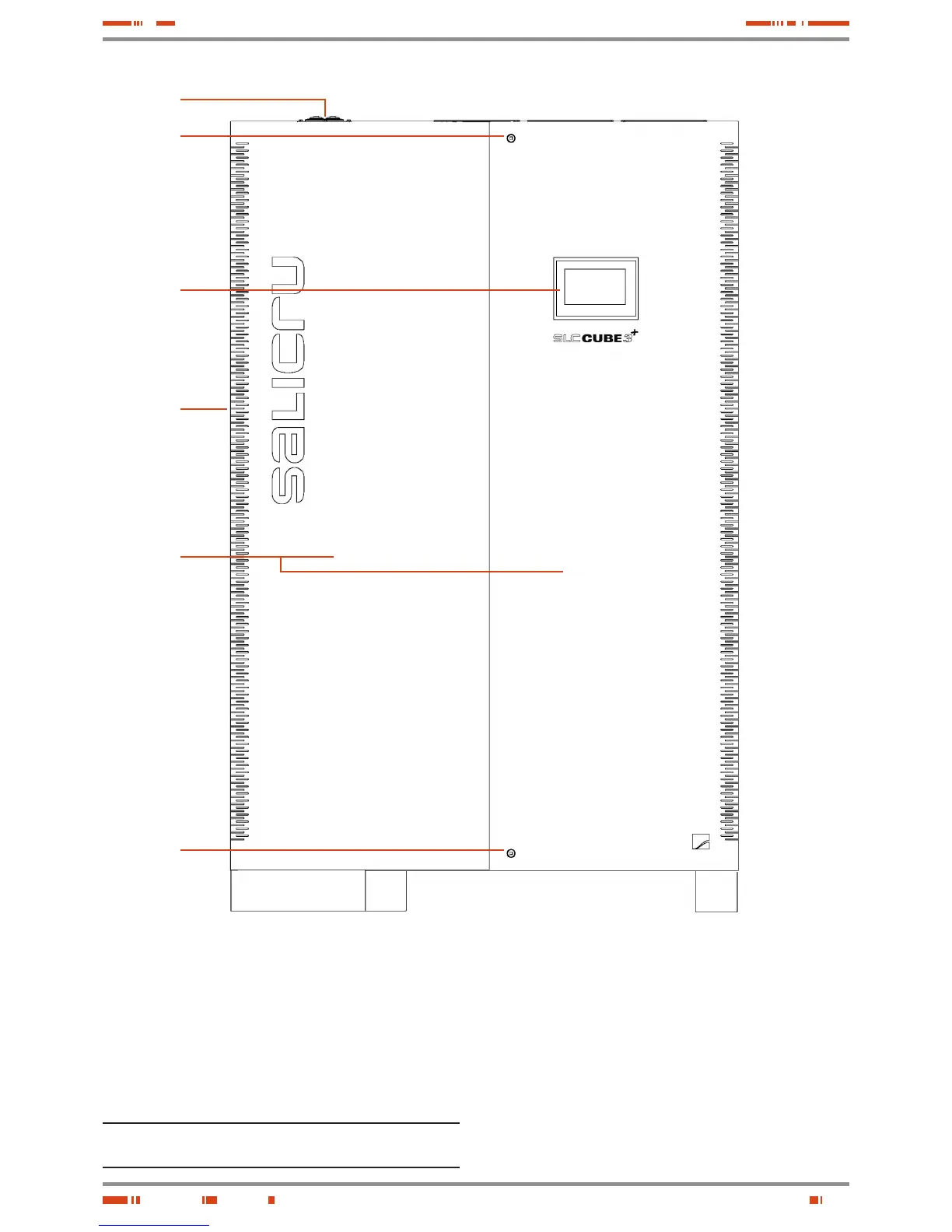
Fig. 24
(RV)
(PF)
(CL)
SALICRU
(00)
Top entry cable (Optional).
Fig. 5. UPS front view of 80 and 100 kVA (LV) / 160 and 200
kVA (HV), with separate static bypass line (-B).

Related product manuals