EasyManua.ls Logo

Samson 3372 - Page 3

Samson 3372
8 pages
Print Icon
To Next Page IconTo Next Page
To Next Page IconTo Next Page
To Previous Page IconTo Previous Page
To Previous Page IconTo Previous Page
Loading...
T 8313 EN 3
1
10
15
5.1
40
42
41
7
1
5
5.1
15
21
10
4
40
42
41
7
21
2
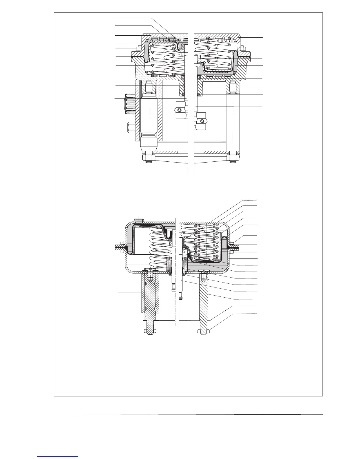
Fig.6: Type3372 Electropneumatic Actuator with 120cm² actuator area for the direct attachment of a Type3725 Positioner
1
15
27
25
20
21
4
5
10
40
42
41
7
33
60
54
2
61
Fig.7: Type3372 Electropneumatic Actuator with 350cm² actuator area for the direct attachment of a Type3725 Positioner
LegendforFig.6andFig.7
1/2 Diaphragm case 20 Hexagon bolt 41 Wiper ring
4 Diaphragm 21 Hexagon nut 42 Plain bearing
5 Diaphragm plate 25 Washer 54 Hexagon nut (for 33)
7 Actuator stem 27 Compressor 60 Plate
10 Spring 33 Rod 61 Support element
15 Collar nut 40 Radial shaft seal

Other manuals for Samson 3372

Related product manuals