EasyManua.ls Logo

S&A CW-6200 - Installation Procedures; Pre-Installation Checks; Installation Site Requirements; Cooling Medium Requirements

S&A CW-6200
20 pages
Print Icon
To Next Page IconTo Next Page
To Next Page IconTo Next Page
To Previous Page IconTo Previous Page
To Previous Page IconTo Previous Page
Loading...
TY-JS-20319-003
9
IV.
Installation
1. Open the package and check whether the machine is in good condition
and whether the accessories are complete.
2. Please ensure that the working voltage of the chiller is stable and
normal.
Because the refrigeration compressor is sensitive to the power supply voltage, the normal
working voltage of our company's standard products is 210~240V (110V model is
100~120V). If wider operating voltage range is necessary, customization is available.
3. Equipment installation conditions and requirements
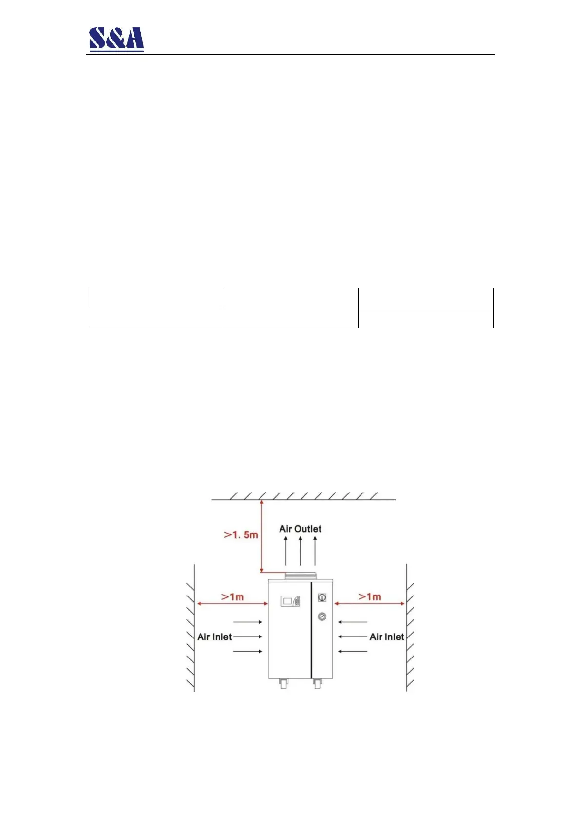
(1) It must be installed on a horizontal surface and not tilted.
(2)The air outlet of the chiller should be at least 1.5m away from the obstacle, and the air
inlet must be at least 1m away from the obstacle (See below diagram).
(3) Do not install in harsh environments such as corrosive, flammable gas, dust, oil mist,
conductive dust, high temperature and humidity, strong magnetic field, direct sunlight, etc.
(4) Operating Environment
Ambient Temperature
Ambient Humidity
Altitude
0~40
≤90%RH
≤3,000m
(5) Medium Requirements
Cooling medium allowed by the chiller includes purified water, distilled water, high-purity
water and other softened water. It is forbidden to use oily liquids, liquids containing solid
particles, corrosive liquids, etc. Clean the filter element and replace the cooling water
regularly (about three months is recommended) to ensure the normal operation of the
chiller.
When the chiller is stored with water at room temperature lower than 2, it is necessary
to add anti-freezer in the chiller water tank. It is recommended to use antifreeze with a
concentration of not more than 30% containing ethylene glycol or propylene glycol. After
the temperature warms up, change to purified water, distilled water or other suggested
cooling media, let the chiller run for 30 minutes to remove the residual anti-freezer and
drain it, and then refill with unused circulating water.
4. Determine the direction of the pipeline layout according to the water
inlet and outlet of the chiller, and ensure that the waterway is clean and

Other manuals for S&A CW-6200

Related product manuals