EasyManua.ls Logo

Seagate Exos 7E10 - Drive mounting

Seagate Exos 7E10
41 pages
Print Icon
To Next Page IconTo Next Page
To Next Page IconTo Next Page
To Previous Page IconTo Previous Page
To Previous Page IconTo Previous Page
Loading...
Seagate Exos 7E10 Serial ATA Product Manual, Rev. B 25
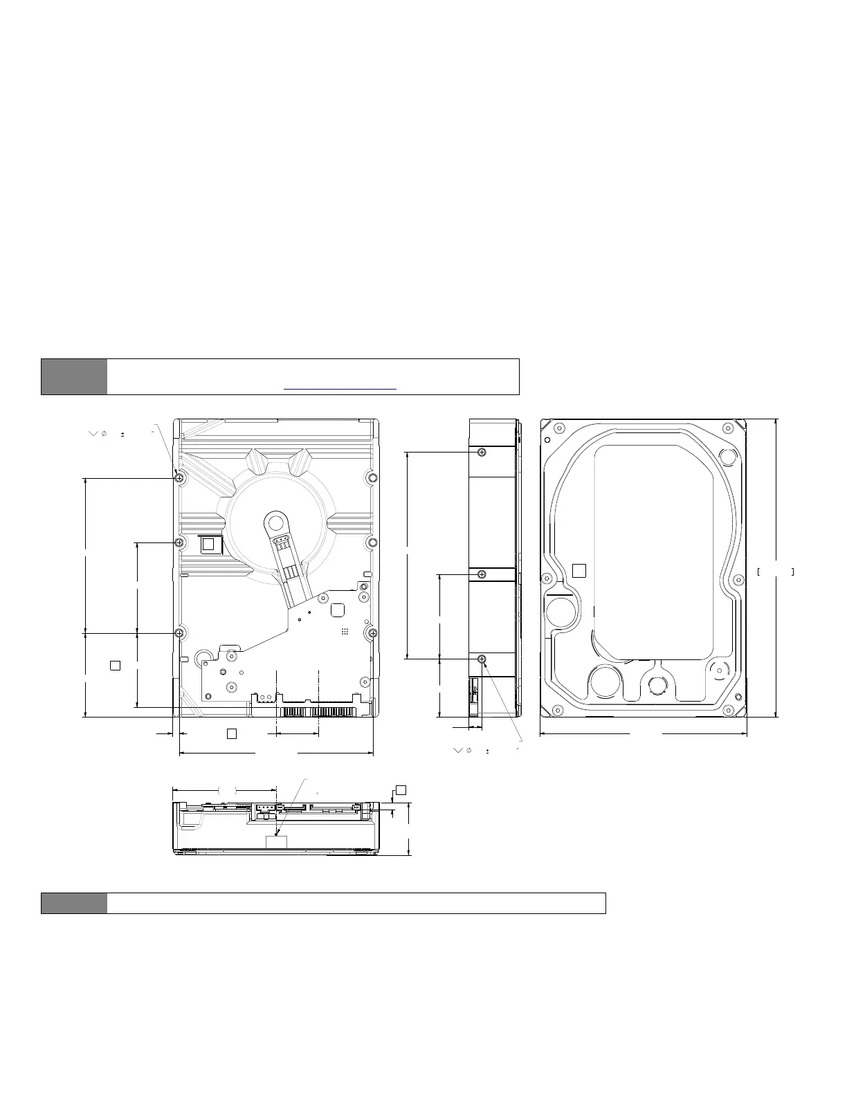
3.4 Drive mounting
Users can mount the drive in any orientation using four screws in the side-mounting holes or four screws in the bottom-mounting holes.
See Figure 3 for drive mounting dimensions. Follow these important mounting precautions when mounting the drive:
Allow a minimum clearance of 0.030 in (0.76mm) around the entire perimeter of the drive for cooling.
Use only 6-32 UNC mounting screws.
The screws should be inserted no more than 0.140 in (3.56mm) into the bottom or side mounting holes.
Do not overtighten the mounting screws (maximum torque: 6 in-lb).
3.4.1 Mechanical specifications
Refer to Figure 3 for detailed mounting configuration dimensions. See Section 3.4, “Drive mounting.”
Figure 3. Mounting configuration dimensions 5-disk models
Weight: 10TB models 1.59 lb 720g
8TB models 1.58 lb 716g
6TB models 1.43 lb 650g
4TB and 2TB models 1.37 lb 620g
Note
These dimensions conform to the Small Form Factor Standard documented in
SFF-8301 and SFF-8323, found at www.sffcommittee.org
Note The image is for mechanical dimension reference only and may not represent the actual drive.
2X 1.750±.010
3X 3.750±.010
2
2X 1.432±.020
3X .125±.010
2X 1.625±.020
2X 3.000±.010
2
.814±.020
C
L
OF DRIVE
6X 6-32 UNC-2B
.169
.010 x 90
3 MIN THREAD DEPTH
.14 MAX FASTENER PENETRATION
MOUNTING HOLES
MAX TORQUE: 6 IN-LBF
C
L
OF CONN
3X .250±.010
BOTH SIDES
1.122±.020
1.638±.010
4.000±.010
6X 6-32 UNC-2B
.160
.010 x 90
3 MIN THREAD DEPTH
.14 MAX FASTENER PENETRATION
MOUNTING HOLES BOTH SIDES
MAX TORQUE: 6 IN-LBF
1.028 MAX
[26.10MM]
2
.138±.015
2.000
C
L
OF DRIVE
TEMPERATURE
CHECKPOINT
60
C MAX
4.000±.010
5.787 MAX
147.00 MM

Table of Contents

Related product manuals