EasyManua.ls Logo

Seagate STD2401LW-S - Connecting Internal Drive Cables

Seagate STD2401LW-S
58 pages
Print Icon
To Next Page IconTo Next Page
To Next Page IconTo Next Page
To Previous Page IconTo Previous Page
To Previous Page IconTo Previous Page
Loading...
Installation
21
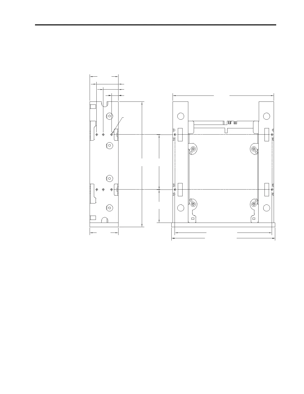
Mounting the drive in a 5.25-inch drive bay
If you are mounting the drive in a 5.25-inch drive bay, you must use a drive with
mounting brackets attached. As shown in Figure 10 below, the 5.25-inch drive
brackets have four screw holes on the bottom and six on each side.
41.3 mm
(1.63 in)
31.5 mm (1.24 in)
146 mm
(5.75 in)
174.6 mm
(6.87 in)
79.4 mm
(3.13 in)
47.6 mm
(1.87 in)
21.8 mm (0.86 in)
9.9 mm (0.39 in)
16-M3
41.2 mm
(1.62 in)
139.7 mm (5.50 in)
149.1 mm (5.87 in)
Side View
Bottom View
Note: Tolerance for all dimensions is 0.25mm (0.01 in)
Figure 10. Mounting holes for internal Scorpion 40 in 5.25-inch configuration (with
mounting brackets)
Connecting the SCSI interface cable
Scorpion 40 drives can be used with two different types of SCSI interfaces: Ultra2
SCSI (LVD) or “Wide” (16-bit) single-ended SCSI. The drive can automatically detect
whether it is connected to an LVD or single-ended wide SCSI bus.
Note: The Scorpion 40 will not work in a SCSI-1 environment.
Connecting to a 68-pin Wide SCSI or LVD bus
To connect the drive to an LVD or SCSI wide bus, first turn off all power to the drive
and computer. Then attach the interface cable to the SCSI interface connector on the
back of the drive (see Figure 11 on the following page).

Table of Contents

Related product manuals