EasyManua.ls Logo

Sens MicroGenius S2 - Page 65

Default Icon
70 pages
Print Icon
To Next Page IconTo Next Page
To Next Page IconTo Next Page
To Previous Page IconTo Previous Page
To Previous Page IconTo Previous Page
Loading...
;

;

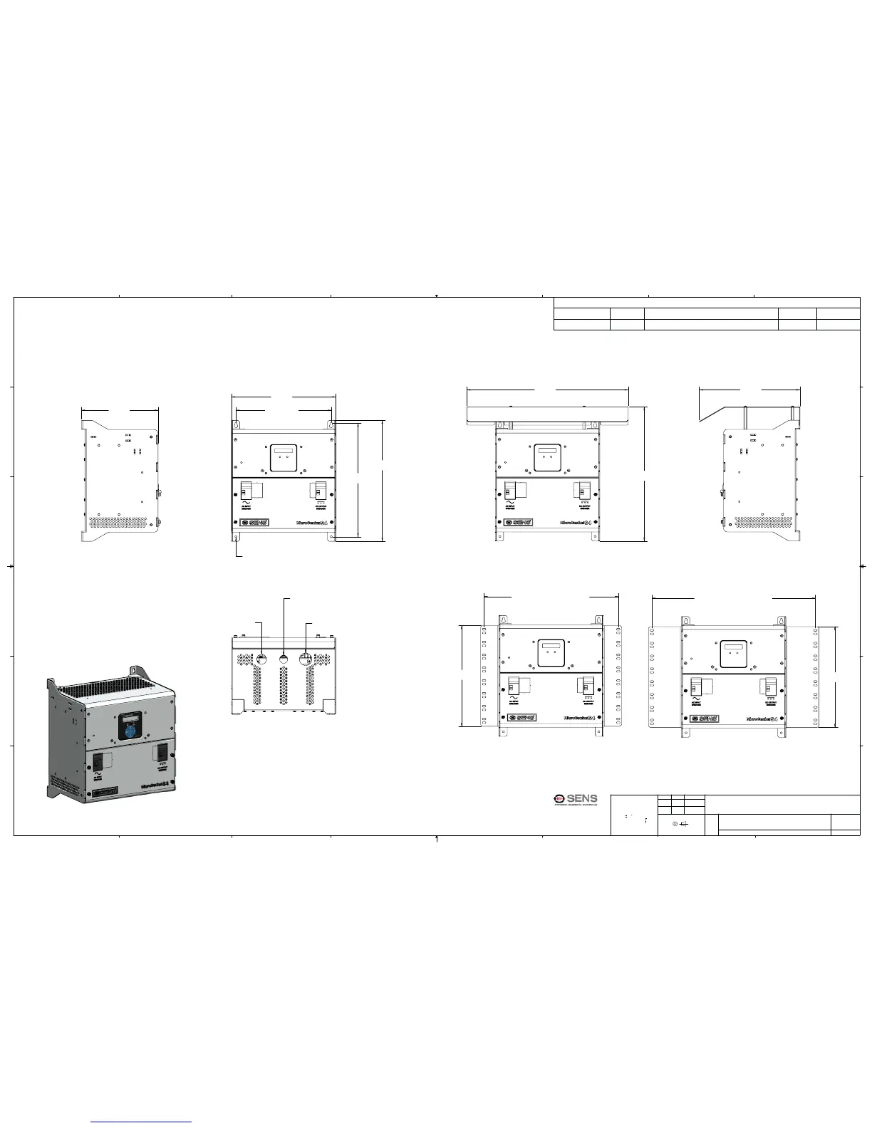
;02817,1*/2&$7,216
)25,1+$5':$5(
,1137&21'8,723(1,1*
)25$&:,5,1*
,1137&21'8,723(1,1*
)25&20081,&$7,21:,5,1*
,1137&21'8,723(1,1*
)25'&:,5,1*






)25,1(,$5$&.
,15$&.02817%5$&.(76


)25,1(,$5$&.
127(6
'5,36+,(/',6237,21$/

,1$1',15$&.02817%5$&.(76$5(237,21$/

7+(,167$//$7,212)7+,6(48,30(176+$//&203/<:,7+$///2&$/

$87+25,7<$1'$33/,&$%/(%8,/',1*&2'(6
3529,'($0,1,080&/($5$1&()520&+$5*(5&+$66,62),121

723,121%27720$1',1216,'(62)81,7)259(17,/$7,21
7+(6(9,(:66+2:1:,7+237,21$/'5,36+,(/'
,15$&.02817%5$&.(76
5(9,6,216
'&1
5(9
'(6&5,37,21
'$7(
$33529('

$
,1,7,$/5(/($6(

(56
'
&
%
$
$
%
&
'
(
)
(
)
',0(16,21672/(5$1&(6
3(5$60(<
$
'
'&$'667'
6+((72)
'&$'667$1'$5'

(56
5(9
'2&80(17180%(5
6,=(
'(6&5,37,21
1$0(
'$7(
&+(&.('
'5$:1
7+,5'$1*/(352-(&7,21
81/(6627+(5:,6(63(&,),('
',0(16,216$5(,1
,1&+(6
'()$8/772/(5$1&(6
$1*/(6

7:23/$&('(&,0$/

7+5((3/$&('(&,0$/

'21276&$/('5$:,1*
7+(,1)250$7,21&217$,1(',17+,6'5$:,1*,67+(62/(
3523(57<2)6725('(1(5*<6<67(06//&$1<
5(352'8&7,21,13$5725$6$:+2/(:,7+2877+(:5,77(1
3(50,66,212)6725('(1(5*<6<67(06//&,6352+,%,7('
35235,(7$5<$1'&21),'(17,$/
,1'8675,$/&,5&/(
/21*0217&2

:::6(1686$&20

Related product manuals