EasyManua.ls Logo

Sensitron MULTISCAN++S1 - Installation and Connections; Mounting and Electrical Connections

Sensitron MULTISCAN++S1
86 pages
Print Icon
To Next Page IconTo Next Page
To Next Page IconTo Next Page
To Previous Page IconTo Previous Page
To Previous Page IconTo Previous Page
Loading...
MT3401E.doc rev.0 21/05/13 Pagina 7 di 86
2) INSTALLATION
2.1) Mounting and electrical connections
After opening the transparent unit door, also open the front panel by rotating the black lock to
UNLOCK.
Disconnect the two wires that lead from the unit board (JP47 and JP51 connectors) to the
bottom of the box for power connections (see fig. 2.1.1). Close the front panel turning the lock to
LOCK.
Remove the 4 screws at the 4 corners of the box and remove the front part of the unit box.
Holes can now be drilled in the back of the box for wire passage.
We recommend you use an IP65 wire clamp at wire entrance to maintain the same protection
level as the unit.
Secure the back of the unit to the wall using the holes (D) or by the enclosed brakets.
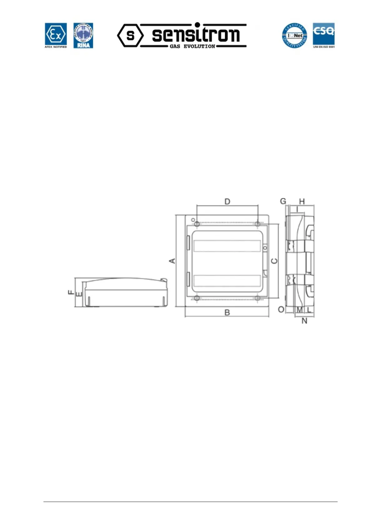
Fig. 2.1 a) Control panel box
Dimensions (mm): A 470, B 426, C 380, D 312, E 128, F 148, G 14, H 125, I 75, L 50, M 48, N
98, O 41
Connect the tri-polar mains wire to the power supply terminal board (minimum 1.5mm
2
per pole) and secure it with the specific wire clamp.
Power the unit and, next, connect the red and black tipped faston wires to the 2 12 V 7
Ah max lead buffer battery power supply, housing them in the lower part of the cabinet
(bottom)