EasyManua.ls Logo

SERV-WARE Select Series - Technical Specifications; Equipment Dimensions and Weight

SERV-WARE Select Series
30 pages
Print Icon
To Next Page IconTo Next Page
To Next Page IconTo Next Page
To Previous Page IconTo Previous Page
To Previous Page IconTo Previous Page
Loading...
www.servware.com
800•7685953
With
Backsplash
Attached
Without
Backsplash
Attached
41 17/64"
62 33/64"
With
Backsplash
Attached
Without
Backsplash
Attached
41 17/64"
62 33/64"
Models
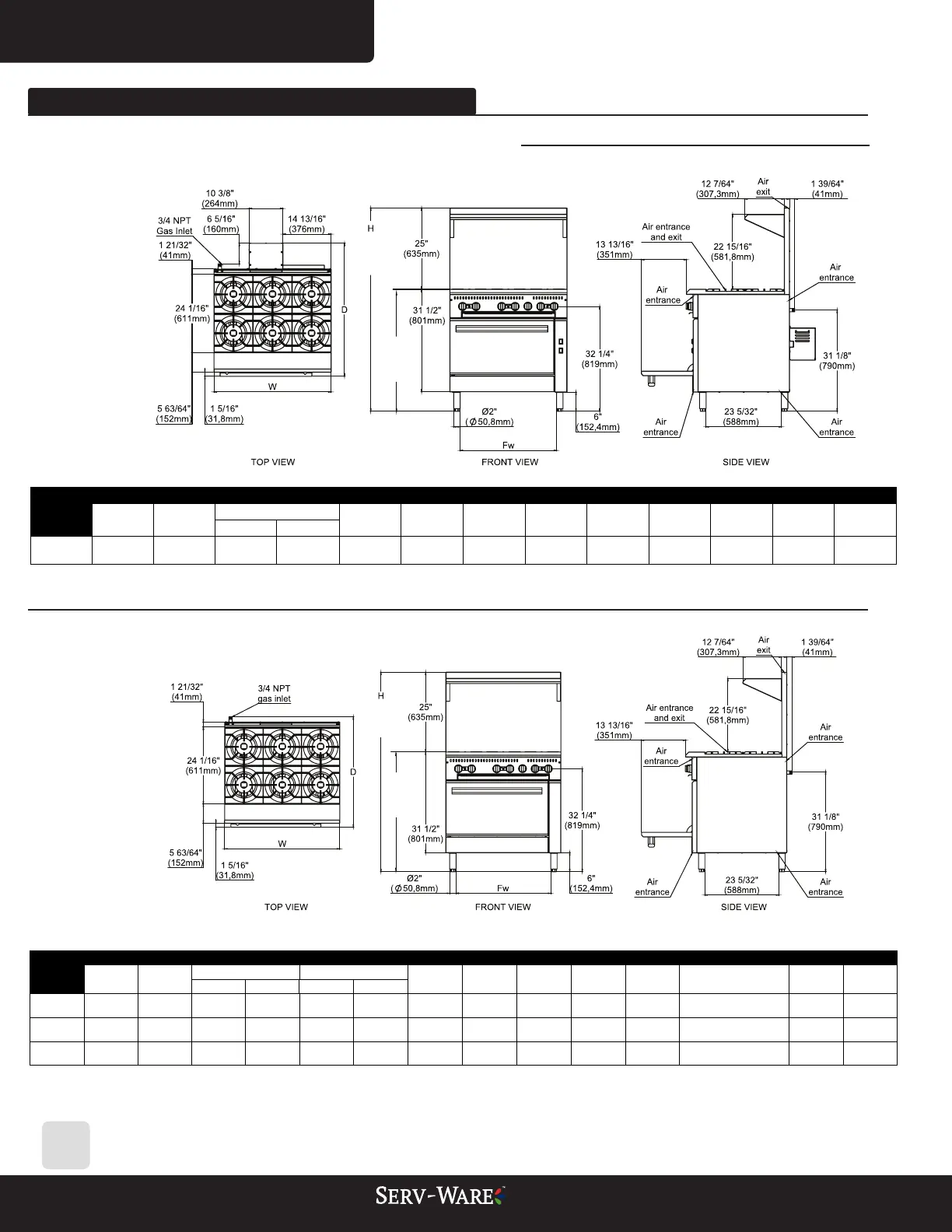
Exterior Product Dimensions & Weight Shipping Crate Dimensions & Weight Oven - Inside
Width (W) Depth (D)
Height (H)
Fw Weight Width Depth Height Weight Width Depth Height
W.O.B.S. W.B.S.
SS-SGR-6B 36" 40 15/16" 41 17/64" 62 33/64" 29 39/64" 417 lb 47 7/16" 44 1/2" 54 47/6 4" 584 lb 26 31/32" 26 1/2" 15 23/64"
Models
Exterior Product Dimensions & Weight Shipping Crate Dimensions & Weight Oven - Inside
Width (L) Depth (P)
Height (H) Fw
Weight Width Depth Height Weight Width Depth Height
W.O.B.S. W.B.S.
Fw1 Fw2
SS-SGR-4B
24" 35" 41 17/6 4" 62 33/64" 17 19/32" 17 19/32" 276 lb 28 5/32" 39 1/64" 45 43/64" 397 lb 18 57/64" 26 1/2" 15 23/64"
SS-SGR-6B
36" 35" 41 17/6 4" 62 33/64" 29 39/64" 29 39/64" 386 lb 47 7/16" 39 1/64" 45 43/64" 529 lb 26 31/32" 26 1/2" 15 23/64"
SS-SGR-10B
60" 35" 41 17/6 4" 62 33/64" 17 19/32" 29 39/64" 662 lb 64 61/64" 39 1/64" 45 43/64" 1085 lb 18 57/64" – 26 31/32" 26 1/2" 15 23/64"
Service, Installation & Care Manual
24
05. TECHNICAL SPECIFICATIONS
5.1 Equipment Dimensions and Weight
CONVECTION
OVEN RANGE
LINE
STANDARD
OVEN RANGE
LINE

Related product manuals