EasyManua.ls Logo

Servend CEV SERIES - CEV40 Footprint

Servend CEV SERIES
40 pages
Print Icon
To Next Page IconTo Next Page
To Next Page IconTo Next Page
To Previous Page IconTo Previous Page
To Previous Page IconTo Previous Page
Loading...
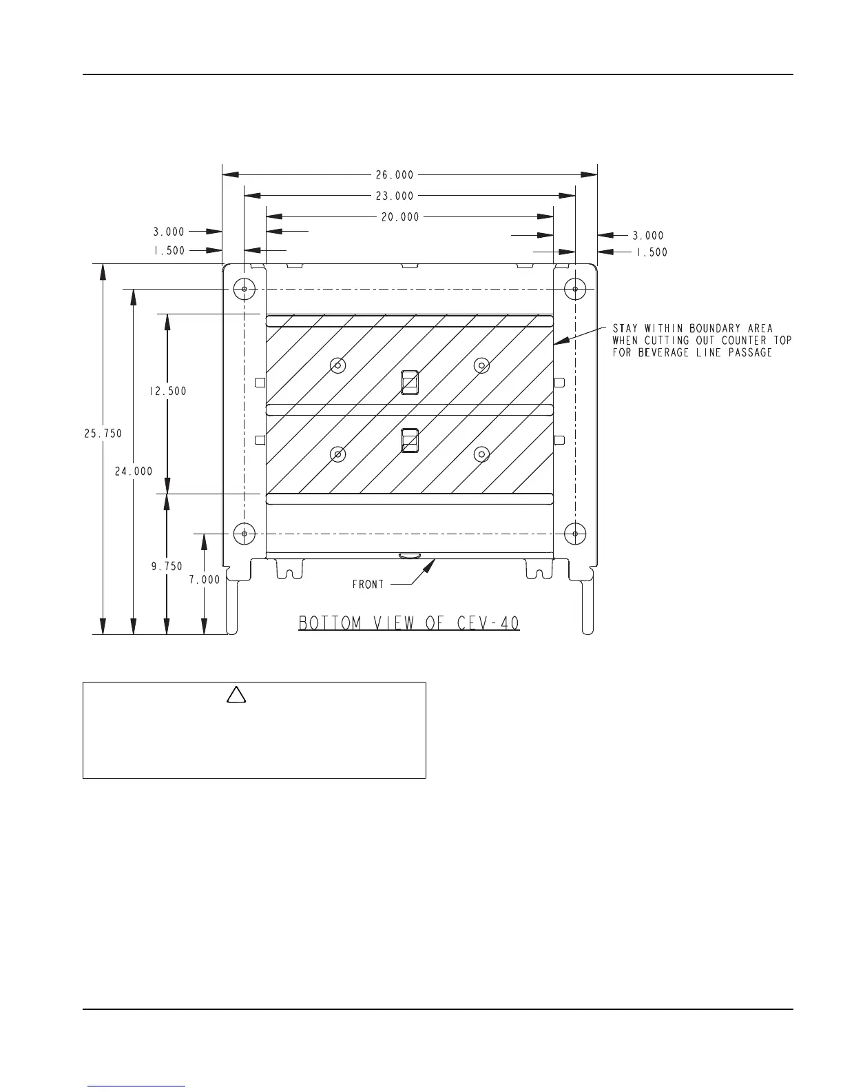
Section 2 Installation Instructions
Part Number 020004000 10/13 2-7
CEV40 FOOTPRINT
!
Caution
Cutting the countertop may decrease its strength.
Counter should be braced to support the dispenser
countertop weight plus ice storage capacity and
weight of icemaker, if applicable.

Related product manuals