EasyManua.ls Logo

Sharp AL-1540CS - Page 118

Sharp AL-1540CS
131 pages
Print Icon
To Next Page IconTo Next Page
To Next Page IconTo Next Page
To Previous Page IconTo Previous Page
To Previous Page IconTo Previous Page
Loading...
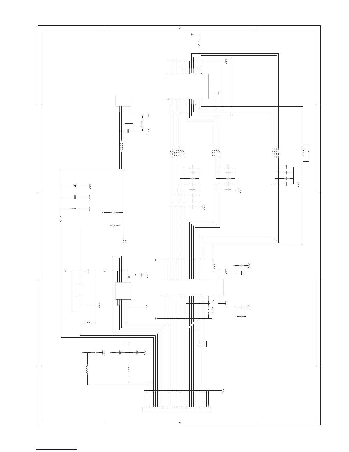
AL-1551CS CIRCUIT DIAGRAM 13 - 11
3. I/F PWB
F.G
F.G
VMO
OEN
/AUTOFD
/INTI
5VEN
VPO
USB_IN
VMIN
5VEN
VPIN
RCV
3.3V
SUSPEND
PE
SLCT
PARAAD4
PARAAD7
PARAAD0
PARAAD1
PARAAD3
PARAAD5
PARAAD6
REV
/ACK
BUSY
/FAULT
/SLCTIN
/STB
D_CONT
PARAAD2
IF_DET
1
2
3
4
5
6
7
8
9
10
11
12
13
14
15
16
17
18
19
20
21
22
23
24
25
26
27
28
29
30
31
32
33
34
35
HD
1
A9
2
A10
3
A11
4
A12
5
A13
6
Vcc
7
A1
8
A2
9
GND
10
A3
11
A4
12
A5
13
A6
14
GND
15
A7
16
A8
17
Vcc
18
PLHin
19
A14
20
A15
21
A16
22
A17
23
HLH
24
HLHin
25
C17
26
C16
27
C15
28
C14
29
PLH
30
Vcc-cable
31
B8
32
B7
33
GND
34
B6
35
B5
36
B4
37
B3
38
GND
39
B2
40
B1
41
Vcc-cable
42
Y13
43
Y12
44
Y11
45
Y10
46
Y9
47
DIR
48
NC
1
OE#
2
RCV
3
VP
4
VM
5
SUSPEND
6
GND
7
NC
8
SPEED
9
D-
10
D+
11
VPO
12
VMO
13
VCC
14
+5V
1
D-
2
D+
3
GND
4
Shield
A
1
GND
3
VCC
5
B
2
Y
4
D-GND
30
D-GND
26
HLHIN
35
D-GND
27
/INIT
31
D-GND
28
SG
16
D-GND
29
NC
15
SLCT
13
NC
34
Data 0
2
Data 1
3
FG
17
Data 2
4
D-GND
19
Data 3
5
D-GND
20
Data 5
7
D-GND
21
Data 6
8
D-GND
22
/SLCT IN
36
D-GND
23
/AUTO FD
14
D-GND
24
D-GND
25
/D STB
1
PLHOUT
18
/ACK
10
BUSY
11
PE
12
/FAULT
32
Data 4
6
Data 7
9
D-GND
33
Shield
C424
0.1u
R408
22J
CN403
35FE-BT-VK-N
C423
0.1u
R409
22J
R410
22J
R411
22J
C408
100p
C407
100p
R401
N.M.
C406
100p
R423
1.5kJ
C405
100p
C410
100p
C409
100p
C411
100p
C404
100p
L401
N.M.
L405
beads
C426
100p
C413
100p
R403 24J
R412
22J
C403
0.1u
C412
100p
R402 24J
IC403
74LVX161284
R427
10kJ
R413
22J
C415
100p
IC401 USB_Transceiver
C414
100p
C418
100p
C422
100p
C417
100p
C416
330p
C419
100p
L402
N.M.
R429
10kJ
L404 N.M.
R430 24J
R405
22J
R426 10kJ
C402
47u/16V
+
C420
0.1u
CN402
USB_CN
R418
22J
R428
10kJ
R419
22J
R424 10kJ
L403 N.M.
R422
22J
C425
0.1u
D401
11EQS06
C427
0.1u
R420
3.3KJ
D402
ZENER_6.2V
R414 22J
IC402
NC7S08M5
R415 22J
C421
0.1u
R416
22J
R404
N.M.(1.5kJ)
R417
22J
R421
22J
CN401
IEEE1284_CN
R406
22J
R407
22J
R425 10kJ
C401
47u/16V
+
3.3V1
3.3V1
3.3V1 5V1
3.3V1
3.3V1
5V1
5V2
5V1
5V2
3.3V1
3.3V1
A
A
B
B
C
C
D
D
E
E
4 4
3 3
2 2
1 1

Related product manuals