EasyManua.ls Logo

Sharp CD-DVD500 - Schematic Diagrams; DVD Servo PWB Schematics

Sharp CD-DVD500
100 pages
Print Icon
To Next Page IconTo Next Page
To Next Page IconTo Next Page
To Previous Page IconTo Previous Page
To Previous Page IconTo Previous Page
Loading...
CD-DVD500
– 26 –
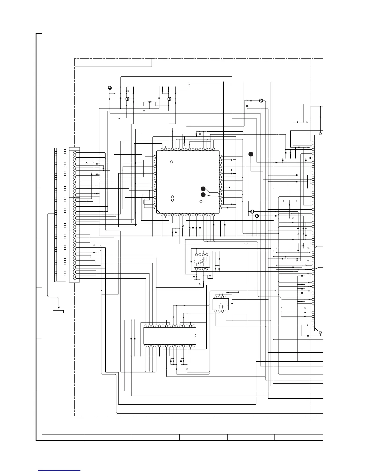
Figure 26 SCHEMATIC DIAGRAM (1/18)
A
B
C
D
E
F
G
H
1
23456
• NOTES ON SCHEMATIC DIAGRAM can be found on page 56.
2
1
1
2
3
1
3
3
VF
GND
VE
VA
PD
VR
VC
LD
GND
VCC
V/2
GND
VD
VB
GND
VA
V/2
GND
GND
VCC
SL+
SL+
SL–
SL–
GND
IN_SW
SP–
SP–
SP+
SP+
DISC1_SW
CAM_SW
LD/EJ_SW
GND
LD+
LD+
LD–
LD–
VB
VOSC
VC
PD
VR
LD
FO–
FO+
TR+
TR–
PICK_UP
50
49
48
47
46
45
44
43
42
41
40
39
38
37
36
35
34
33
32
31
30
29
28
27
26
25
24
23
22
21
20
19
18
17
16
15
14
13
12
11
10
9
8
7
6
5
4
3
2
1
64
63
62
61
60
59
58
57
56
55
54
53
52
51
50
49
GNDS
P2DI(D)
P2CI(C)
P2BI(B)
P1AI(A)
P1BI(B)
P1CI
P1DI
LDP1
P2AI(A)
LDP2
GNDR
P1FP(B)
123456789
10 11 12 13 14 15 16
Vrfil
VRCK
SCD
SCL
SCB
DPD2
DPD1
DPBD
DPAC
Vdd
VrD
MDI2
LDO2
P2TN(D)
P2TP(C)
GND
64
63
17
P2FN(A)
P2FP(B)
VCKF
32
31
30
29
28
27
26
25
24
23
22
21
20
19
18
17
RFS
RFOp
RFOn
NC
VccR
RPP
RPB
RPO
RPZ
VccS
DFTN
FEO
TEO
LVL
VccP
48 47 46 45 44 43 42 41 40 39 38 37 36 35 34 33
VrA
TCC1
NC
P1TP
P1TN
LDO1
MDI1
EQF
EQB
EQF
EQB
RFDC
GND2
NC
Vcc2
FEB
TEB
DPDB
DPDB
8765
1234
VCC
GND
+
+
4321
5678
LH
14 13 12 11 10
9
8
30
7654321
15 16 17 18 19 20 21 29 22 23 24 25 26 27 28
LD-FWD
IN1(+)
IN1(–)
OPOUT1
IN2(+)
IN2(–)
OPOUT2
VCC
LD–
LD+
SPIN+
SPIN–
GND
MUTE
OPOUT3
IN3(+)
IN4(-)
IN4(+)
LD-RVS
BIAS
IN3(-)
OPOUT4
TRN
TRP
FON
FOP
SLN
SLP
133
134
135
136
137
138
139
140
141
142
143
144
145
146
147
148
149
150
151
152
153
154
155
156
157
158
159
160
161
162
163
164
165
166
167
168
169
170
171
172
173
174
175
176
LVL
RFOn
LPFO
PVREF
VCORE
VCOF
PVDD
TESM9
TEST2
RFCD
RFDVD
AVDD
RFCT
RFZI
TEZI
AWIN
AVSS
FEI
TEI
RFRP
AVSS
TESM1
0
EXTAD
VREF
FOO
TRO
AVDD
AWCTL
FMO
DMO
TEBC
NC(FE
B
DPDC
EQBC
ANMO
N
/DFCT
VRCK
VSS3
SCD
SCL
SCB
FGIN
1
ASLCN
132
PDON2
TR+
FO+
TR–
FO–
SCB
SCL
SCD
VRCK
LVL
RPZ
TE
FE
DFCT
RFRP
ASLCO
TEB
SLDRV
CHOP
SPDRV
TRD
FOD
FO+
FO–
TR–
TR+
LD_RVS
LD_FWD
IN_SW
MUTE
DVD_L
DVD_L
RPZ
FE
TE
LVL
RFRP
FOD
TRD
SLDRV
SPDRV
TEB
DPDB
EQB
EQF
DFCT
VRCK
SCD
SCL
SCB
ASLCO
3
2
1
49
P1FN(A)
IC3801
BA5984FP
CNS5
TO
JOINT PWB
P42 3-A
DVD SERVO PWB-C (1/3)
0V
0V 0V
1.7V
1.7V
1.7V
4.7V
2.3V
+B
+B
+B
+B
+B
+B
+B
+B
+B
+B
+B
+B
+B
+B
+B
+B
+B
+B
+B
+B
+B
+B
+B
+B
+B
+B
4
5
6
R3346
47
FB3301
10µH
R3906
15K
R3905
8.2K
C3310
47/6.3
C3303
1
C3304
1
C3301
1
C3302
1
C3305
1
R3834
8.2K
C3806
0.1
IC3802
TC7W53FU
MULTIPLEXER
R3706
2.2K
R3705
6.8K
C3704
0.01
C3703
82P(CH)
R3703
10K
R3702
10K
R3701
22K
IC3705
NJM2904M
OPE AMP.
C3702
82P
R3704
22K
C3701
0.01
C3306
0.01
R3303
2.2K
R3310
4.7K
Q3301
KTA1504 Y
R3343
1
R3311
3.3M
C3308
47/6.3
C3311
2.2/50
C3309
0.01
C3313 0.001
C3314 0.001
C3316 0.001
C3318 0.001
C3320
0.1
C3321
47/6.3
IC3301
TA1323F
RF SIGNAL
PROCESSOR
R3316
3.3M
R3317
10K
C3315
47/6.3
C3317
0.1
L3302
10µH
C3322
0.01
C3324
0.1
C3325
0.0047
C3326
0.0047
C3327
0.1
C3323
0.1
Q3701
KRC104 S
Q3702
KRC104 S
C3332
0.001
C3333
0.001
Q3307
KRC104 S
R
3
4
R3740 47K
C3720
0.0068
R3709
12K
R3711
12K
C3731
0.001
C3717
0.0047
R3728
330
R3725
1K
R3716
180
Q3303
2SA1955 A
C3307
100/6.3
R3738 33K
R3721
2.2K
C3718
0.015
L3701
1µH
R3724
100K
C3735
0.01
C3730
0.1
C3711
0.1
C3710
10/16
C3714
47/6.3
C3713
0.01
C3709
220P
(CH)
R3708
12K
C3715
0.1
R3710
12K
R3715
150K
R3717
18K
R3712
8.2K
C3729
0.0047
R3727
330
C3734
560P
C3728
220P
(CH)
C3716
220P(CH)
R3729
39K
R3730 27K
R3731 27K
R3732
10K
R3734
10K
R3735
10K
R3736
10K
C3726
0.1
C3725
0.1
C3723
0.1
C3722
0.015
C3721 0.015
C3708
0.1
R3718
150
R3719
150
R3720
150
C3732
0.1
C3733
0.1
C3707
47/6.3
L3702
1µH
C3712
0.1
R3714
47K
C3727
0.1
C3319
47/6.3
R3319
47
R3318
47
C3312
0.01
R3320
470
R3314
47
R3315
470
Q3302
2SA1955 A
D3301
DAP202K
R3829
10K
R3825
22K
R3821
22K
C3802
0.01
R3817
1K
C3804
100P(CH)
R3822
22K
R3824
33K
C3805
220P
(CH)
R3826
10K
R3830
47K
C3803
10/16
IC3801
BA5984FP
MOTOR
DRIVER
R3344
1
C3705
220P
(CH)
C3706
220P(CH)
C3328
0.1
CS3301
FW2

Related product manuals