EasyManua.ls Logo

Sharp CD-DVD500 - Display PWB Schematics

Sharp CD-DVD500
100 pages
Print Icon
To Next Page IconTo Next Page
To Next Page IconTo Next Page
To Previous Page IconTo Previous Page
To Previous Page IconTo Previous Page
Loading...
CD-DVD500
– 32 –
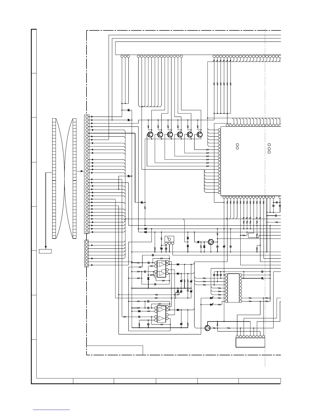
Figure 32 SCHEMATIC DIAGRAM (7/18)
A
B
C
D
E
F
G
H
1
23456
• NOTES ON SCHEMATIC DIAGRAM can be found on page 56.
63Hz
10kHz
1kHz
DVD_RX
RESET
VPP
RX
TX
CD_CLK
D_GND
5V_BACK-UP
VF1
VF2
–VF
UNSW_5V
AC_RLY
D_GND
P_IN
M_12V
SP_DET
TUNER_FNC
F_RLY
LCK2
SPAN
DIST_OUT
CE
CLK
DI
DO
8V
SPEANA
SWD_5V
–20dB_ATT
S_MUTE
6CH VOL_LATCH
KARAOKE_LATCH
–15V
HP_SW/MIC_IN
A_10V
TUN_SM
DD_STATUS
DD_LOCK
DD_CS
DD_LP
DD_ACK
DD_DIO
DD_CLK
1
2
3
4
5
6
7
8
10
11
12
13
14
15
16
17
18
19
9
20
21
22
23
24
25
26
27
28
29
30
31
32
33
34
35
36
8
7
6
4
5
1
2
3
G2
G1
NP
NP
F1
P14
P15
P16
P17
P18
P19
P20
P21
P13
P12
P11
P10
P9
P8
P7
P6
P5
P4
P3
P2
P1
G14
G13
G12
G11
G10
G9
G8
G7
G6
G5
G4
G3
F1
F1
80
79 78
77
76
75
74
73
72
71
70
69 68
67
66
65
6
4
P21
P20
P9
P10
P12
P17
P16
P19
P15
P14
P13
P8
P18
P7
P11
VDD2
P6
P7
P8
P9
P10
P11
DIST0/P18
P17
P16
P15
P14
P13
P12
VLOAD
DIST3/P21
DIST2/P20
DIST1/P19
100
99
98
97
96
95
94
93
92
91
90
89
88
87
86
85
84
83
82
81
P4
P5
P6
P3
P2
P1
G8
G7
G6
G5
G4
G3
G2
G1
G12
G13
G14
P1
P2
P3
P4
P5
G11
G10
G9
G8
G7
G6
G5
G4
G3
AVDD
PLAY SW B/FPA/FPB
O_C/DISC_NO_SW
SPEANA1
KEY0
SPEANA3
VSS1
SPEANA2
X1
DRF(4500ONLY)
HEADPHONE/MIC_IN
KEY1
DVD_STB/WRQ
X2
TUN_SM
KEY2
AVSS
KARAO
K
L,R 63Hz
L,R 10KHz
TUNER
_
MOT_S
P
G2
G1
L,R 1KHz
123456789
10
11 12 13 14 15 16 17
18
17
16
15
14
13
12
11
10
9
8
7
6
5
4
3
2
1
VSS
DATA
CLOCK
LCK
STOP
F PLAY
CD DISC1
CD DISC2
CD DISC3
R_PLAY
L+
L–
T1_SOL
T2_SOL
OE
__
VDD
T_MOT
123456789
DVD_RX
HP/MIC_IN
KEY0
KEY1
KEY2
SPEANA1
SPEANA2
SPEANA3
TUN_SM
RD68
220K
+VCC
8
7
6
5
4
3
2
1
+
+
MOT_CNT
8
7
6
5
4
3
2
1
+
+
P_IN
SPEANA3
LCK1
SPEANA2
DI
CLK
SPEANA1
T_MOT
T1_SOL
T2_SOL
3 2 1
5V USWD
5V BACK UP
100
99
46
45
52
1
DISPLAY PWB-B1
2
3
3 2
1
1 2 3 6 7 8 9 1011121314
15 16 17 18 19
29 30 31 32 33 34 35 36 37 38 39 40 41 42 43 44 45 46 47 48 4
9
+B
+B
+B
+B
+B
+B
+B
+B
+B
+B
+B
+B
+B
+B
+B
–B
–B
IC705
TA7291S
1 36
36 1
CNP601
TO
MAIN PWB
P31 8-H
FFC701
C713
47/25
C758
10/16
CNP701
RD69
150K
C756
0.022
RD65
15K
RD38 1K
RD37 1K
FL701
FL DISPLAY
LED701
D704
DS1SS133
D703
DS1SS133
R765
47K
CNP704
RD43
1K
RD88 10
K
RD80 100K
RD81 100K
RD82 100K
RD83 100K
RD84 100K
RD85 100K
C715
3.3/50
Q707
KRC102 M
R764
100K
R763
100
RX701
REMOTE
SENSOR
C714
0.022
R762
22K
C702
47/50
R796
2.7K
R797
3.9K
R795
2.7K
Q711
KRC102 M
IC705
TA7291S
LOADING MOTOR
DRIVER
RD75
10K
RD76
10K
C720 47/16
C719 0.022
C721
100P
(CH)
C722
100P(CH)
C723
100P
(CH)
RD44 100
RD45 100
IC702
BU2092F
INPUT/
OUTPUT
EXPANDER
RD41 1K
RD42
1K
LED702
RD34 1K
RD36 1K
RD35 1K
R792
10K
R793
10K
R783 1K
R761
33
C703
1/50
R784
100K
Q706
KTC3199 GR
R794
100K
IC701
IX0442A
W
SYSTEM MICROC
O
C70
8
0.02
2
R766
10K
D702 DS1SS133
D701
DS1SS133
R769
10K
R755 1K
R754 1K
R753 1K
R752 1K
R751 1K
R768 10K
R767
10K
C707 0.0
2
C706
0.022
Q705
KTC3199 GR
Q704
KTC3199 GR
Q703
KTC3199 GR
Q702
KTC3199 GR
Q701
KTC3199 GR
R760
100K
R759
100K
R758
100K
R757
100K
R756
100K
R704 1K
R712 1K
R710 1K
R711 1K
XL701
C704
15P(CH)
R709 1K
R708 1K
R707 1K
R706 1K
R705 1K
R703 1K
R702 1K
R701 1K
RD72
100K
C737
2.2/50
RD71 180K
C731
0.022
C732
0.022
C733
47/25
D712
DS1SS133
C718
220/10
RD56
33K
D709
DS1SS133
D710
DS1SS133
ZD701
DZ6.2BSC
C728
2.2/50
RD57
220K
RD58
2.2M
D708
DS1SS133
C724 270P
C725
270P
C726
0.0068
RD55
470K
RD54
22K
RD53
33K
RD62 100K
RD64
68K
C735
0.0027
C736 0.022
RD52 330
RD61 100K
C730 2.2/50
RD59 820K
RD51 100
IC704
KIA4558P
OPE AMP.
RD60 1M
IC703
KIA4558P
C727 0.0068
RD70 390K
C734 0.0027
RD63
12K
D711
DS1SS133
C717
0.01
D705
DS1SS133
C701
47/50

Related product manuals