EasyManua.ls Logo

Sharp CD-DVD500 - Page 43

Sharp CD-DVD500
100 pages
Print Icon
To Next Page IconTo Next Page
To Next Page IconTo Next Page
To Previous Page IconTo Previous Page
To Previous Page IconTo Previous Page
Loading...
– 43 –
CD-DVD500
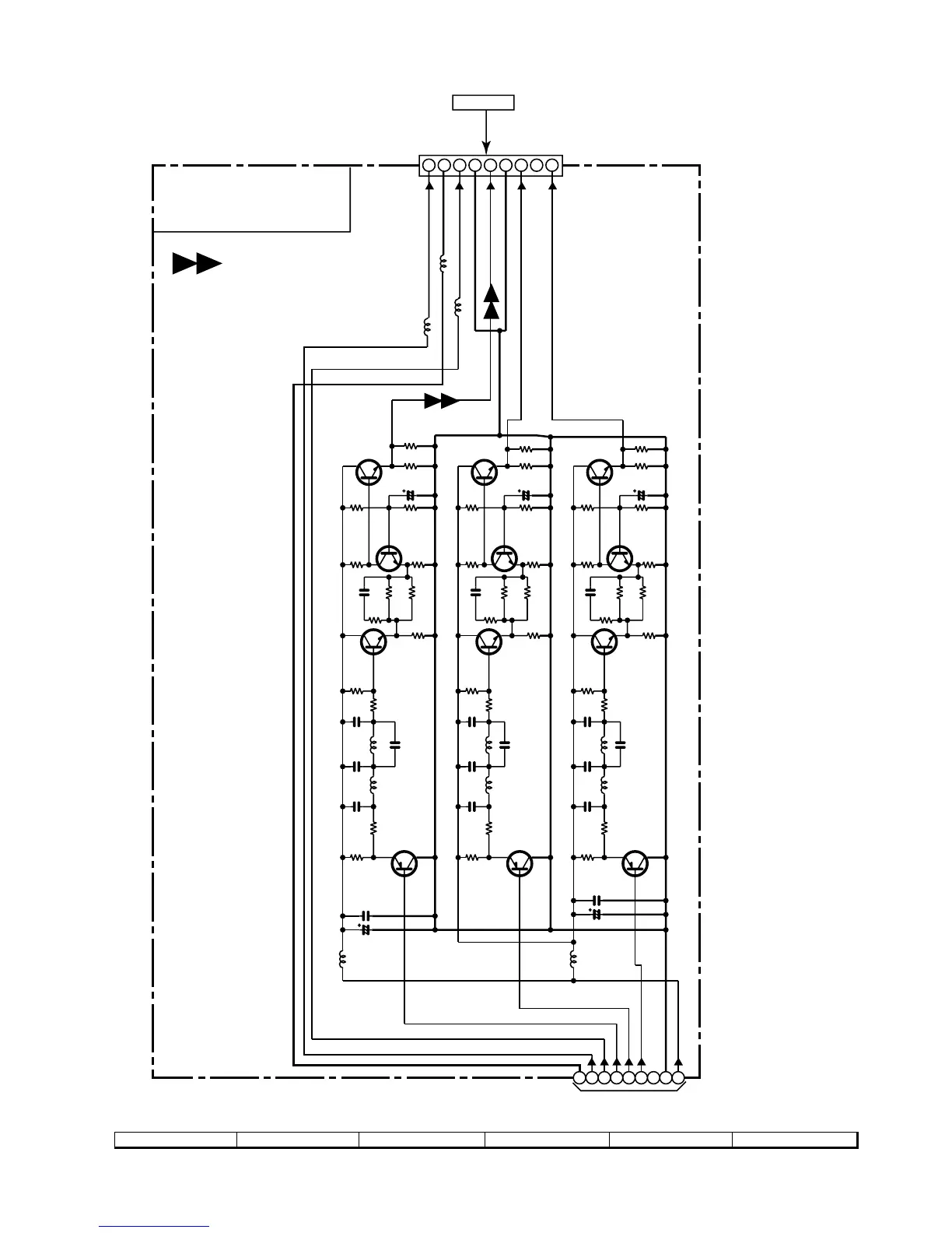
Figure 43 SCHEMATIC DIAGRAM (18/18)
7
8 9 10 11 12
DVD SERVO
PWB-C (3/3)
A_GND/V_OUT
A_GND
A_GND
V_OUT/G_OUT
Y_OUT/R_OUT
C_OUT/B_OUT
SPDIF_O
D_5V
D_GND
987654321
CNS7001
FROM
DOLBY PWB
P37 8-G
4755 48 49505152 53 54
TO DVD SERVO
PWB (2/2)
P29 12-D
VIDEO OUT SIGNAL
+B
+B
+B
+B
+B
+B
+B
+B
+B
+B
+B
CP5001
Q5010
2SC2412 KR
R5040
390
Q5012
2SC2412 KR
C5019
47P(CH)
L5003
27µH
R5019
820
R5016
1K
R5008
390
C5007
68P(CH)
C5010
5P(CH)
C5004
27P(CH)
C5013
39P
(CH)
Q5005
2SC2412 KR
L5006
27µH
R5011
3.9K
R5005
680
Q5001
KTA1504 Y
L5002
27µH
R5004
680
R5010
3.9K
L5005
27µH
R5013
390
Q5004
2SC2412 KR
C5012
39P(CH)
C5003
27P(CH)
C5009
5P(CH)
C5006
68P(CH)
R5007
390
R5041
390
C5022
47/6.3
R5037
270
C5021
47/6.3
R5032
3.3K
R5025
1.2K
R5026
390
R5020
470
R5031
6.8K
R5021
820
R5023
820
R5034
3.3K
R5036
3.3K
R5038
270
R5009
390
Q5006
2SC2412 KR
Q5008
2SC2412 KR
Q5009
2SC2412 KR
Q5011
2SC2412 KR
R5014
390
R5015
390
R5012
3.9K
Q5007
2SC2412 KR
R5033
6.8K
R5035
5.6K
R5017
1K
R5018
1K
R5022
470
R5028
390
R5030
470
R5027
1.2K
R5029
1.2K
C5020
47P(CH)
R5042
390
R5039
270
C5023
47/6.3
R5006
680
L5004
27µH
Q5002
KTA1504 Y
Q5003
KTA1504 Y
R5003
1.5K
C5008
68P(CH)
C5005
27P(CH)
C5014
39P(CH)
L5007
27µH
L5011
100µH
L5001
100µH
C5029
0.01
C5028
100/10
R5001
1.5K
R5002
1.5K
C5001
100/10
C5002
0.01
C5011
5P(CH)
R5024
470
C5018
47P
(CH)
L5009
100mA
L5008
100mA
L5010

Related product manuals