EasyManua.ls Logo

Sharp LC-32GD8EE - Page 119

Sharp LC-32GD8EE
169 pages
Print Icon
To Next Page IconTo Next Page
To Next Page IconTo Next Page
To Previous Page IconTo Previous Page
To Previous Page IconTo Previous Page
Loading...
119
LC-32/37GD8E/RU
LC-32/37BT8E/RU
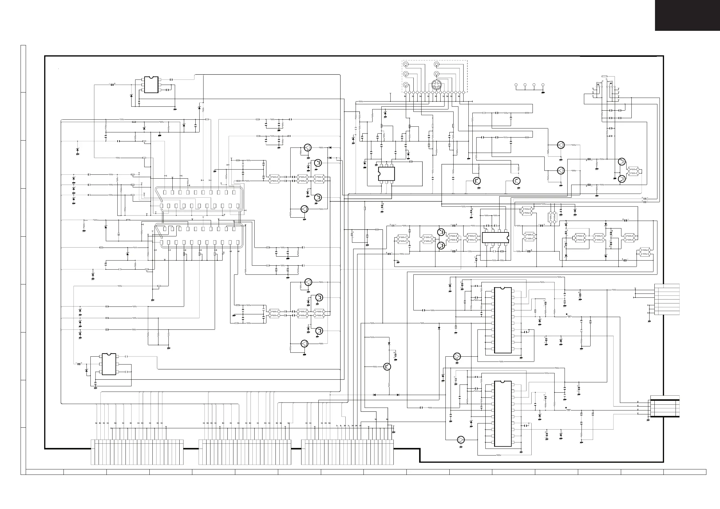
LC-32/37GD8, LC-32/37BT8 AV Unit Diagram
OUTMONL
OUTMONR
IN3L
IN3R
CVBS_OUT
IN3YV
TDA_EN
RED/C2
GREEN2
BLUE2
IN1FSW
RED/C1
GREEN1
BLUE1
IN1L
IN1R
OUTV
IN2R
IN2L
OUT2L
OUT2R
OUTTNL
OUTTNR
S_MUTE
AVLINK2
IN2FSW
IN2_BLANK
SC_AVLINK
HPMUTE
OUTMONL
OUTMONR
IN3L
IN3R
IN3SW
OUT2L
OUT2R
OUTV
IN2L
IN2R
VIN2
BLUE2
GREEN2
RED/C2
SLOWSW2
AVLINK2
IN2FSW
OUTTNL
OUTTNR
OUTTNV
IN1L
IN1R
VIN1
BLUE1
GREEN1
RED/C1
SLOWSW1
AVLINK1
IN1FSW
B+29V
SC1FSW
IN3C
TDA_VP
PRE_R
PRE_L
PRE_L
HPMUTE
S_MUTE
HPOI_L
OUTTNV
HP_LOUT
HPO_L
HPO_R
HP_ROUTHP_R
HP_R
HP_L
HP_L
SPKR
SPKL
SPKL+
SPKR+
IN3YV
+8V_AIN
A+5V
A+8V
A+8V
S2_MUTE
S_MUTE
S2_MUTE
IN3SW
S_MUTE
IN3C
TDA_VPA
SPKR-
HPOI_R
VIN2
VIN1
SCART+5V
SLOWSW2
SLOWSW1
SPKL-
C1108
100P
(CH)
C1101
0.1u
25V
C1102
0.1u
25V
C1103
0.1u
25V
FL1104
N0017TA
FL1105
N0017TA
Q1203
DTC314TK
MUTE
Q1204
DTC314TK
MUTE
R1128
100
R1121
75
1/4W
R1111
68
1/4W
R1104
0
R1105
0
R1106
0
R1217
330
R1221
330
R1224
560K
R1226
1K
R1227
1K
R1225
560K
DUNTKD604WE10
FB1102
0062TA
R1130
0
R1114
75
1/4W
FL1103
N0017TA
FB1104
0077TA
FL1102
N0017TA
FL1101
N0017TA
R1129
75
1/4W
R1123
75
1/4W
R1117
75
1/4W
*C1110
10u
16V
KZA073WJ
C1131
0.01u
Z
C1147
0.1u
25V
Z
C1148
10u
16V
KZA073WJ
MM1506XN
2-IN,1-OUT,SWITCH
1
SW
2
OUT
3
VCC
4
IN2
5
GND
6
IN1
FL1109
N0017TA
R1116
75
1/4W
R1120
0
R1153
100K
FL1108
N0017TA
C1135
1000P
R1125
75
1/4W
R1113
75
1/4W
FL1107
N0017TA
R1127
75
1/4W
FL1110
N0017TA
R1112
68
1/4W
C1107
0.1u
25V
R1115
0
FB1103
0077TA
C1142
1u
16V
FB1101
0062TA
C1106
0.1u
25V
C1134
1000P
FB1111
0051TA
FB1112
0051TA
R1118
75
1/4W
*C1109
10u
16V
KZA073WJ
FL1106
N0017TA
C1138
1u
16V
R1119
100
R1110
0
C1105
0.1u
25V
C1104
100P
(CH)
R1154
100K
R1126
0
R1201
100
C1201
1000P
R1204
75
C1208
10u
16V
KZA073WJ
R1209
75
1/4W
C1207
10P
(CH)
C1206
100P
(CH)
FL1212
N0017TA
C1218
1u
16V
C1212
1u
16V
R1211
1K
R1214
1K
C1211
1000P
C1217
1000P
R1212
100K
R1210
1K
FB1201
0051TA
R1215
100K
R1213
1K
FB1202
0051TA
C1216
100P
(CH)
C1210
100P
(CH)
C1116
220P
C1114
220P
C1127
100P
(CH)
C1128
100P
(CH)
R1218
2.7K
R1222
2.7K
Q1202
2SA1530AR
Q1201
2SA1530AR
R1138
0
C1202
0.01u
Z
R1102
15K F
R1103
39K
F
R1108
39K F
R1101
15K F
FB1218
0254TA
FB1213
0210TA
R1137
0
R1131
220
R1203
6.8K
R1202
3.9K
FL1211
N0017TA
C1204
10P
(CH)
C1203
100P
(CH)
C1205
10u
16V
KZA073WJ
R1206
75
1/4W
C1252
1u
16V
*C1251
100u
16V
ASX
J1301
JA007WJ
8
L
2
5 7
R
3
4 1
C1253
0.1u
25V
Z
MM1507XN
2-IN,1-OUT,SWITCH
1
SW
2
OUT
3
VCC
4
IN2
5
GND
6
IN1
P1101
MA250WJ
TO MAIN 2
1
IN1FSW
2
AVLINK1
3
SLOWSW1
4
RED/C1
5
GND
6
GREEN1
7
GND
8
BLUE1
9
GND
10
VIN1
11
GND
12
IN1R
13
IN1L
14
GND
15
OUTTNV
16
GND
17
OUTTNR
18
OUTTNL
19
GND
20
NC
21
NC
22
NC
23
NC
R309
47K
R343
0
1/4W
R339
22
1/4W
C310
2200P
C305
0.1u
R304
2.2K
C313
2200P
C327
0.015u
R317
470K
R303
2.2K
R324
47K
C334
220P
R336
10
1/4W
R308
47K
R316
3.9K
R330
2.2K
C303
0.22u
Z
R329
6.8K
R340
22
1/4W
R331
2.2K
R314
3.9K
R323
47K
C326
0.015u
C341
0.22u
25V
R315
470K
C322
0.22u
R335
10
1/4W
R338
10
1/4W
C309
2200P
R337
10
1/4W
C314
0.015u
R313
1K
C312
2200P
*C343
0.33u
FYF
(ML)
Q304
DTC314TK
MUTE
C308
0.1u
R312
1K
C335
220P
C333
220P
C332
220P
C315
0.015u
Q303
DTC314TK
MUTE
R334
6.8K
*C342
0.33u
FYF
(ML)
C340
0.22u
25V
C323
0.22u Z
R1177
1K
R1179
1K
P1102
MA250WJ
TO MAIN 2
1
IN2FSW
2
AVLINK2
3
SLOWSW2
4
RED/C2
5
GND
6
GREEN2
7
GND
8
BLUE2
9
GND
10
VIN2
11
GND
12
IN2R
13
IN2L
14
GND
15
OUTV
16
GND
17
OUT2R
18
OUT2L
19
S2_MUTE
20
IN3SW
21
IN3Y
22
GND
23
IN3C
2.2u
50V
C328
ASX
2.2u
50V
C329
ASX
P1201
MA250WJ
TO MAIN 2
1
IN3R
2
IN3L
3
GND
4
PO_MUTE
5
OUTMONR
6
OUTMONL
7
S_MUTE
8
PO_MUTE
9
HPOUTR
10
HPOUTL
11
HPMUTE
12
HPPLUG
13
SPKR
14
SPKL
15
MUTE
16
SPPOW
17
GND
18
GND
19
A+5V
20
GND
21
GND
22
8V
23
8V
FB1204
0062TA
R1219
270
C1225
100P
(CH)
C1224
100P
(CH)
R1216
270
FB1203
0062TA
FB1105
0051TA
C1118
100P
(CH)
R1134
1K
R1173
100K
FB1107
0051TA
C1120
1000P
C1119
1000P
C1124
1u
16V
R1147
1K
R1150
100K
C1117
100P
(CH)
C1121
1u
16V
SC301
Z0738CE
TO POWER
1
+30V
2
+30V
3
+30V
4
NC
5
GND
6
GND
7
GND
C1126
470P
R1109
220
1/10W
Q1103
2SA1530AR
Q1102
DTC314TK
R1144
1K
FB1108
0062TA
Q1104
2SA1530AR
Q1101
DTC314TK
C1125
470P
C1122
330P
R1141
560K
R1145
1K
R1107
220
1/10W
FB1106
0062TA
R1142
560K
C1123
330P
R1140
330
2
1
3
4
R1143
2.7K
2
1
3
4
R1139
100
2
1
3
4
Q1108
2SA1530AR
C1139
330P
FB1110
0062TA
C1143
470P
R1157
560K
R1152
100
2
1
3
4
R1156
560K
R1146
220
1/10W
FB1109
0062TA
C1144
470P
R1160
1K
R1155
330
2
1
3
4
Q1107
2SA1530AR
R1148
220
1/10W
Q1105
DTC314TK
C1140
330P
R1159
1K
R1158
2.7K
2
1
3
4
Q1106
DTC314TK
TDA8931T
1
VSSD
2
VSSA
3
INN
4
INP
5
VDDA
6
PWRUP
7
ENA
8
DIAG
9
CGND
10
VSSD
11
VSSD
12
OVP
13
HVP
14
STABI
15
VSSP
16
OUT
17
BOOT
18
VDDP
19
HVPI
20
VSSD
TDA8931T
1
VSSD
2
VSSA
3
INN
4
INP
5
VDDA
6
PWRUP
7
ENA
8
DIAG
9
CGND
10
VSSD
11
VSSD
12
OVP
13
HVP
14
STABI
15
VSSP
16
OUT
17
BOOT
18
VDDP
19
HVPI
20
VSSD
C1145
10u
16V
KZA073WJ
C1157
10u
16V
C1158
10u
16V
C1146
10u
16V
KZA073WJ
C1132
10u
16V
KZA073WJ
C1136
10u
16V
C1137
10u
16V
C1133
10u
16V
KZA073WJ
C1220
10u
16V
KZA073WJ
C1222
10u
16V
KZA073WJ
C1221
10u
16V
KZA073WJ
C1223
10u
16V
KZA073WJ
TL1106
TL1104
TL1102
TL1101
TL1107
TL1105
TL1103
TL1108
TL1109
TL1110
TL1111
TL1112
TL1113
TL1114
TL1115
TL1116
TL1117
TL1118
TL1119
TL1120
TL1121 TL1122
TL1123
TL1124
TL1125
TL1126
TL1127
TL1128
TL1129
TL1130
TL1131
TL1132
TL1133
TL1134
TL1135
TL1136
TL1137
TL1138
TL1139
TL1140
TL1141
TL1142
TL1143
TL1144
TL1145
TL1146
TL1147
TL1148
TL1149
TL1150
TL1151
TL1152
TL1153
TL1154
TL1155
TL1156
TL1157
TL1158
TL1159
TL1160
TL1161
TL1162
TL1163
TL1164
TL1165
TL1166
TL1167
TL1168
TL1169
TL1170
TL1171
TL1172
TL1173
TL1174
TL1175
TL1176
TL1177
TL1178
TL1179
TL1180
TL1181
TL1182
TL1183
TL1184
TL1185
TL1186
TL1187
TL1188
TL1189
TL1190
TL1191
TL1192
TL1193
TL1194
TL1195
TL1196
TL1197
TL1198
TL1199
TL302
TL301
TL307
TL308
TL303
TL304
TL305
TL306
C1130
470u
16V
ASY
R310
1K
R307
100K
2
1
3
4
R327
10K
2
1
3
4
C337
1u
50V
ASX
NJM4558M
1234
5 6 7 8
R319
1.2K
R311
1K
R306
4.7K
2
1
3
4
*R325
2.7K
R322
10K
R301
1K
2
1
3
4
R328
3.9K
2
1
3
4
R345
10K
2
1
3
4
R320
1.2K
R318
82
1/2W
*C301
0.027u
10u
50V
C324
ASX
2.2u
50V
C307
ASX
*R326
2.7K
R321
10K
C316
33P
(CH)
C319
47P
(CH)
C345
1u
50V
ASX
C318
47P
(CH)
R344
10K
2
1
3
4
R342
3.3K
2
1
3
4
C344
1u
50V
ASX
Q302
2SC3928AR
*C302
0.027u
C336
1u
50V
ASX
C317
33P
(CH)
10u
50V
C325
ASX
R341
10K
2
1
3
4
Q301
2SC3928AR
R302
4.7K
2
1
3
4
2.2u
50V
C306
ASX
C304
0.22u
Z
R305
2.2K
22u
35V
C349
ASX
Q306
2SC3928AR
R347
56
Q305
2SC3928AR
R348
2.2K
2
1
3
4
R346
56
22u
35V
C348
ASX
J1101
ZA116WJ
SCART 1
SCART 2
1
AO-R
2
AIN-R
3
AO-L
4
AGND
5
(G7)
6
AIN-L
7
BLUE
8
SLOWSW
9
(G11)
10
CTRL
11
GREEN
12
RSV
13
(G15)
14
(G16)
15
RED/C
16
BLANK
17
(G19)
18
(G20)
19
VOUT/L
20
VIN
21
22
AO-R
23
AIN-R
24
AO-L
25
AGND
26
(G7)
27
AIN-L
28
BLUE
29
SLOWSW
30
(G11)
31
CTRL
32
GREEN
33
RSV
34
(G15)
35
(G16)
36
RED/C
37
BLANK
38
(G19)
39
(G20)
40
VOUT/L
41
VIN
42
2.2u
50V
C320
ASX
2.2u
50V
C321
ASX
*C331
470u
35V
SYA
*C330
470u
35V
SYA
D303
EXA092WJ
12V
D302
EXA092WJ
12V
D304
EXA092WJ
12V
D301
EXA092WJ
12V
J1201
ZA033WJ
1
3
5
2 4
7 8 9
10 11 12 13 14 15 16
6
MM1506XN
123
4 5 6
C1159
0.01u
Z
C1160
0.1u
25V
Z
C1161
10u
16V
KZA073WJ
*D1106
EX1034CE
5.1V
C1162
470u
16V
ASY
C350
0.01u
C351
0.01u
R349
100
C352
0.01u
R350
100
C353
0.01u
C354
1000P
C355
1000P
LUG301 LUG302 LUG303 LUG304
47u
50V
C356
ASY
47u
50V
C357
ASY
R351
10K
R352
10K
10u
50V
C358
ASX
10u
50V
C359
ASX
R353
1K
R354
1K
C1219
47u
16V
ASY
R333
10K
2
1
3
4
R332
1K
C361
10u
16V
KZA073WJ
C360
47u
16V
ASY
P301
NA173WJ
SP
SPKL-
1
SPKL+
2
SPKR-
3
SPKR+
4
D305
EXA089WJ
4.3V
22u
16V
C311
ASX
C346
1u
50V
ASX
C347
1u
50V
ASX
C338
470u
50V
EZA513WJ
C339
470u
50V
EZA513WJ
R355
2.7
1/4W
C362
0.22u
25V
C363
0.22u
25V
Q307
2SA1530AR
R356
10K
D306
1SS390
D307
1SS390
D308
1SS390
R360
4.7K
R358
0
C364
470u
16V
ASY
D309
1SS390
D310
1SS390
R1228
0
*D1201
EX1239CE
4.3V
C365
2200P
C366
2200P
*L301
47uH
PA386WJ
*L302
47uH
PA386WJ
*D314
EXA101WJ
30V
*D315
EXA101WJ
30V
*D316
EXA101WJ
30V
*D317
EXA101WJ
30V
D311
EXA103WJ
36V
D312
EXA103WJ
36V
D318
1SS390
*D1107
EX1034CE
5.1V
*D1113
EX1034CE
5.1V
*D1114
EX1034CE
5.1V
*D1115
EX1034CE
5.1V
*D1116
EX1034CE
5.1V
*D1117
EX1034CE
5.1V
*D1109
EX1049CE
8.2V
*D1110
EX1049CE
8.2V
*D1111
EX1049CE
8.2V
*D1112
EX1049CE
8.2V
*D313
EX1026CE
3.9V
*D1102
EX1026CE
3.9V
*D1103
EX1026CE
3.9V
*D1118
EX1026CE
3.9V
*D1119
EX1026CE
3.9V
*D1120
EX1026CE
3.9V
*D1121
EX1026CE
3.9V
*D1123
EX1026CE
3.9V
*D1122
EX1026CE
3.9V
*D1105
EX1064CE
13V
*D1101
EX1068CE
15V
*D1104
EX1068CE
15V
Ver.N3 (2006.05.16)
IC1101
IC1201
IC302
IC301
IC303
IC1102
CVBS IN
Y/C IN
L IN
R OUT
HeadPhone OUT
Reference Design
Reference Design
QSOCZA116WJZZ
R IN
L OUT
0
0.36
0.1
0
0.36
0.1
0
2.4
5.3 2.0
0
2.1
4.4
0
3.7
4.4
0
3.7
3.1 1.5 5.3
1.4
01.5
0
10.0
0
0
10.1
0
4.4
0
3.8
0
0.36
0.1
4.4
0
3.8
0
0.36
0.1
4.4
0
3.8
4.4
0
3.8
0
0.84
0
0
0.86
0
0
0
15.5
12.4
30.3
4.5
10.3
0
0
0
0
0
15.5
12.4
0
21.6
30.6
30.5
15.5
0
0
0
15.5
12.4
30.3
4.5
10.3
0
0
0
0
0
15.5
12.4
0
21.6
30.6
30.5
15.5
0
4.24.24.0
0
4.0 4.2 4.2 8.0
0
0
0
0
0
0
0
0
0
0
0
0
0
2.4
5.3 2.0
0
2.1
7.7
0.15
8.2
LC-32GA8E/LC-37GA8E
LC-32GD8E/LC-37GD8E
AV
INPUT2
INPUT1
INPUT3
CONFIDENTIAL
Ver.N3 (2006.05.16)
1
2 3 4 5
6
7 8 9 10
11
12
13
14
15 16
I
H
G
F
E
D
C
B
A

Related product manuals