EasyManua.ls Logo

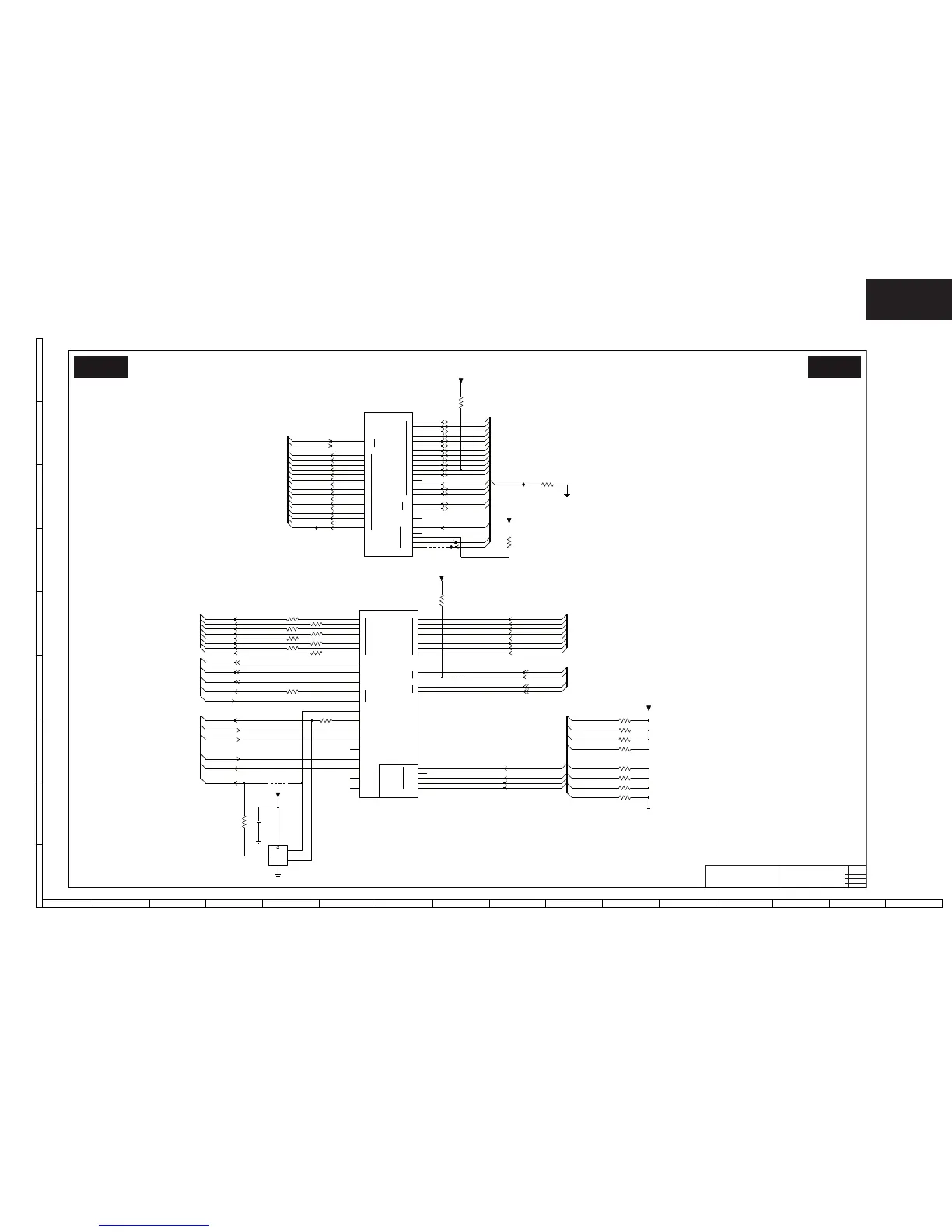
Sharp LC-46LE630E - 10-2 Main Unit B02 A PNX85500: NANDflash - conditional access Schematic Diagram

Sharp LC-46LE630E
176 pages
Print Icon
To Next Page IconTo Next Page
To Next Page IconTo Next Page
To Previous Page IconTo Previous Page
To Previous Page IconTo Previous Page
Loading...
109
LC-32LE63x
LC-40LE63x
LC-46LE63x
19100 012 110209.eps
PNX85500: NANDflash - conditional access
B02A B02A
2010-12-10
4
3139 123 6495
SPB SSB TV550
2K11 4DDR EU
NAND
XIO_A
XIO_D
XIO
NAND
07
08
09
10
11
12
13
14
15
OE_
WE_
CLK_BURST
WP_
RDY1
RDY2
CE2_
CE1_
00
01
02
03
04
05
06
CLE
00
01
02
03
04
05
06
07
08
09
10
11
12
13
14
15
ALE
MDI
MCLK
MDO
TNR_SER1
VS
CD
CA
DATA
ERR
MICLK
MIVAL
SOP
0
1
2
3
4
5
6
7
1
2
1
2
VPPEN
0
1
2
3
4
5
6
7
ADD_EN
DATA_DIR
DATA_EN
I
O
MISTRT
MIVAL
MOSTRT
MOVAL
OOB_EN
RDY
RST
VCCEN
TS-FE-ERR
5
4
7S02
74LVC1G08GW
1
2
3
33R
3S01-2
27
IS26
10K
3S15
+3V3
3S1R
560R
560R
3S1S
+3V3
3S1X
10K
3S1W
10K
+3V3
3S24
470R
470R
3S23
33R
633-10S3
3S02-3
36
18
33R 5
33R
3S01-1
3S01-4
33R
4
3S02-2
33R
27
3S02-1
33R
18
+3V3
10R
3S03
+3V3
RES
10K
3S1V
RES
3S1T
560R
560R
3S1U
RES
IS00
RES
3S29
470R
RES
470R
3S28
IS25
3S04
33R
9S01
RES
2S09
100n
33R
45
9S08
3S02-4
J24
K23
K24
T21
T23
T22
R23
R22
M26
L21
N24
N25
L22
L23
J21
L24
L26
J23
P24
P25
P26
N21
N22
N26
M21
M22
M23
M24
M25
J22
K21
K22
K25
K26
N23
L25
P21
P22
P23
B22
C22
7S00-11
PNX85500
VIDEO_STREAM
A22
E22
F24
F25
F26
E23
E24
E25
E26
D24
G24
G25
G26
F22
F23
D25
D26
C24
D23
C23
B23
J25
J26
H21
H22
H23
H24
H25
H26
G21
G22
G23
B21
D22
E21
D21
C21
F21
A20
A21
7S00-5
PNX85500
FLASH
9S00
3S31
33R
XIO-D10
TS-FE-DATA
TS-FE-CLOCK
TS-FE-VALID
TS-FE-SOP
TS-FE-DATA
TS-FE-CLOCK
TS-FE-VALID
TS-FE-SOP
INPACK INPACK
XIO-A12
XIO-A14
XIO-A13
XIO-A15
XIO-D00
XIO-D01
XIO-D02
XIO-D03
XIO-D04
XIO-D05
XIO-D06
XIO-D07
XIO-D08
XIO-D09
XIO-D11
XIO-D14
XIO-D15
XIO-OEn
XIO-WEn
CA-DATADIR
CA-DATAENn
CA-ADDENn
CA-RDY
CA-RST
NAND-ALE
NAND-CLE
NAND-CE1n
NAND-RDY1n
NAND-WPn
CA-MDO2
CA-MDO3
CA-MDO4
CA-MDO5
CA-MDO6
CA-MDO7
CA-MOVAL
CA-MOSTRT
CA-CD1n
CA-CD2n
CA-VS1n
CA-MOCLK
CA-MOCLK
XIO-A00
XIO-A01
XIO-A02
XIO-A03
XIO-A04
XIO-A05
XIO-A06
XIO-A07
XIO-A08
XIO-A09
XIO-A10
XIO-A11
TS-FE-DATA
TS-FE-CLOCK
TS-FE-SOP
TS-FE-VALID
CA-MDI0
CA-MDI1
CA-MDI2
CA-MDI3
CA-MDI4
CA-MDI5
CA-MDI6
CA-MDI7
CA-MIVAL
CA-MISTRT
CA-MICLK
CA-MDO0
CA-MDO1
1
2345678910
11 12
13
14
15 16
I
H
G
F
E
D
C
B
A
1
2345678910
11 12
13
14
15 16
I
H
G
F
E
D
C
B
A
10-2 Main Unit B02A PNX85500: NAND ash - conditional access Schematic Diagram

Table of Contents

Related product manuals