EasyManua.ls Logo

Sharp LC-46LE630E - 9.3. 46” Overall Wiring Diagram

Sharp LC-46LE630E
176 pages
Print Icon
To Next Page IconTo Next Page
To Next Page IconTo Next Page
To Previous Page IconTo Previous Page
To Previous Page IconTo Previous Page
Loading...
91
LC-32LE63x
LC-40LE63x
LC-46LE63x
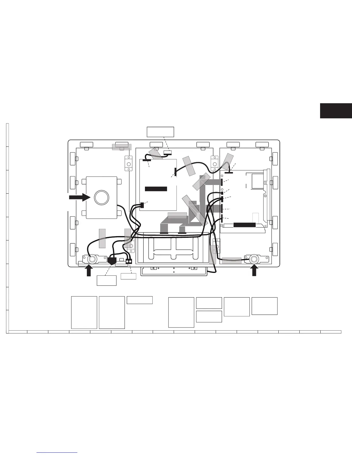
9.3. 46” Overall Wiring Diagram
1
2345678910
11 12
13
14
15 16
I
H
G
F
E
D
C
B
A
19100_807_110211.e
p
s
1M19
(B09A)
1. LIGHT-SENSOR
2. GND
3. RC
4. LED-2
5. +3V3-STANDBY
6. LED-1
7. KEYBOARD
8. +5V
1735
(B03A)
1. LEFT-SPEAKER
2. GND-AUDIO
3. GND-AUDIO
4. RIGHT-SPEAKER
1D38
(B03A)
1. LEFT-SPEAKER
2. GND-AUDIO
3. RIGHT-SPEAKER
1M95
(B03C)
1. +3V3-STANDBY
2. STANDBY
3. GND
4. GND
5. +12VIN
6. +12VIN
7. +24V-AUDIO-POWER
8. GND
9. LAMP-ON
10. BACKLIGHT-PWM_BL-VS
11. BACKLIGHT-BOOST
12. POWER-OK
13. +24V
GND
1G51
(B06B)
1. +VDISP
2. +VDISP
3. +VDISP
4. +VDISP
|
|
51. CTRL-DISP
1308
(PSU)
1. N
2. L
1M95
(PSU)
1. +3V3STDBY
2. STANDBY
3. GND
4. GND
5. +12V
6. +12V
7. +VSND
8. GND_SND
9. BL-ON-OFF
10. BL-DIM1
11. BL-I-CTRL
12. POK
13. +24V
14. GND1
1316
(PSU)
1. ANODE 1
2. NC
3. CATHODE 1
4. GND
5. ANODE 2
6. NC
7. CATHODE 2
8. NC
9. ANODE 3
10. NC
11. CATHODE 3
12. NC
13. ANODE 4
14. NC
15. CATHODE 4
[1M19]
SPEAKER -R
(TWEETER)
MAIN
SWITCH
INLET
SPEAKER -L
(TWEETER)
[1M95]
TO DISPLAY
SUPPLY
[1M99]
[1316]
[1308]
[1G50]
[1D38]
[1735]
[1G51]
SPEAKER
(SUBWOOFER)
MAIN UNIT
POWER UNIT

Table of Contents

Related product manuals