EasyManua.ls Logo

Sharp MX-4500N - Page 328

Sharp MX-4500N
448 pages
Print Icon
To Next Page IconTo Next Page
To Next Page IconTo Next Page
To Previous Page IconTo Previous Page
To Previous Page IconTo Previous Page
Loading...
MX3500N ELECTRICAL SECTION 11 – 29
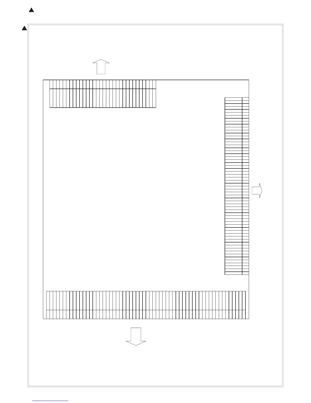
U. MFP board section 2/2 (P21)
7
CN20
CN19
B32B-PHDSS-B
CN22 FX8C-60S-SV5
VIDEO_DAT_Y3
42
43
VIDEO_DAT_Y4
VIDEO_DAT_Y5
50
51
PRTC_RDY(I,OC)
PRT_RTS(O)
38
39
40
41
VIDEO_DAT_Y0
2nd FAX UN
(OPTION)
EXTEND PCI
EFI
(OPTION)
57
58
59
60
53
54
55
56
51
52
16
17
52
53
54
55
PRT_TXD(O)
PRT_CTS(I)
47
48
49
50
43
44
45
46
39
40
41
42
35
36
37
38
31
32
33
34
27
28
29
30
23
24
25
26
19
20
21
22
15
16
17
18
11
12
13
14
7
8
9
10
3
4
5
6
PCI1_SERR
PCI1_PERR
D-GND
D-GND
PCI1MAC_IRDY
PCI1MAC_TRDY
PCI1MAC_DVSEL
PCI_STOP
D-GND
PCI1MAC_IDSEL
PCI1MAC_PAR
PCI1MAC_FRAME
PCI1MAC_AD1
PCI1MAC_AD2
PCI1MAC_CBE0
PCI1MAC_AD0
5
PCI1MAC_AD6
PCI1MAC_AD3
PCI1MAC_AD4
VIDEO_DAT_K1
VIDEO_DAT_K2
VIDEO_DAT_K3
VIDEO_DAT_K4
18
19
PCI1MAC_AD9
PCI1MAC_AD7
PCI1MAC_CBE1
PCI1MAC_AD5
SA_VIDEO_CLKI
PCI1MAC_AD10
PCI1MAC_AD11
PCI1MAC_AD8
D-GND
VIDEO_DAT_K0
PRT_RXD(I)
3.3V
VIDEO_DAT_Y1
VIDEO_DAT_Y2
PCI1MAC_AD14
PCI1MAC_AD15
PCI1MAC_AD12
PCI1MAC_AD13
PCI1MAC_AD17
PCI1MAC_AD18
PCI1MAC_CBE2
PCI1MAC_AD16
PCI1MAC_AD21
PCI1MAC_AD22
PCI1MAC_AD19
PCI1MAC_AD20
PCI1MAC_AD24
PCI1MAC_AD25
PCI1MAC_AD23
PCI1MAC_CBE3
PCI1MAC_AD28
PCI1MAC_AD29
PCI1MAC_AD26
PCI1MAC_AD27
EXT_REQ
EXT_GNT
PCI1MAC_AD30
PCI1MAC_AD31
D-GND
32
5V_IN
D-GND
D-GND
D-GND
D-GND
PCI1_EXT
n PCI1_RST
PCI1_INTA_PU
6
7
D-GND
31
20
21
MFPC PWB
3.3V
29
3.3V
30
D-GND
SA_VIDEO_HSYNC_I
12V
28
5VO
26
n FAXCS_CTS
27
FLVPP
24
n FAXCS_RTS
25
D-GND
22
n FAXD_CTS
23
D-GND
20
n FAXD_RTS
21
nPLED
18
FAXCS_RXD_N
19
n FAX_WUP
16
FAXCS_RXD_P
17
n RES_MFP
14
FAXD_RXD_P
15
D-GND
12
FAXD_RXD_N
13
n RES_FAX
10
FAXCS_TXD_N
11
n MSW_MON
8
FAXCS_TXD_P
9
n CNCT_FAX
6
FAXD_TXD_P
7
3.3V
4
FAXD_TXD_N
5
D-GND
2
3.3V
3
3
3.3V
4
D-GND
1
3.3V
D-GND
1
2
3.3V
8
D-GND
9
SA_VIDEO_VSYNC_K_I
10
D-GND
11
SA_VIDEO_VSYNC_C_I
12
D-GND
13
SA_VIDEO_VSYNC_M_I
14
D-GND
15
SA_VIDEO_VSYNC_Y_I
22
VIDEO_DAT_K5
23
D-GND
24
VIDEO_DAT_C0
25
VIDEO_DAT_C1
26
VIDEO_DAT_C2
27
VIDEO_DAT_C3
28
VIDEO_DAT_C4
29
VIDEO_DAT_C5
30
D-GND
31
VIDEO_DAT_M0
32
VIDEO_DAT_M1
33
VIDEO_DAT_M2
34
VIDEO_DAT_M3
35
VIDEO_DAT_M4
36
VIDEO_DAT_M5
37
D-GND
44
SA_VIDEO_HSYNC_O
45
D-GND
46
EF_CLK_IN
47
D-GND
48
GPI_nEF_DETECT
49
ENG_RDY(O,OC)
56
PON_PRTC(I)
57
n WU_EF
60
D-GND
5V_IN
5V_IN
1
2
58
n PD_PRTCIF(O)
59
D-GND
FX8C-60S-SV5
: Feb. 15 2007
7

Table of Contents

Other manuals for Sharp MX-4500N

Related product manuals