EasyManua.ls Logo

Sharp VL-PD3S - Page 30

Sharp VL-PD3S
152 pages
Print Icon
To Next Page IconTo Next Page
To Next Page IconTo Next Page
To Previous Page IconTo Previous Page
To Previous Page IconTo Previous Page
Loading...
9-11
VL-PD3S/H/E VL-PD3S/H/E
ADJUSTMENT OF VIEW FAR CIRCUIT
1. VF VCO adjustment
Test point TL8805 (HSY)
Address VCR ADJ 40
Mode VCR AV input
Procedure 1) Connect TL8826 to 3V.
2) Connect TL8805 to the frequency counter, and adjust to the adjustment standard value at address 40.
3) Open TL8826.
Adjustment 15.625kHz ± 100Hz
rating
Remark
Examples • During IC703 (E
2
PROM) replacement.
• During IC8800 replacement.
2. VF bright adjustment
Test point TL8811 (VG)
Address VCR ADJ 46
Mode VCR AV input
Procedure 1) The input signal must be 3-step wave.
2) Connect TL8825 (IC8800 pin 53) to GND.
3) Adjust the pedestal interval of waveform of TL8811 to the specified level.
Adjustment 6.9 ± 0.1Vp-p
rating
Remark
Examples • During IC703(E
2
PROM) replacement.
• During IC8800 replacement.
GND
Sig.center
6.9 0.1 Vp-p
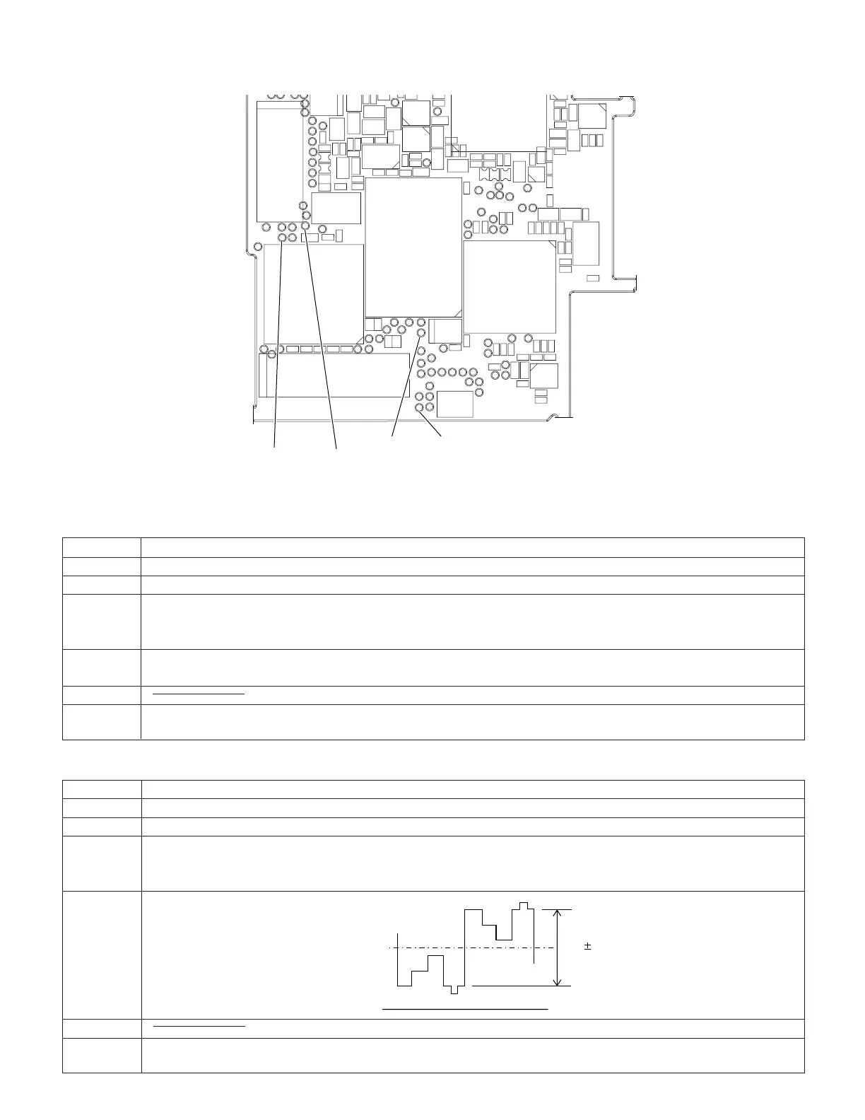
(Wiring board diagram: Main2 Side A)
SC2401
TL8805
TL2416
TL2423
TL2435
TL2413
TL2415
TL2414
TL2422
TL2437
TL2421TL2419
R3404
TL2418
TL2411
TL2417
TL3403
TL3406
TL437
R444
TL912
TL914
R982
R981
R984
R983
C982
R980
C980
IC980
C981
C436
C437
C439
C438
R438
TL431
C442
TL439
C446
IC431
R443
TL435
TL432
C443
C449
C447
TL3402
TL2436
TL8826
TL8828TL3337
TL3336
R7711
TL3335
TL3334
TL8803
R7710
TL2434
TL2420
TL2430
R7704C7704C7705
IC7701
R7707C7709
TL8800
TL7703
TL7701
TL1704
TL2440 TL2441
TL8825TL8814
TL8813
TL8810
TL8812
TL8811
C7710
TL8815
TL8816
TL1921
C7711
R8822
X7701
C7713
R7713
L7701
C7714
C7712
C7702
R7705 C7706
R7708
IC432
C7707
TL440
TL434
C448
TL1920
TL3418
C444
TL3312
R1715
C445
TL438
TL436
TL3325
TL3324
R1716
TL433
R442
TL3311
R1701
R441
TL1909
L1701
TL3355
TL1908
Q1703
R440
R435
C431
R436
C1731 C1711
R431
R437
C440
C435 R434
C433
R433 R439
R432
X431
R1719
C1701
Q1704
R1718
C1705
C1721
C1717
Q
C1715
R1710
C1708
C1718
C1707
C1723
C1709
C1713
R1717
C1703
C1702
IC1702
C1734
R1704
C1733
R1703
R1707
R1706
L456
R1705
R1702
C1704 C1710
C1706
C1712
C1714
TL1701
TL1705
Q1903
Q1902
R7706
C1905
C7708
C1904
R
1
L1901
R1905
TL3408
R1916
R1907
IC7702
R192
C1903
L1904
C191
C7703
R7703
L1909
C1907
C7701
R7702
R7701
L9801
R8837
R8825
C1916
R8823
R8824
R8836
TL8822
TL8819
TL8818
TL8820
TL8821
TL8823
TL3323
TL3367
TL8809TL8824
SC8800
TL8827TL8817
TL8811
VF bright
VF contrast
VF γ 1
TL8825
VF bright
TL8826
VF VCO
TL8805
VF VCO

Related product manuals