EasyManua.ls Logo

Sharp VZ-1550H(BK) - Cabinet Exploded View

Sharp VZ-1550H(BK)
36 pages
Print Icon
To Next Page IconTo Next Page
To Next Page IconTo Next Page
To Previous Page IconTo Previous Page
To Previous Page IconTo Previous Page
Loading...
242
/'
“238(H
ONLY)
(H
ONLY)
Le
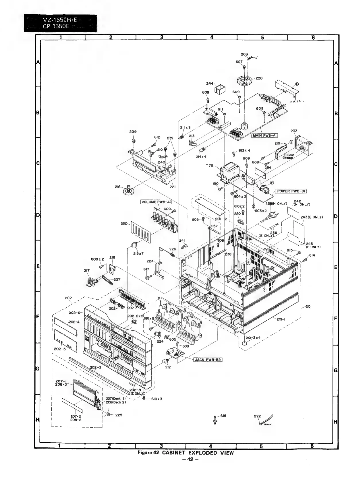
VZ-1550H/E
CP-1550E
201-3
x4
JACK
PWB-B2
BR
ee
ke
~
207(Deck
1)
~_
208(Deck
2)
A.
(60mm)
g
Figure
42
CABINET
EXPLODED
VIEW
—~42-—

Related product manuals