EasyManua.ls Logo

Siemens 3RB22

Siemens 3RB22
83 pages
Go to English
To Next Page IconTo Next Page
To Next Page IconTo Next Page
To Previous Page IconTo Previous Page
To Previous Page IconTo Previous Page
Loading...
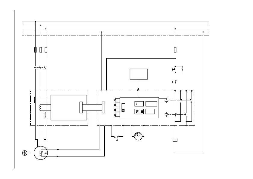
H1
H2
H3
H4
L1
L2
L3
N
3~
M
F3 F4 F5
T1 T2 T3
L1 L2 L3
F1
531
642
-K1E
ON
S1
K1E
PE
UVW
A1
A2
96/05
95
K2
F2
T1 T2
A2 A1
READY
GND
FAULT
THER-
MISTOR
OVER-
LOAD
RESET
AUTO
MAN
Ground
Fau lt
CLASS
5, 10, 20, 30
K1
F6
OFF
S2
Y1 Y2
REMOTE -
RESET
I(-) I(+)
4-20 mA
K1E
98/07
06
97 08
3RB29.6...
3RB22/23...
3RB2985...
6A
gL/gG
3RB2987-2..
VIII
3ZX1012-0RB22-1AA1

Other manuals for Siemens 3RB22

Related product manuals