EasyManua.ls Logo

Siemens 4 F-DO DC24V/2A PROFIsafe - Dimension Drawings

Siemens 4 F-DO DC24V/2A PROFIsafe
228 pages
To Next Page IconTo Next Page
To Next Page IconTo Next Page
To Previous Page IconTo Previous Page
To Previous Page IconTo Previous Page
Loading...
ET 200S Distributed I/O System - Fail-Safe Modules
Installation and Operating Manual, 08/2008, A5E00103686-07
197
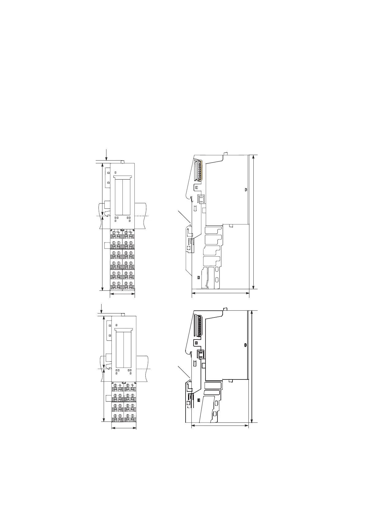
Dimension drawings
B
Terminal Modules with F-Module Inserted
The section below shows dimensional drawings for each of the following:
Terminal modules TM-x30x4x-xx with PM-E F pm, PM-E F pp, F-DI or F-DO module
Terminal module TM-PF30S47-F1 with PM-D F-module









&LUFXODWLRQ
0RXQWLQJUDLO
&LUFXODWLRQ
0RXQWLQJUDLO




Figure B-1 Dimension Drawing of Terminal Modules with PM-E F pm, PM-E F pp, F-DI or F-DO
module

Table of Contents

Related product manuals