EasyManua.ls Logo

Siemens 4 F-DO DC24V/2A PROFIsafe - Wiring of the PM-E F Pp DC24 V Profisafe

Siemens 4 F-DO DC24V/2A PROFIsafe
228 pages
To Next Page IconTo Next Page
To Next Page IconTo Next Page
To Previous Page IconTo Previous Page
To Previous Page IconTo Previous Page
Loading...
Fail-Safe Modules
7.3 PM-E F pp DC24V PROFIsafe power module
ET 200S Distributed I/O System - Fail-Safe Modules
88 Installation and Operating Manual, 08/2008, A5E00103686-07
Terminal Designation
11 P
12 M
Terminals (relay contacts) for fail-safe switching of voltage bus P2
15 P
16 M
Terminals (relay contacts) for fail-safe switching of voltage bus P2
CAUTION
If high currents can occur on P and M, you must wire terminals 11 and 15 (P) and 12 and
16 (M) in parallel.
Otherwise, high current loads may cause the terminals to heat up.
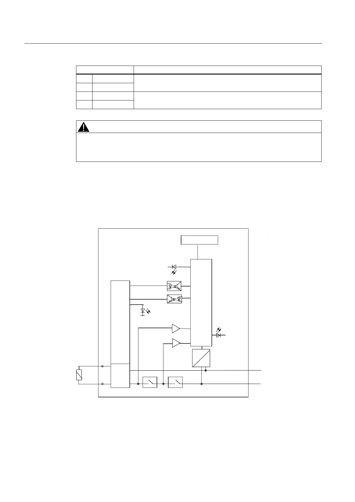
7.3.3 Wiring of the PM-E F pp DC24V PROFIsafe
Block Diagram

9
0

6)

0

3



0






0
3:5
9
3

3

$GGUHVVVZLWFK
3URFHVVLQJORJLF
%DFNSODQHEXVLQWHUIDFH
5HDGEDFN
5HOD\ 5HOD\
6WDWXVRI
RXWSXW
Figure 7-11 Block diagram of the PM-E F pp DC24V PROFIsafe

Table of Contents

Related product manuals