EasyManua.ls Logo

Siemens DF301 - Example of Heating and Cooling Demand Zone

Siemens DF301
92 pages
Print Icon
To Next Page IconTo Next Page
To Next Page IconTo Next Page
To Previous Page IconTo Previous Page
To Previous Page IconTo Previous Page
Loading...
57 / 92
Siemens…………………….RDF301, RDF301.50..., RDF600KN, RDF600KN/VB, RDF600KN/S Basic Documentation CE1P3171en
Smart Infrastructure 2020-02-21
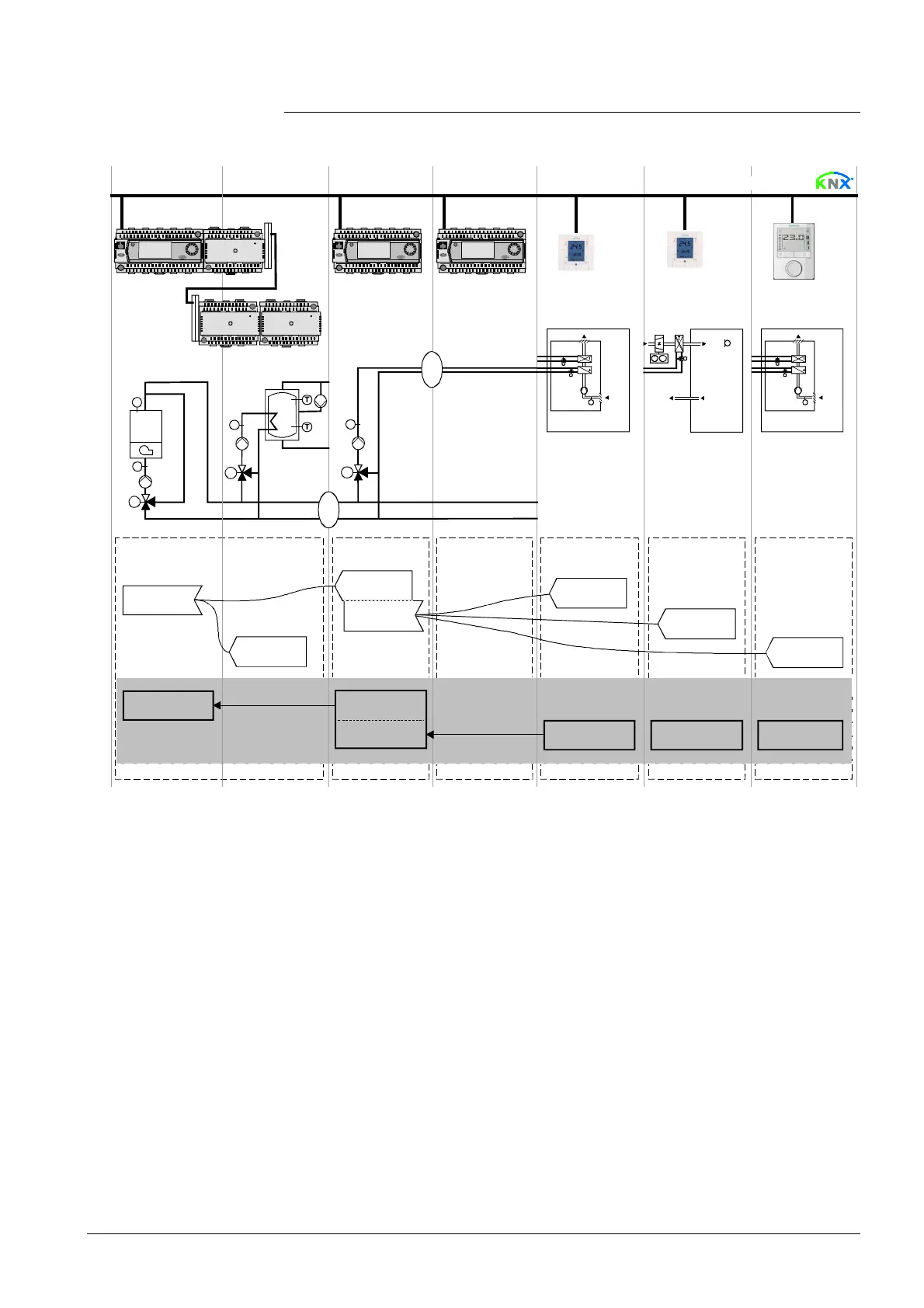
3.11.4 Example of heating and cooling demand zone
The building is equipped with Synco controls on the generation side and RDF /
RDG thermostats on the room side.
RMH760 RMH760 RMB795
Konnex TP1
RDG...RDU...
RDF...
T
T
T
T
1
2
P3171Z01
Heat requistion
Heat demand
Heat distr zone 1
Heat source
Controller 1 Controller 2
Controller 3
Controller 4 Controller 5 Controller 6
Controller 1 Controller 2 Controller 3 Controller 4 Controller 5 Controller 6
Heating circuit
fan coil
Fan coil
room A
VAV box
room B
Fan coil
room C
DHW heating
Heat demand
Heat demand
Heat demand
Heat demand
Heat requistion
Heat distr zone
source side: 1
Heat distr zone 2
Heat distr zone 2 Heat distr zone 2
Heat distr zone 2
Setting values
MV MV
T
T T
In the case of a typical application, the individual RDF / RDG room thermostats
send their heat demand directly to the primary controller (in the above example to
the RMH760).
(1) and (2) designate the numbers of the distribution zone.
· This type of application can analogously be applied to refrigeration distribution
zones.
· If no 2-pipe fan coil is used, heat and refrigeration demand signals are sent
simultaneously to the primary plant.
Explanation relating to
the illustration
Note:

Table of Contents

Related product manuals