EasyManua.ls Logo

Siemens QAA74 - Operator units AVS74

Siemens QAA74
100 pages
Print Icon
To Next Page IconTo Next Page
To Next Page IconTo Next Page
To Previous Page IconTo Previous Page
To Previous Page IconTo Previous Page
Loading...
2
Engineering use
Operator units AVS74
14
Siemens Graphical User Interface UI400 CE1U2348en
Building Technologies 2014-06-03
2.2 Operator units AVS74
Ambient conditions Permissible range Comment
Temperature From 0 to 60 °C
Relative humidity 0 to 95% Non-condensing
2 installation types are available for AVS74 operator units:
l Front side mounting (AVS74.261)
l Rear side mounting (AVS74.661, AVS74.761)
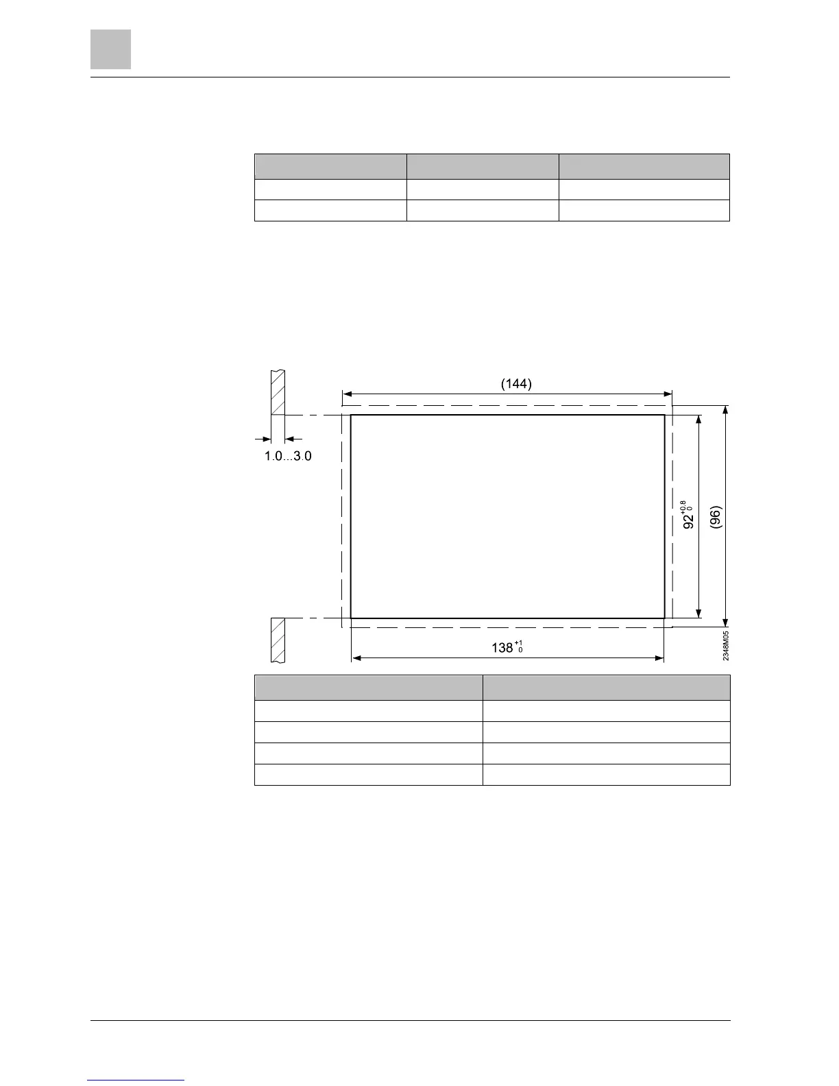
The installation cutout for AVS74.261 and AVS74.761 as per IEC 61554.
Installation cutout Ground
Width 138 +1 mm
Height 92 +0.8 mm
Depth, for front side mounting At least 16 mm
Wall thickness 1.0 to 3.0 mm
Climatic ambient
conditions
Installation mode
Dimensions of
installation cutout

Related product manuals