EasyManua.ls Logo

Siemens SIMOTION CBE30-2 - Page 67

Siemens SIMOTION CBE30-2
432 pages
Print Icon
To Next Page IconTo Next Page
To Next Page IconTo Next Page
To Previous Page IconTo Previous Page
To Previous Page IconTo Previous Page
Loading...
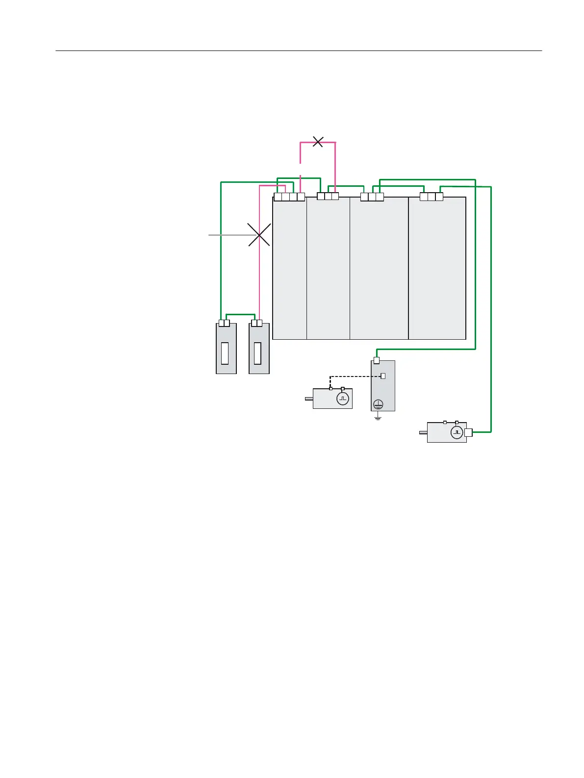
Example
The example in the following figure shows the rules for DRIVE‑CLiQ wiring.
6,027,21'
$FWLYH
/LQH
0RGXOH
6LQJOH
0RWRU
0RGXOH
6LQJOH
0RWRU
0RGXOH
1R
ULQJZLULQJ
6SHHG
5RWRUSRVLWLRQ
7HPSHUDWXUH
0RWRU
0RWRUZLWK'5,9(&/L4
LQWHUIDFH
1RGRXEOHZLULQJ
'5,9(&/L4
'5,9(&/L4
70[[
70[[
;
;
;
;
60&[[
;
;
;
;
;;;;;;
Figure 4-5 DRIVE-CLiQ wiring using the D425-2 as an example
Connecting
4.5 Connecting DRIVE-CLiQ components
SIMOTION D4x5-2
Commissioning and Hardware Installation Manual, 03/2018, A5E33441636B 67

Table of Contents

Other manuals for Siemens SIMOTION CBE30-2

Related product manuals