EasyManua.ls Logo

Siemens Simovert Masterdrives Compact Plus Series - Page 27

Siemens Simovert Masterdrives Compact Plus Series
Print Icon
To Next Page IconTo Next Page
To Next Page IconTo Next Page
To Previous Page IconTo Previous Page
To Previous Page IconTo Previous Page
Loading...
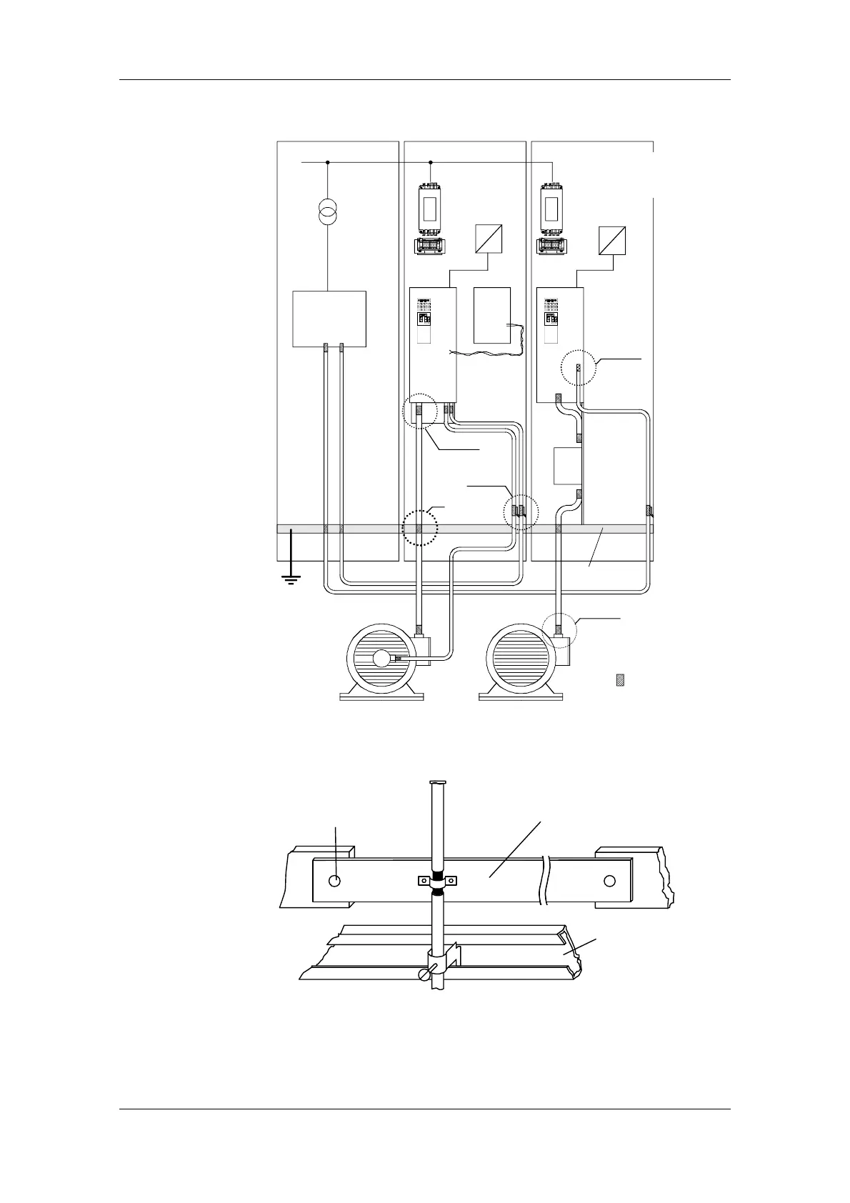
EMV-gerechter Aufbau 06.2006
6SE7087-6KP50 Siemens AG
6-4 Betriebsanleitung SIMOVERT MASTERDRIVES
~
=
~
=
Steuerung
Schaltschrank1 Schaltschrank2 Schaltschrank3
Erdungsschiene
Regel
19
Regel 8
Regel 12
Netz
*) *)
Z
Bild 3.5.3
Bild 3.5.4
Bild 3.5.6
Regel 2
Regel
4, 5, 7
Regel
9, 10
Regel 16
Regel
17
Regel
13
Bild 3.5.2
*) Funk-Entstörfilter vom
Abluftkanal der SIMOVERT
MASTERDRIVES fernhalten,
z. B. durch Aufbau in anderer
Ebene
Z
Schirmauflage
Regel
14
Netz
Bild 6-1 Beispiele für die Anwendung der Grundregeln der EMV
Kabelabfangschiene
Schirmschiene
Gut leitend und
großflächig mit dem
Schrankgehäuse
beidseitig verbinden!
Bild 6-2 Schirmanbindung der Motorleitung bei Einführung in den Schaltschrank

Table of Contents

Related product manuals